Active

$305,000

Características:
  • 3 Quartos
  • 2 Banheiros
  • 106 m²
Visão Geral
  • ID: MFRP4937715
  • Quartos: 3
  • Banheiros: 2
  • Tamanho: 106 m²
Detalhes do Imóvel
Observações
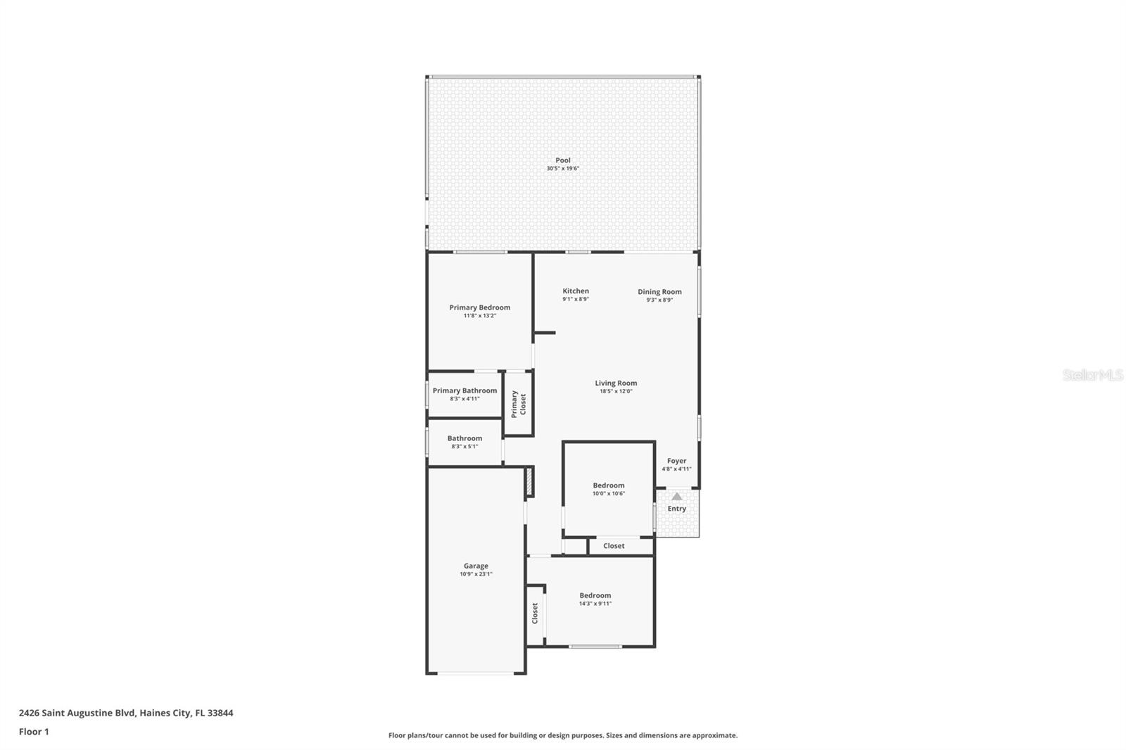
Situado no fairway de um campo de golfe profissional de 18 buracos na comunidade Southern Dunes, 2426 St Augustine Blvd oferece uma rara combinação de flexibilidade de estilo de vida e valor de longo prazo - igualmente adequado como residência principal, retiro de inverno, opção de redução ou casa geradora de renda em uma das limitadas comunidades aprovadas para aluguel de curto prazo da cidade de Haines. Projetada para uma vida fácil em um único andar, a casa parece aberta e acolhedora, com tetos abobadados, luz natural abundante e um layout fluido que conecta os espaços principais a uma piscina privativa aquecida e protegida com vista para o campo de golfe. A cozinha com localização central ancora a casa com uma barra de café da manhã, armários generosos e iluminação atualizada, abrindo naturalmente para as áreas de jantar e de estar para uma vida diária confortável ou entretenimento descontraído. Portas de vidro deslizantes estendem o interior até o deck da piscina, criando uma experiência interna e externa perfeita, ideal para aproveitar o lindo clima da Flórida e o sol o ano todo. A planta de quartos divididos aumenta a privacidade e a funcionalidade, com a suíte principal localizada fora da área de estar principal e dois quartos adicionais com banheiro completo posicionados perto da frente da casa - adequados para hóspedes, home office ou ocupação flexível de aluguel. As melhorias recentes incluem um novo sistema de ar condicionado (julho de 2025), novo controle de porta de garagem (2025), ventiladores de teto atualizados, iluminação renovada em toda a cozinha e banheiros e um motor de piscina mais recente (2023), proporcionando maior tranquilidade para propriedade em tempo integral e sazonal. Os residentes desfrutam de segurança 24 horas por dia, 7 dias por semana, piscinas comunitárias, quadras de tênis, playgrounds e acesso rápido ao clube Southern Dunes Golf & Country Club com refeições no local, todos convenientemente localizados perto de lojas e restaurantes US-27, Posner Park e com fácil acesso ao corredor I-4 para atrações da área de Orlando.
Considerações Financeiras
Preço:
$305,000
Taxa de HOA:
490
Valor do Imposto:
$3251
Preço por m²:
$267.08
Descrição Legal do Imposto:
VILLAS DE AUGUSTINE REPLAT DOS LOTES 7 E 12 PB 105 PG 46 LOTE 7C
Características Exteriores
Tamanho do Lote:
3698
Características do Lote:
Limites da cidade, no condado, no campo de golfe, calçada
Beira-mar:
Não
Vagas de Estacionamento:
N/D
Estacionamento:
Entrada de automóveis, abridor de porta de garagem
Telhado:
Telha
Piscina:
Sim
Características da Piscina:
Aquecido, no solo, gabinete de tela
Características Interiores
Quartos:
3
Banheiros:
2
Aquecimento:
Central, Elétrica
Resfriamento:
Central Aérea
Eletrodomésticos:
Máquina de lavar louça, secadora, micro-ondas, fogão, geladeira, lavadora
Mobiliado:
Sim
Andar:
Tapete, Azulejo
Níveis:
Um
Características Adicionais
Subtipo de Imóvel:
Residência Unifamiliar
Estilo:
N/D
Ano de Construção:
1999
Tipo de Construção:
Bloco, Estuque
Vagas na Garagem:
Sim
Vagas Cobertas:
N/D
Orientação da Fachada:
Sul
Animais Permitidos:
Não
Condição Especial:
Nenhum
Características Adicionais:
Iluminação, calçada, portas de correr
Características Adicionais 2:
Entre em contato com a HOA para obter mais informações.
Mapa
  • Endereço
    2426 SAINT AUGUSTINE BLVD
Fale com um profissional
Por Que Nos Escolher?
  • Comunicação e Transparência
  • Negociação Qualificada
  • Rede Profissional Robusta
  • Suporte Pós-Venda
Propriedades em Destaque

Imóveis relacionados

avt
Daniel Dourado
$ 542,090
avt
Daniel Dourado
$ 459,900
avt
Daniel Dourado
$ 325,000
avt
Daniel Dourado
$ 285,000
avt
Daniel Dourado
$ 285,000
avt
Daniel Dourado
$ 580,000
avt
Daniel Dourado
$ 449,900
avt
Daniel Dourado
$ 749,900