Active

$3,500,000

Características:
  • Quartos
  • 0 Banheiros
  • 0 m²
Visão Geral
  • ID: MFRV4943996
  • Quartos:
  • Banheiros: 0
  • Tamanho: 0 m²
Detalhes do Imóvel
Observações
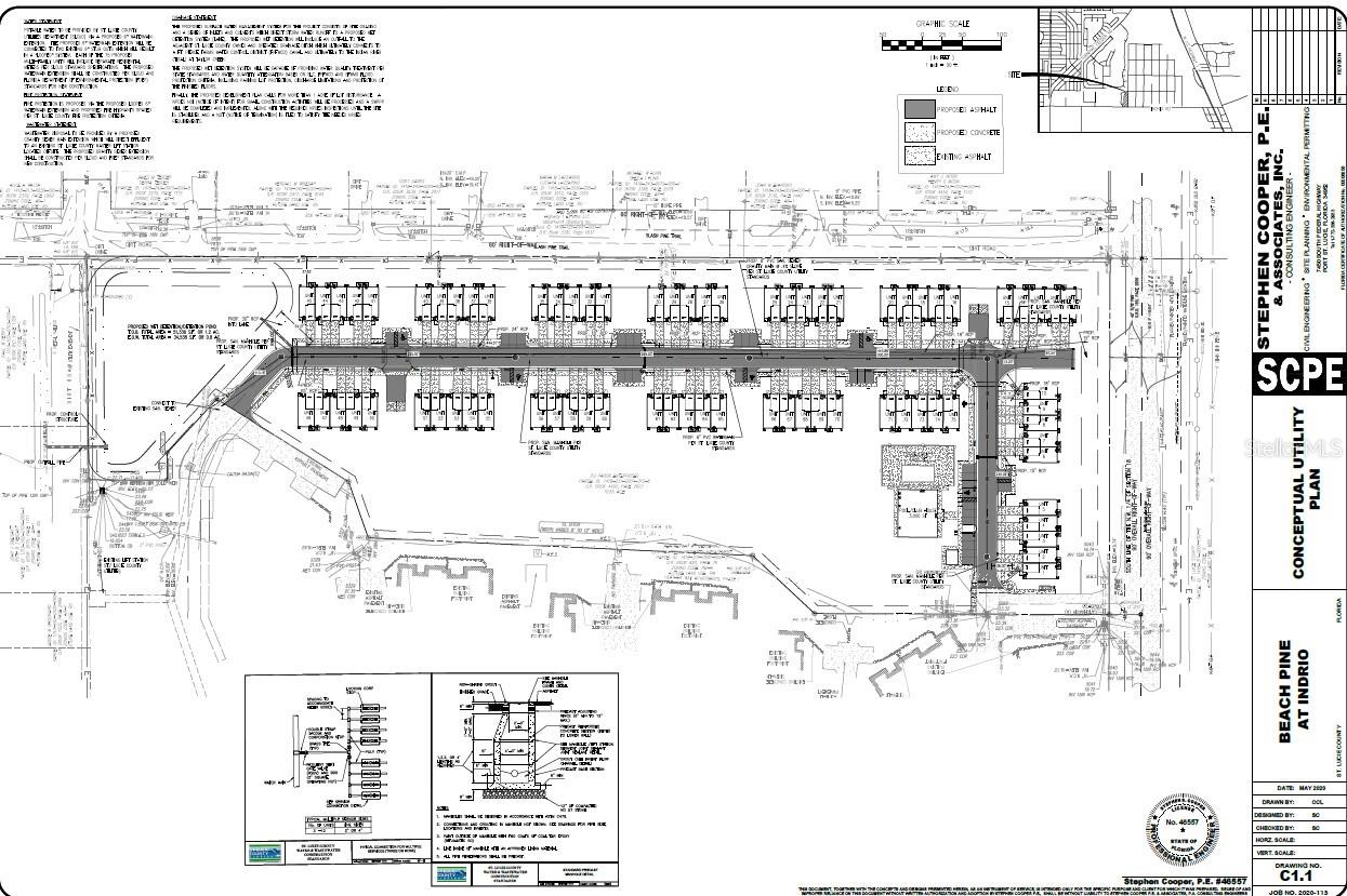
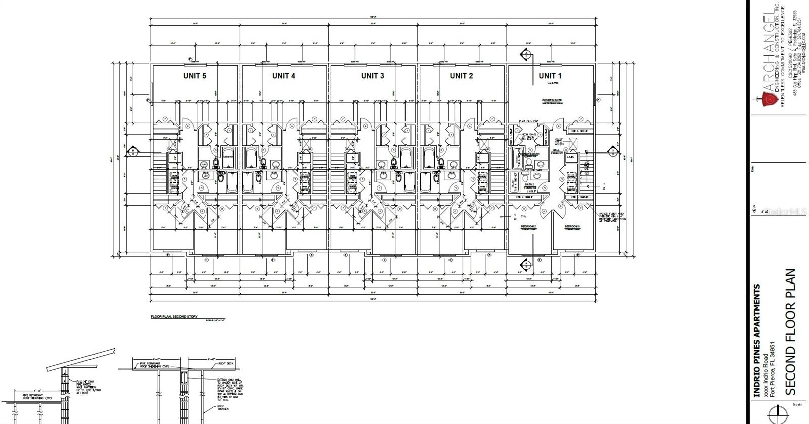
Apresentando a praia Pines @ Indrio, um desenvolvimento pronto para pá, totalmente intitulado e permitido 75 unidades de desenvolvimento de 75 unidades localizado na área de alto crescimento de Fort Pierce, FL. Este projeto de 10,65 acres é dividido em RM-9 e aprovado para nove unidades por acre. Oferece uma oportunidade Prime Build-to Rennd (BTR) para investidores ou desenvolvedores que procuram um site de mão com fortes retornos projetados. Todas as engenharia, direitos e planos de desenvolvimento de locais estão completos. O proprietário é um empreiteiro geral licenciado da Flórida, aberto a uma joint venture com um parceiro de capital para o complemento vertical completo. Cada unidade é cuidadosamente projetada como um condomínio de 3 quartos e 2,5 banheiros com uma garagem de 1 carro, construção da CBS, janelas e portas com classificação de furacões e sistemas com eficiência energética-ideais para aluguel de longo prazo, aluguel de curto prazo ou vendas tradicionais. As comodidades comunitárias incluem um clube, piscina, trilhas para caminhada e espaço verde - agrega o valor do estilo de vida para locatários ou proprietários de imóveis. Localizado perto da Indrio Road, perto da I-95 e US-1, o local fica a apenas alguns minutos do crescente corredor comercial da Kings Highway e Indrio, onde um novo Publix está atualmente em construção. A propriedade também fica perto de Buc-ee, Koa Surf Park, a futura estação Brightline e várias praias de Fort Pierce e rampas de barcos públicos, oferecendo acesso conveniente ao Oceano Intracoastal e Atlântico. Esta localização combina o subúrbio tranquilo, vivendo com fácil acesso a destinos costeiros e passageiros vibrantes. O Pro FormA aprovado suporta a receita anual bruta de aluguel superior a US $ 2,25 milhões, com uma receita operacional líquida projetada de aproximadamente US $ 1,6 milhão, visando uma taxa de limite de 12% após a estabilização. O layout do local inclui planos eficientes de design de estradas, utilidade e drenagem e flexibilidade para a construção em fases. Esta é uma rara oportunidade de assumir uma subdivisão de Townhome totalmente aprovada com um construtor experiente a bordo, oferecendo menor risco de desenvolvimento e um caminho mais rápido para a receita. Seja você um operador BTR, grupo de ações ou desenvolvedor privado, este projeto fornece a prontidão de escala, localização e direito para executar imediatamente em um dos corredores de aluguel mais quentes da Flórida. Resumo executivo completo, opções pro forma e jv disponíveis mediante solicitação.
Considerações Financeiras
Preço:
$3,500,000
Taxa de HOA:
N/D
Valor do Imposto:
$9145
Preço por m²:
$7.54
Descrição Legal do Imposto:
18 34 40 Essa parte de E 717,26 pés de SW 1/4 de NW 1/4 lyg e de foll li: Beg Se cor de W 1/2 de NW 1/4 Run N 00 deg 29 min 17SEC E 40 ft a N R/W Li Indrio rd, n 89 graus 27 min de 50 segundos a 40 anos. 371,18 ft, th n 43 seg 32 min 10 seg e 106,94 pés, th n 03 graus 02 min 10 seg e 485 pés, th n 71 graus 02 min 10 seg e 75 ft, th n 32 de graus 32 min 10 s 196 ft, n 46 de graus 57 min 50 s, n 32 ft 32 ft, n. E 99,03 ft a Sly li li pines s/d-fase III- (10,65 ac)
Características Exteriores
Tamanho do Lote:
463914
Características do Lote:
Lote edificável, grande e pavimentado
Beira-mar:
Não
Vagas de Estacionamento:
N/D
Estacionamento:
N/D
Telhado:
N/D
Piscina:
Não
Características da Piscina:
N/D
Características Interiores
Quartos:
Banheiros:
0
Aquecimento:
N/D
Resfriamento:
N/D
Eletrodomésticos:
N/D
Mobiliado:
Não
Andar:
N/D
Níveis:
N/D
Características Adicionais
Subtipo de Imóvel:
N/D
Estilo:
N/D
Ano de Construção:
N/D
Tipo de Construção:
N/D
Vagas na Garagem:
Não
Vagas Cobertas:
N/D
Orientação da Fachada:
N/D
Animais Permitidos:
Não
Condição Especial:
Nenhum
Características Adicionais:
N/D
Características Adicionais 2:
N/D
Mapa
  • Endereço
    INDRIO RD
Fale com um profissional
Por Que Nos Escolher?
  • Comunicação e Transparência
  • Negociação Qualificada
  • Rede Profissional Robusta
  • Suporte Pós-Venda
Propriedades em Destaque

Imóveis relacionados

img
  • Featured
  • Active

TBD NE 125TH AVE

  • 0
  • 0 m²
avt
Daniel Dourado
$ 380,000
img
  • Featured
  • Active

408 31ST ST NW

  • 0
  • 0 m²
avt
Daniel Dourado
$ 2,200,000
img
  • Featured
  • Active

3503 SANTIAGO ST W

  • 0
  • 0 m²
avt
Daniel Dourado
$ 500,000
img
  • Featured
  • Active

LOT #190 QUINELLA ST

  • 0
  • 0 m²
avt
Daniel Dourado
$ 250,000
img
  • Featured
  • Active

556 WALKER ST

  • 0
  • 0 m²
avt
Daniel Dourado
$ 1,295,000
avt
Daniel Dourado
$ 2,200,000
img
  • Featured
  • Active

16451 FORREST LN

  • 0
  • 0 m²
avt
Daniel Dourado
$ 599,000
img
  • Featured
  • Active

1826 GADSEN BLVD

  • 0
  • 0 m²
avt
Daniel Dourado
$ 224,900
img
  • Featured
  • Active

TBD NW 71ST TER

  • 0
  • 0 m²
avt
Daniel Dourado
$ 245,000
img
  • Featured
  • Active

515 SWEETGUM LN

  • 0
  • 0 m²
avt
Daniel Dourado
$ 325,000
img
  • Featured
  • Active

4211 HARRISBURG ST NE

  • 0
  • 0 m²
avt
Daniel Dourado
$ 239,000
img
  • Featured
  • Active

3341 SHOAL LINE BLVD

  • 0
  • 0 m²
avt
Daniel Dourado
$ 245,000