Active

$700,000

Características:
  • Quartos
  • 0 Banheiros
  • 0 m²
Visão Geral
  • ID: MFRU8232606
  • Quartos:
  • Banheiros: 0
  • Tamanho: 0 m²
Detalhes do Imóvel
Observações
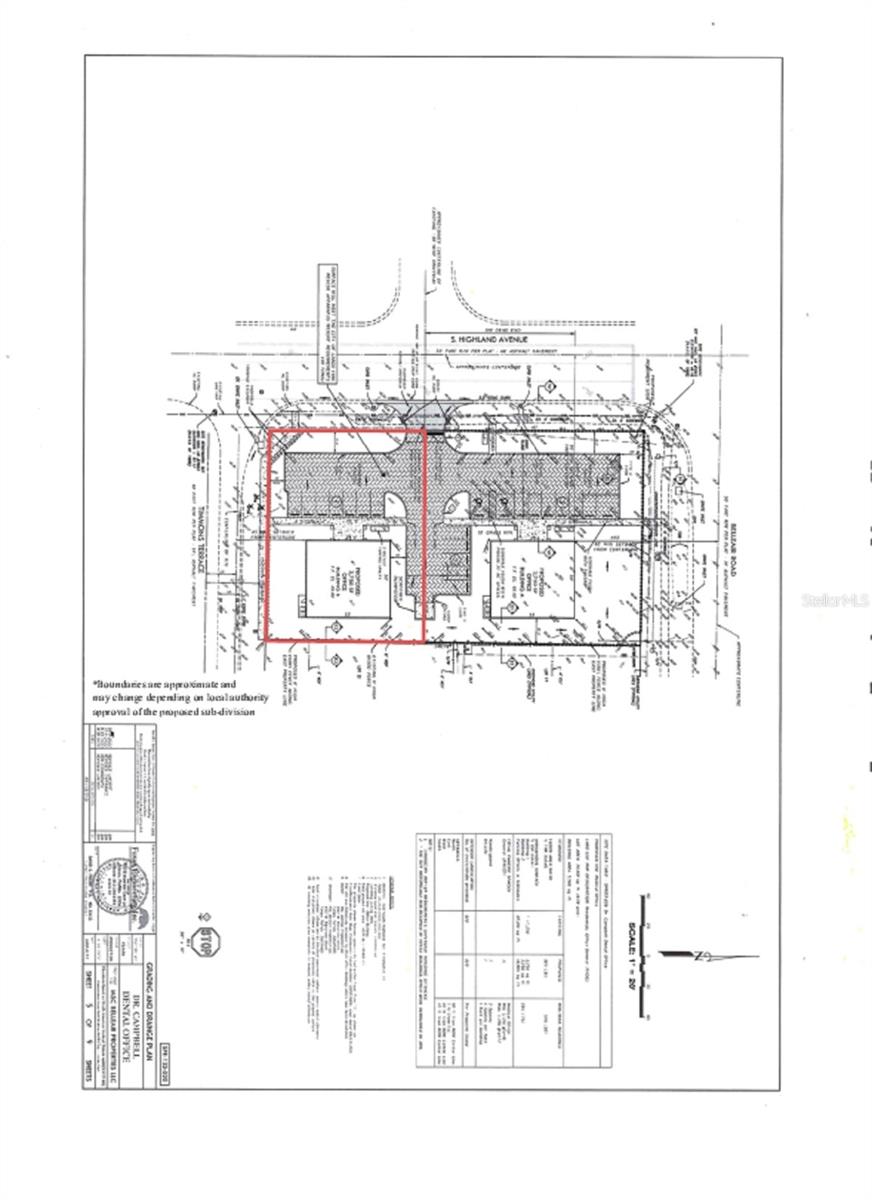
Prime Commercial Development Site Localizado em uma interseção movimentada de Clearwater/Largo na South Highland Ave. e Belleair Rd. Mais de 90 'de fachada na South Highland Ave, com alta visibilidade, entrada/saída fácil e amplo estacionamento. O proprietário atual garantiu aprovações para um edifício comercial de 2750 SF perfeito para varejo ou escritório neste site. Este site é a parte sul do lote da esquina e inclui um estacionamento, meio -fio e calçadas concluídas. Economize milhares de dólares e o esforço de lidar com a cidade para construir o estacionamento, porque o estacionamento já será concluído. Há uma ligação de esgoto para este lote e conexões de utilidades disponíveis. Seu trabalho principal é simplesmente construir o edifício. Muito do trabalho já foi feito para você. O proprietário atual da propriedade está construindo um escritório de dentista no lote adjacente do norte. O comprador deve concordar em não desenvolver um consultório odontológico/prática nesse lote. O zoneamento flexível permite vários usos comerciais. Cercado por um distrito de empresas prósperas, incluindo restaurantes, shopping centers e um bairro densamente povoado com uma demografia favorável. Fácil acesso a principais rotas de transporte, praias, hospitais e muito mais. Não perca esta incrível oportunidade de estabelecer seus negócios em uma das áreas de comércio mais movimentadas de Clearwater/Largo. Todos os regulamentos de zoneamento e uso a serem confirmados pelo comprador com autoridades locais. A fachada, a metragem quadrada, os impostos e os limites apresentados são aproximados e podem mudar por decisão final das autoridades locais de zoneamento/planejamento.
Considerações Financeiras
Preço:
$700,000
Taxa de HOA:
N/D
Valor do Imposto:
$7511.35
Preço por m²:
$53.85
Descrição Legal do Imposto:
Belleair Terrace Lots
Características Exteriores
Tamanho do Lote:
13000
Características do Lote:
Builtável, limpo, lote de canto, nível, outro
Beira-mar:
Não
Vagas de Estacionamento:
N/D
Estacionamento:
N/D
Telhado:
N/D
Piscina:
Não
Características da Piscina:
N/D
Características Interiores
Quartos:
Banheiros:
0
Aquecimento:
N/D
Resfriamento:
N/D
Eletrodomésticos:
N/D
Mobiliado:
Não
Andar:
N/D
Níveis:
N/D
Características Adicionais
Subtipo de Imóvel:
N/D
Estilo:
N/D
Ano de Construção:
N/D
Tipo de Construção:
N/D
Vagas na Garagem:
Não
Vagas Cobertas:
N/D
Orientação da Fachada:
Oeste
Animais Permitidos:
Não
Condição Especial:
Nenhum
Características Adicionais:
N/D
Características Adicionais 2:
N/D
Mapa
  • Endereço
    1601 S HIGHLAND AVE
Fale com um profissional
Por Que Nos Escolher?
  • Comunicação e Transparência
  • Negociação Qualificada
  • Rede Profissional Robusta
  • Suporte Pós-Venda
Propriedades em Destaque

Imóveis relacionados

avt
Daniel Dourado
$ 1,095,000
img
  • Featured
  • Active

1405/1407 CALLE ESTRELLA

  • 0
  • 0 m²
avt
Daniel Dourado
$ 650,000
avt
Daniel Dourado
$ 960,000
avt
Daniel Dourado
$ 1,149,900
img
  • Featured
  • Active

3902 AUTUMN PALM DR

  • 0
  • 0 m²
avt
Daniel Dourado
$ 790,000
img
  • Featured
  • Active

URB. LAS VISTAS RIO MAR SOLAR 10

  • 0
  • 0 m²
avt
Daniel Dourado
$ 900,000
avt
Daniel Dourado
$ 445,000
img
  • Featured
  • Active

7304 SUNFISH CIR

  • 0
  • 0 m²
avt
Daniel Dourado
$ 299,000
avt
Daniel Dourado
$ 2,647,500
img
  • Featured
  • Active

LAKE BUFFUM RD E

  • 0
  • 0 m²
avt
Daniel Dourado
$ 400,000
img
  • Featured
  • Active

10101 TARPON SPRINGS RD

  • 0
  • 0 m²
avt
Daniel Dourado
$ 5,995,000
avt
Daniel Dourado
$ 400,000