Active

$1,399,000

Características:
  • 4 Quartos
  • 3 Banheiros
  • 336 m²
Visão Geral
  • ID: MFRO6226980
  • Quartos: 4
  • Banheiros: 3
  • Tamanho: 336 m²
Detalhes do Imóvel
Observações
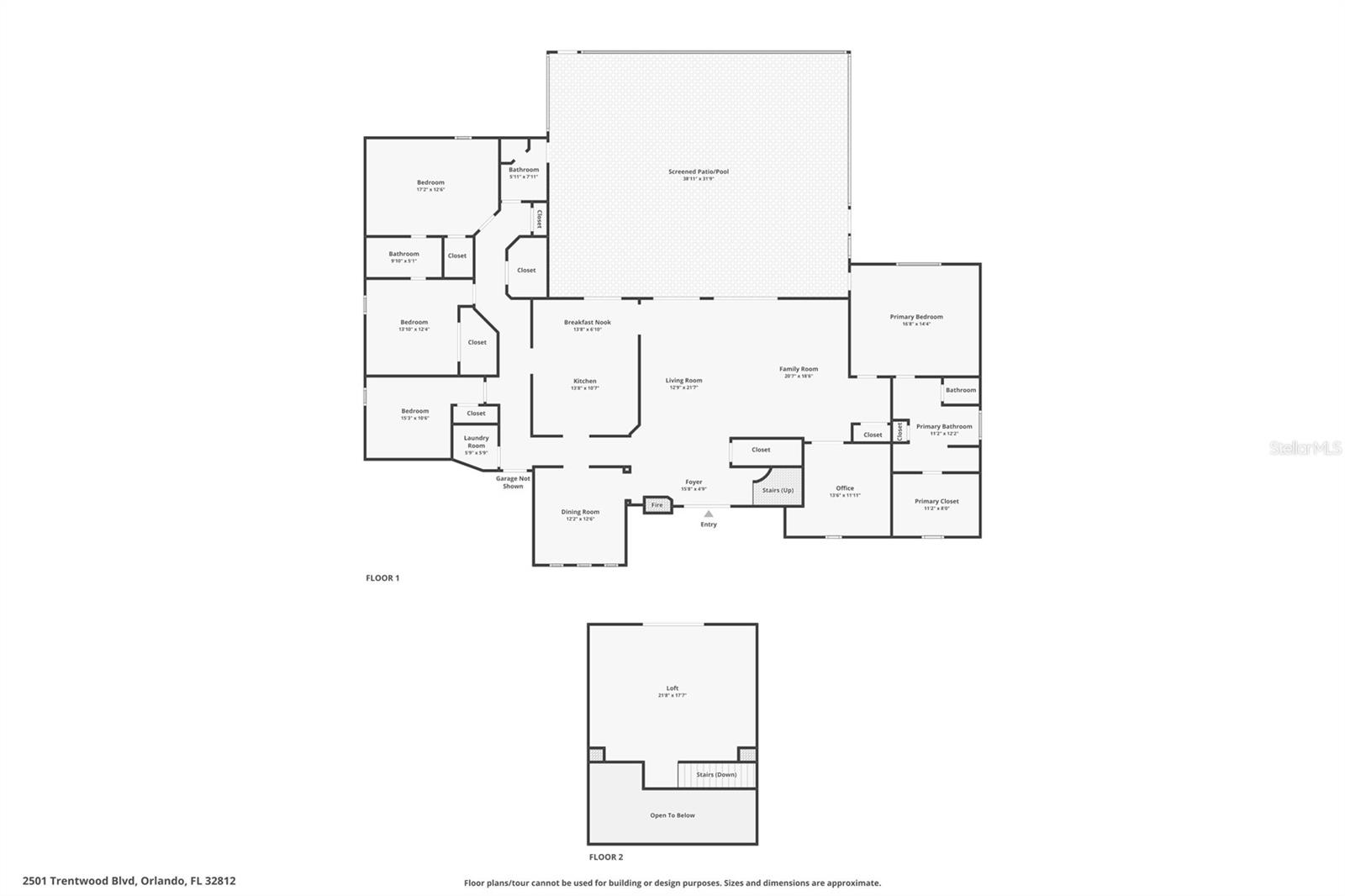
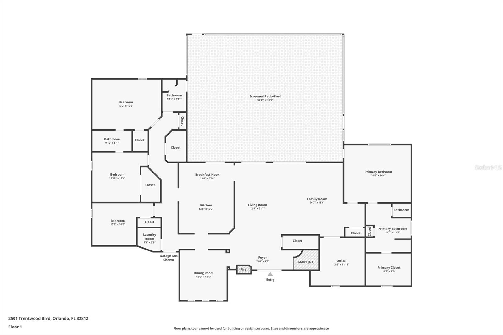
Pôr do sol deslumbrante e vistas serenas do lago aguardam! Bem-vindo a esta magnífica casa à beira do lago em estilo mediterrâneo, localizada nas margens arenosas do Lago Conway, que oferece luxo e conforto incomparáveis. Esta requintada propriedade de 4 quartos e 3 banheiros com escritório possui detalhes arquitetônicos impressionantes e vistas deslumbrantes do Lago Conway, perfeita para quem procura um estilo de vida elegante e tranquilo. Ao se aproximar desta grande residência, você é recebido por um jardim paisagístico com uma entrada circular com uma fonte encantadora. O exterior da casa é adornado com elementos clássicos do Mediterrâneo, incluindo telhado de terracota, janelas em arco e detalhes em pedra. Descubra um interior meticulosamente projetado com acabamentos de alta qualidade e detalhes cuidadosos. O grande hall de entrada recebe você com tetos altos e lustres elegantes, dando o tom para o resto da casa. As áreas de estar de conceito aberto são inundadas de luz natural, aumentando a sensação de espaço e sofisticação. O quarto familiar oferece vistas panorâmicas do lago e da piscina, criando uma experiência de vida interna e externa perfeita. A cozinha gourmet é o sonho de qualquer chef, equipada com uma grande bancada para café da manhã, impressionantes bancadas e backsplash de pedra, armários personalizados e uma ilha central. A copa adjacente tem vista para a piscina e para o lago, proporcionando um cenário pitoresco para o seu café da manhã. A luxuosa suíte principal do primeiro andar é um retiro privado adornado com tetos de bandeja e tem acesso direto à piscina. O banheiro privativo certamente impressionará com suas pias duplas separadas, armário de linho, box de vidro sem moldura e grande banheira de imersão, que levam a um enorme closet! Os quartos adicionais são de tamanho generoso, com amplo espaço no armário. Suba as escadas para o amplo loft com uma grande varanda e vistas deslumbrantes do lago! O espaço exterior foi concebido para relaxamento e entretenimento, apresentando uma piscina única de forma livre rodeada por pedra natural, um espaçoso pátio coberto com uma cozinha de verão e uma área de deck de madeira para espaço adicional de entretenimento - ah, paraíso! O amplo quintal leva até o cais privado e a casa de barcos. A casa de barcos proporciona fácil acesso ao lago, tornando esta casa um verdadeiro santuário à beira-mar. Convenientemente localizada perto das melhores escolas, lojas, restaurantes e opções de entretenimento, esta propriedade à beira do lago oferece a combinação perfeita de luxo, conforto e conveniência. Não perca esta incrível oportunidade de possuir um pedaço do paraíso em Orlando. <div style="padding:56.25% 0 0 0;position:relative;"><iframe src="https://my.matterport.com/show/?m=cQSR62YCTr8&mls=1" frameborder="0" permitir= "reprodução automática; tela cheia" permitfullscreen style="posição:absolute;top:0;esquerda:0;largura:100%;altura:100%;"></iframe></div>
Considerações Financeiras
Preço:
$1,399,000
Taxa de HOA:
N/D
Valor do Imposto:
$17943
Preço por m²:
$385.93
Descrição Legal do Imposto:
CONWAY SHORES U/58 LOTE 8 BLK A
Características Exteriores
Tamanho do Lote:
18400
Características do Lote:
Limites da cidade, paisagístico, lote grande, pavimentado
Beira-mar:
Sim
Vagas de Estacionamento:
N/D
Estacionamento:
Entrada circular, entrada de automóveis, abridor de porta de garagem, nível do solo, convidado, grande
Telhado:
Telha
Piscina:
Sim
Características da Piscina:
No solo, iluminação, caixa de tela
Características Interiores
Quartos:
4
Banheiros:
3
Aquecimento:
Central, Elétrica
Resfriamento:
Central Aérea
Eletrodomésticos:
Máquina de lavar louça, descarte, aquecedor elétrico de água, micro-ondas, fogão, exaustor, geladeira
Mobiliado:
Não
Andar:
Laminado, Azulejo
Níveis:
Dois
Características Adicionais
Subtipo de Imóvel:
Residência Unifamiliar
Estilo:
N/D
Ano de Construção:
2011
Tipo de Construção:
Bloco, Estuque
Vagas na Garagem:
Sim
Vagas Cobertas:
N/D
Orientação da Fachada:
Nordeste
Animais Permitidos:
Não
Condição Especial:
Nenhum
Características Adicionais:
Varanda, Portas Francesas, Sistema de Rega, Iluminação, Cozinha Exterior, Caixa de Correio Privada, Portas de Correr
Características Adicionais 2:
O comprador é responsável por confirmar quaisquer restrições de locação.
Mapa
  • Endereço
    2501 TRENTWOOD BLVD
Fale com um profissional
Por Que Nos Escolher?
  • Comunicação e Transparência
  • Negociação Qualificada
  • Rede Profissional Robusta
  • Suporte Pós-Venda
Propriedades em Destaque

Imóveis relacionados

avt
Daniel Dourado
$ 279,900
avt
Daniel Dourado
$ 1,400,000
avt
Daniel Dourado
$ 1,300,000
avt
Daniel Dourado
$ 565,000
avt
Daniel Dourado
$ 709,000
avt
Daniel Dourado
$ 550,000
avt
Daniel Dourado
$ 340,000
avt
Daniel Dourado
$ 649,000
avt
Daniel Dourado
$ 830,000
avt
Daniel Dourado
$ 474,900
avt
Daniel Dourado
$ 239,999