Active

$1,450,000

Features:
  • 3 Bedrooms
  • 2 Bathrooms
  • 2406 sq ft
Overview
  • ID: MFRL4958470
  • Bedrooms: 3
  • Bathrooms: 2
  • Size: 2406 sq ft
Property Details
Remarks
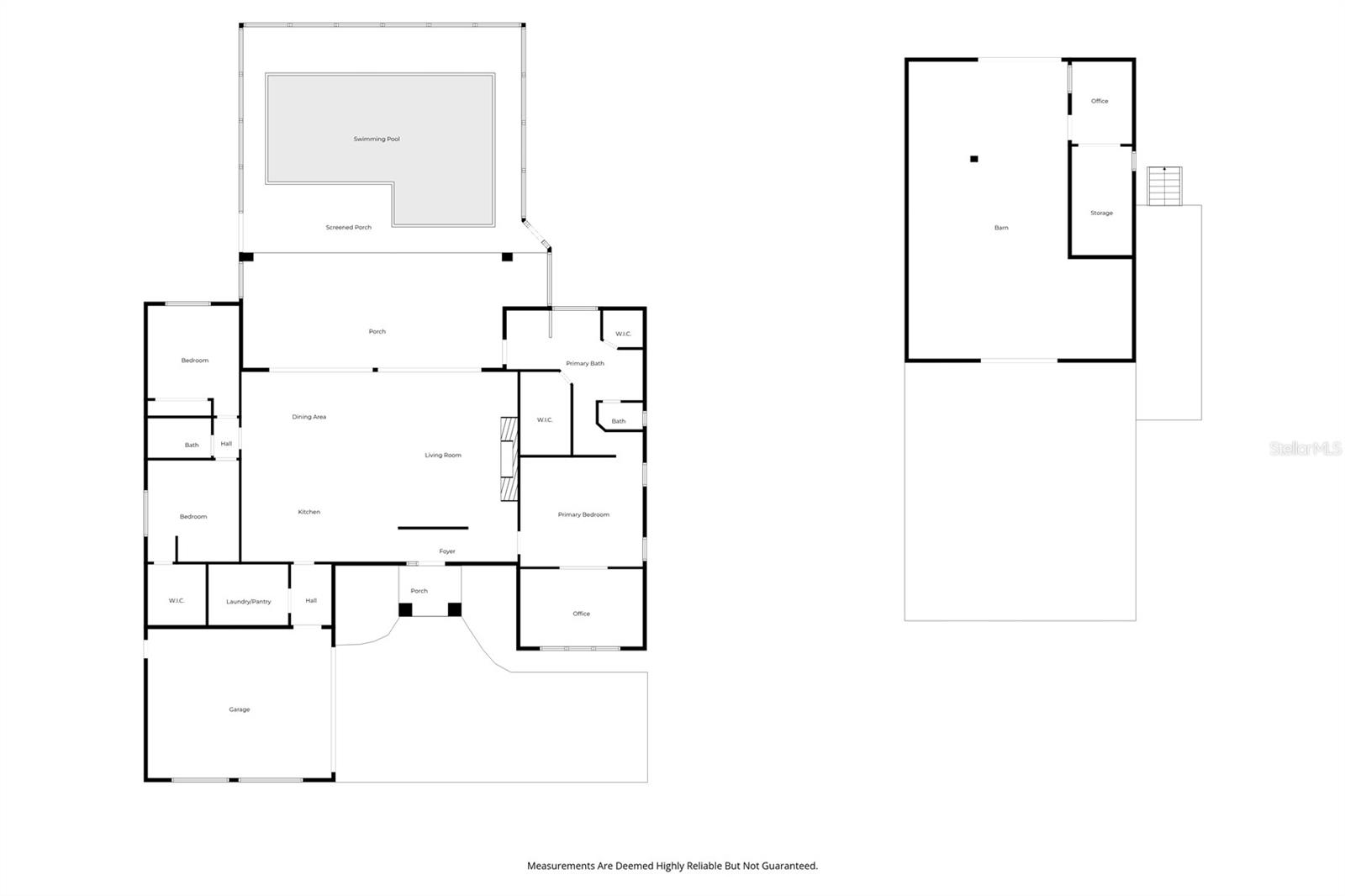
Tucked behind a private gated entry, this extraordinary 30+ acre estate delivers an exceptional blend of luxury, privacy, and purposeful design—perfectly suited for an equestrian farm, cattle ranch, or refined country retreat with no HOA. The property features a custom-built pool home, a 30'x40' barn with a furnished apartment and a detached climate-controlled building, all thoughtfully designed to provide flexible options for multi-generational living, guest accommodations, or income potential within a refined yet highly functional setting. The 2014 custom-built residence offers an open layout with a great room, dining area, spacious kitchen, split bedrooms, primary suite with an office, expansive laundry room, oversized lanai and a 2-car garage. The great room is a stunning focal point, highlighted by an electric fireplace with heat, set against a striking bamboo and tile feature wall with integrated lighting and outlets. Triple stacking sliding glass doors with transom windows flood the home with natural light while showcasing sweeping views of the pool and pasture. The well-appointed kitchen flows seamlessly into the great room and dining area and features custom cabinetry, quartz counters, stainless appliances, double ovens, walk-in pantry and a generous island with gas cooktop and seating for four. The dining area comfortably accommodates eight and opens to the lanai by an additional set of sliders, creating an effortless indoor-outdoor connection for entertaining. The primary suite is a luxurious retreat offering an office space with an 8-foot opening—easy to enclose for privacy. The suite is completed by 2 spacious walk-in closets with built-ins and a spa-inspired bath with a granite counter, dual sinks, a soaking tub, walk-in shower, and private water closet. Secondary bedrooms offer ample space and versatility, including built-in storage and a thoughtfully designed bunk room with integrated study and play areas and a walk-in safe closet. Step outside to the screen-enclosed lanai, where resort-style living takes center stage. Enjoy a salt-filtered, heated pool, an outdoor kitchen with a granite counter, grill, sink, cooktop, fridge, outdoor shower and a gas fireplace—perfect for year-round enjoyment. A backyard fire pit adds an additional gathering space under the stars. The estate continues with an impressive barn offering flexible use for equipment, hobbies, or easy conversion to horse stalls and a tack room, complete with an air-conditioned office. Above the barn, a beautifully finished one-bedroom apartment features a living room, full kitchen, stackable washer and dryer and a private deck overlooking the serene pasture—ideal for guests. The 14'x24' detached, climate-controlled building features a half bath and internet connectivity, making it ideal for a private studio, home office or she-shed. The land includes a cross-fenced pasture with a livestock pen, persimmon trees, greenhouse with electricity, RV electrical hookup and two chicken coops. Additional highlights; a new roof (2024), paved driveway, water softener, irrigation system, two tankless gas water heaters, generator connection and foam insulated panels for energy efficiency. Set in a tranquil country setting yet just 10 minutes from shopping, dining, schools and Bartow Executive Airport and centrally located between Tampa and Orlando, this remarkable estate offers the freedom to ride ATVs, store recreational toys and enjoy wide-open acreage without compromise.
Financial Considerations
Price:
$1,450,000
HOA Fee:
N/A
Tax Amount:
$3829
Price per SqFt:
$602.66
Tax Legal Description:
LOT 14 OF UNRE SURVEY DESC AS COMM AT NW COR OF SEC RUN E 2200.59 FT TO POB CONT E 167.90 FT S 1298.02 FT TO NLY R/W GERBER DAIRY RD W ALONG R/W 167.91 FT N 1296.52 FT TO POB
Exterior Features
Lot Size:
1322481
Lot Features:
In County, Landscaped, Level, Oversized Lot, Pasture, Private, Street Dead-End, Paved, Zoned for Horses
Waterfront:
No
Parking Spaces:
N/A
Parking:
Boat, Driveway, Garage Faces Side, Golf Cart Parking, Guest, RV Access/Parking
Roof:
Shingle
Pool:
Yes
Pool Features:
Fiber Optic Lighting, Heated, In Ground, Lighting, Outside Bath Access, Salt Water, Screen Enclosure
Interior Features
Bedrooms:
3
Bathrooms:
2
Heating:
Central
Cooling:
Central Air
Appliances:
Built-In Oven, Convection Oven, Cooktop, Dishwasher, Dryer, Exhaust Fan, Gas Water Heater, Microwave, Range Hood, Refrigerator, Tankless Water Heater, Washer, Water Softener
Furnished:
Yes
Floor:
Laminate, Luxury Vinyl
Levels:
One
Additional Features
Property Sub Type:
Single Family Residence
Style:
N/A
Year Built:
2014
Construction Type:
Block, Stucco
Garage Spaces:
Yes
Covered Spaces:
N/A
Direction Faces:
South
Pets Allowed:
No
Special Condition:
None
Additional Features:
Balcony, Fire Pit, Lighting, Outdoor Grill, Outdoor Kitchen, Outdoor Shower, Private Entrance, Private Mailbox, Rain Gutters, RV Hookup, Sliding Doors, Storage
Additional Features 2:
Polk County determines leasing restrictions. No short term rentals without prior approval from the county.
Map
  • Address
    3800 GERBER DAIRY RD
Contact a Professional
Why Choose Us?
  • Communication and Transparency
  • Skilled Negotiation
  • Robust Professional Network
  • After-Sale Support
Featured Properties

Related Properties

avt
Daniel Dourado
$ 3,299,999
avt
Daniel Dourado
$ 2,225,000
avt
Daniel Dourado
$ 619,000
avt
Daniel Dourado
$ 368,000
avt
Daniel Dourado
$ 580,000
avt
Daniel Dourado
$ 499,000
avt
Daniel Dourado
$ 550,000
avt
Daniel Dourado
$ 469,000