Active

$219,950

Features:
  • 3 Bedrooms
  • 1 Bathrooms
  • 1129 sq ft
Overview
  • ID: MFRL4956589
  • Bedrooms: 3
  • Bathrooms: 1
  • Size: 1129 sq ft
Property Details
Remarks
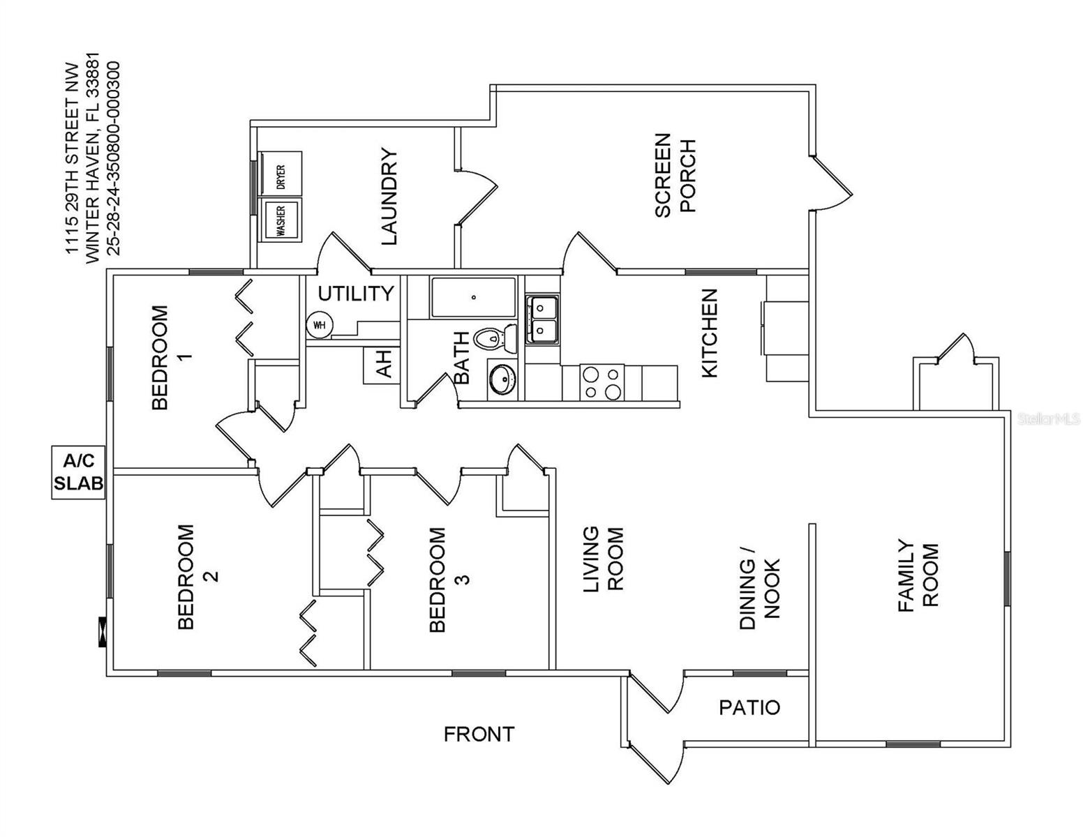
SELLER PAID 2-1 TEMPORARY INTEREST RATE BUYDOWN AVAILABLE - See attachment for monthly payment details with preferred lender. Welcome to this newly renovated 3-bedroom, 1-bath home conveniently located near Lake Cannon and just minutes from all the dining, shopping, and entertainment that Winter Haven and Auburndale have to offer! Step through the front door to find fresh interior paint, new carpet in all bedrooms, and inviting living spaces. The kitchen has been refreshed with brand-new appliances, provides plenty of cabinetry storage and counter space, and has a convenient layout for everyday cooking and entertaining. The bathroom is your own personal retreat featuring a new vanity and a walk-in shower with a dual shower head system. Major updates include a new roof and a newer A/C unit, giving you peace of mind and comfort year-round. Outside, the property is truly unique. Enjoy mornings on your screened-in front porch, or host gatherings on the spacious screened-in back porch complete with an attached utility room. The fenced backyard offers plenty of space for pets or play, and comes complete with a firepit, detached shed, and extra covered storage. There is also an extra wide driveway providing plenty of off-street parking. This home is the perfect blend of comfort, outdoor space, and accessibility to the amenities near you. Don’t miss your chance to see this one!
Financial Considerations
Price:
$219,950
HOA Fee:
N/A
Tax Amount:
$785
Price per SqFt:
$194.82
Tax Legal Description:
ROSEWOOD MANOR PB 37 PG 3 LOT 30
Exterior Features
Lot Size:
9744
Lot Features:
N/A
Waterfront:
No
Parking Spaces:
N/A
Parking:
N/A
Roof:
Shingle
Pool:
No
Pool Features:
N/A
Interior Features
Bedrooms:
3
Bathrooms:
1
Heating:
Central
Cooling:
Central Air
Appliances:
Electric Water Heater, Microwave, Range, Refrigerator
Furnished:
No
Floor:
Carpet, Laminate, Tile
Levels:
One
Additional Features
Property Sub Type:
Single Family Residence
Style:
N/A
Year Built:
1955
Construction Type:
Block
Garage Spaces:
No
Covered Spaces:
N/A
Direction Faces:
East
Pets Allowed:
No
Special Condition:
None
Additional Features:
Other, Storage
Additional Features 2:
N/A
Map
  • Address
    1115 29TH ST NW
Contact a Professional
Why Choose Us?
  • Communication and Transparency
  • Skilled Negotiation
  • Robust Professional Network
  • After-Sale Support
Featured Properties

Related Properties

avt
Daniel Dourado
$ 437,500
avt
Daniel Dourado
$ 1,325,000
avt
Daniel Dourado
$ 925,900
avt
Daniel Dourado
$ 880,000
avt
Daniel Dourado
$ 1,995,000
avt
Daniel Dourado
$ 318,500
avt
Daniel Dourado
$ 600,000
avt
Daniel Dourado
$ 400,000
avt
Daniel Dourado
$ 430,999