Active

$999,990

Features:
  • 4 Bedrooms
  • 4 Bathrooms
  • 2921 sq ft
Overview
  • ID: MFRS5132434
  • Bedrooms: 4
  • Bathrooms: 4
  • Size: 2921 sq ft
Property Details
Remarks
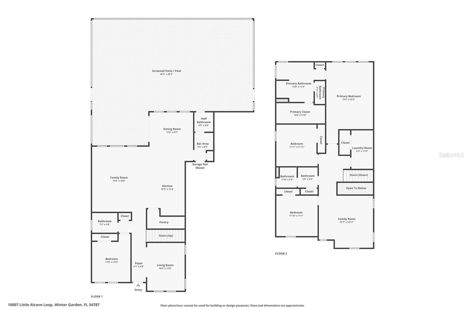
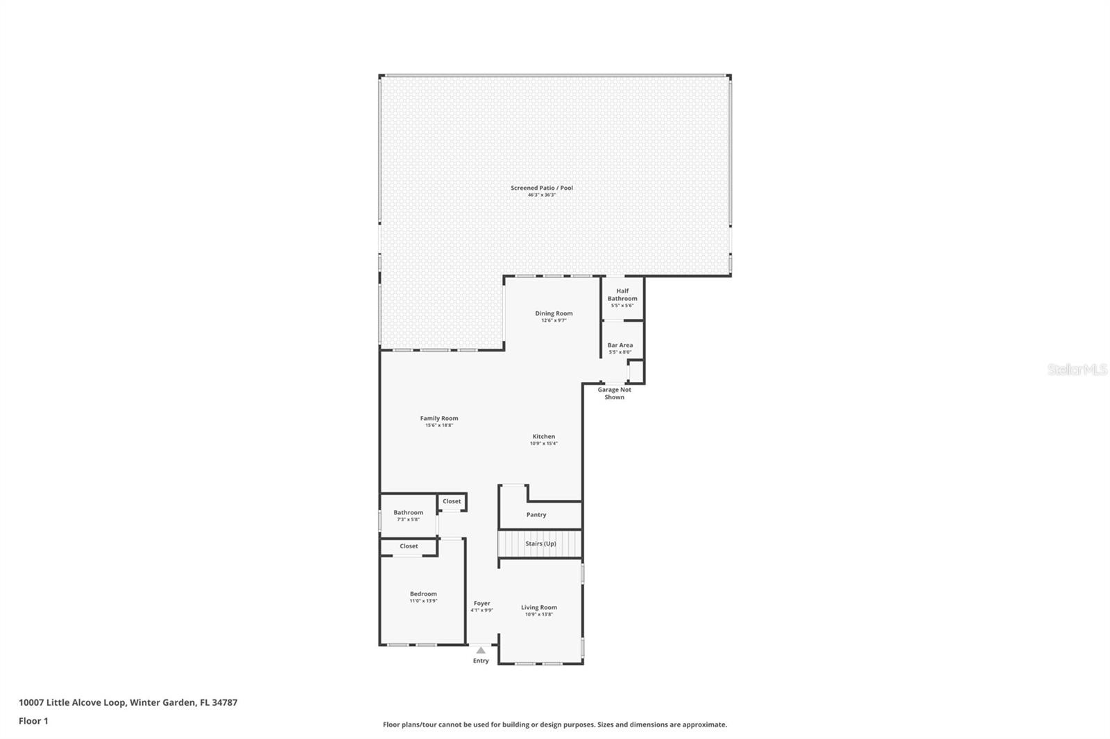
Stunning Emerald serie house, Selden model built in 2018 well maintained, featuring 4 bedrooms, 3.5 bathrooms, and approximately 2,920 sq ft of living space. Situated on a premium corner lot of about 10,585 sq ft, this home offers a 3-car tandem garage, spacious backyard, private wooded views, and a screen-enclosed private pool—perfect for year-round Florida living. The open-concept design includes a formal dining room, elegant foyer with wrought-iron staircase, and a gourmet kitchen with a large island, 42” cabinets with crown molding, granite countertops, stainless steel appliances, and a convenient drop zone from the garage. The owner’s suite boasts a tray ceiling, a spa-like en-suite bathroom with dual sinks, a garden tub, and a spacious walk-in closet. Additional features include a durable concrete tile roof, dual A/C units, and numerous upgrades: exterior lighting, sealed paver driveway and porch, landscape lighting, decorative stonework, epoxy-finished garage floor, and professional landscaping. Lawn care is included with HOA fee. Located in the highly sought-after Waterleigh community in Winter Garden, residents enjoy resort-style amenities: two community clubhouses, 4 resort-style pools, 2 fitness center, beach volleyball, 2 tennis courts, mini-golf, community garden, dog park, fishing pier, and scenic walking/biking trails. The neighborhood is beautifully landscaped with lakes, green spaces, and planned community events. Conveniently located just minutes from Historic Downtown Winter Garden, Winter Garden Village, and easy access to SR-429 for a quick commute to Orlando and Walt Disney World. Zoned for top-rated schools: Atwater bay Elementary, Water Spring Middle, and Horizon High School.
Financial Considerations
Price:
$999,990
HOA Fee:
250
Tax Amount:
$6381.42
Price per SqFt:
$342.35
Tax Legal Description:
WATERLEIGH PHASE 2B 94/90 LOT 266
Exterior Features
Lot Size:
10586
Lot Features:
Corner Lot, Oversized Lot, Sidewalk, Paved
Waterfront:
No
Parking Spaces:
N/A
Parking:
Tandem
Roof:
Tile
Pool:
Yes
Pool Features:
Heated, In Ground, Lighting, Screen Enclosure
Interior Features
Bedrooms:
4
Bathrooms:
4
Heating:
Central, Electric
Cooling:
Central Air
Appliances:
Built-In Oven, Convection Oven, Cooktop, Dishwasher, Disposal, Dryer, Microwave, Refrigerator, Washer
Furnished:
Yes
Floor:
Carpet, Ceramic Tile
Levels:
Two
Additional Features
Property Sub Type:
Single Family Residence
Style:
N/A
Year Built:
2018
Construction Type:
Block, Concrete, Stucco
Garage Spaces:
Yes
Covered Spaces:
N/A
Direction Faces:
South
Pets Allowed:
Yes
Special Condition:
None
Additional Features:
Sidewalk, Sliding Doors, Sprinkler Metered
Additional Features 2:
Please verify with HOA
Map
  • Address
    10007 LITTLE ALCOVE LOOP
Contact a Professional
Why Choose Us?
  • Communication and Transparency
  • Skilled Negotiation
  • Robust Professional Network
  • After-Sale Support
Featured Properties

Related Properties

avt
Daniel Dourado
$ 214,900
avt
Daniel Dourado
$ 785,000
avt
Daniel Dourado
$ 449,900
avt
Daniel Dourado
$ 469,900
avt
Daniel Dourado
$ 875,000
avt
Daniel Dourado
$ 399,000
avt
Daniel Dourado
$ 317,900
avt
Daniel Dourado
$ 349,900
avt
Daniel Dourado
$ 430,000
avt
Daniel Dourado
$ 270,000