Active

$432,500

Features:
  • 3 Bedrooms
  • 3 Bathrooms
  • 1717 sq ft
Overview
  • ID: MFRG5106212
  • Bedrooms: 3
  • Bathrooms: 3
  • Size: 1717 sq ft
Property Details
Remarks
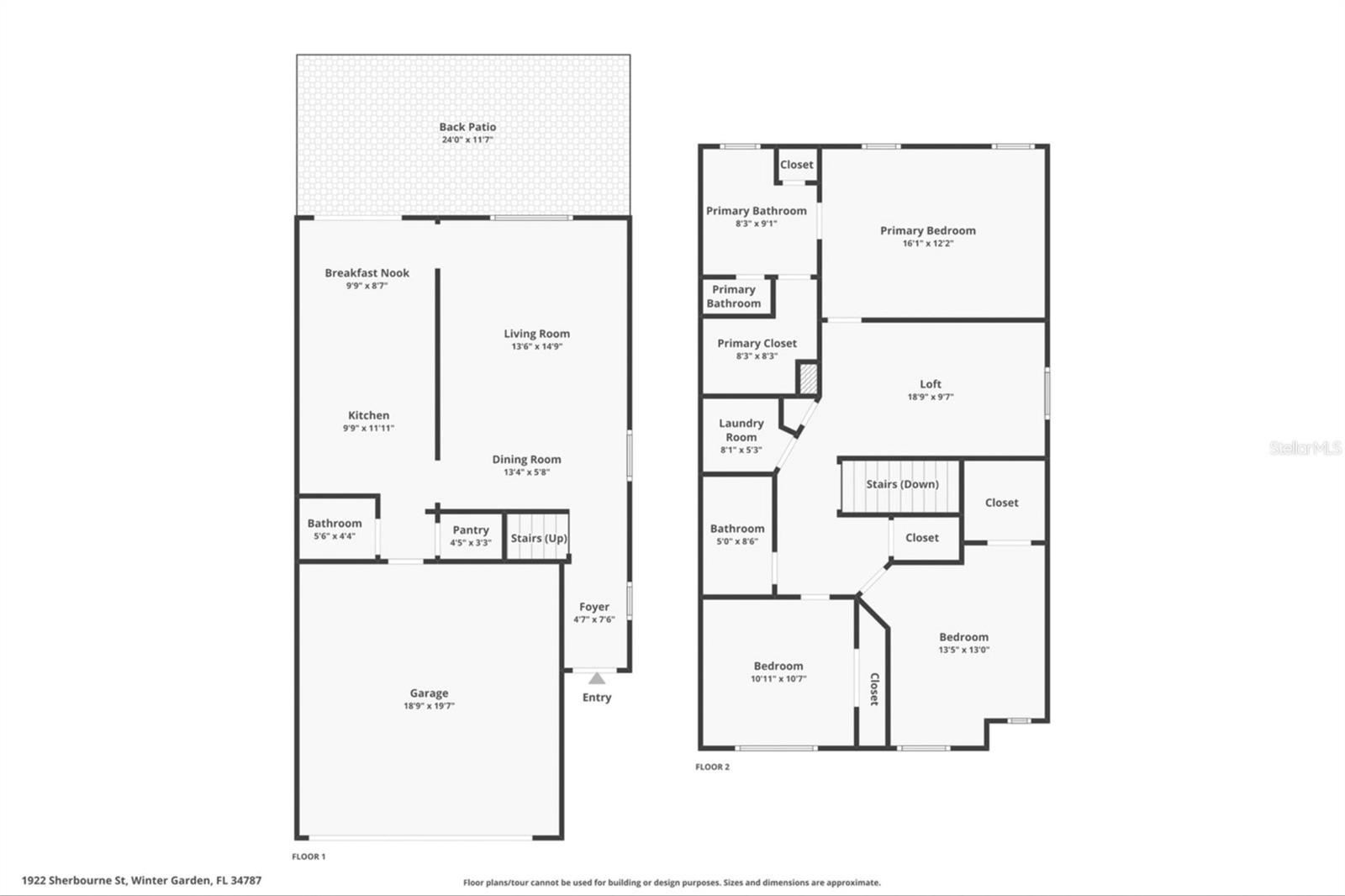
Welcome to this wonderful 3 bedroom, 2.5 bathroom, Winter Garden home in the centrally-located Stone Creek neighborhood. This fabulous home features a bright, open layout, to bring comfort and practicality for everyday living and entertaining. The spacious kitchen features plenty of counter and storage space, with upgraded stainless steel appliances. The kitchen eating area overlooks a generous, completely-fenced, private backyard, with a large patio and gazebo for your added enjoyment. You will find all three bedrooms are upstairs with beautiful laminate wood flooring. The oversized primary bedroom provides abundant space to relax and unwind and features a custom designed walk-in closet for added organization. The generous loft is open for your desired use. With this split floor plan, there are two nicely sized additional bedrooms and a full bathroom that has a bathtub/shower combination. This move-in ready home offers peace of mind, with all the major components already having been completed. Upgrades include a new AC (2025), new roof and rain gutters (2021) double-paned windows (2020), new water heater (2019), and the entire exterior of home fully repainted (2018). Conveniently located to restaurants, grocery stores, Winter Garden Village, as well as downtown Winter Garden, you have easy access to it all! Short distance to top-notch rated schools, not to mention theme parks and other entertainment options. Hop onto the 429 in minutes with a quick connection to the Florida Turnpike. Book your showing today and make this house your new home.
Financial Considerations
Price:
$432,500
HOA Fee:
137
Tax Amount:
$3732.01
Price per SqFt:
$251.89
Tax Legal Description:
STONE CREEK UNIT 1 44/131 LOT 121 BLK 21
Exterior Features
Lot Size:
4606
Lot Features:
N/A
Waterfront:
No
Parking Spaces:
N/A
Parking:
N/A
Roof:
Shingle
Pool:
No
Pool Features:
N/A
Interior Features
Bedrooms:
3
Bathrooms:
3
Heating:
Central, Electric
Cooling:
Central Air
Appliances:
Dishwasher, Disposal, Dryer, Electric Water Heater, Microwave, Range, Refrigerator, Washer
Furnished:
Yes
Floor:
Carpet, Ceramic Tile, Laminate
Levels:
Two
Additional Features
Property Sub Type:
Single Family Residence
Style:
N/A
Year Built:
2006
Construction Type:
Block, Stucco
Garage Spaces:
Yes
Covered Spaces:
N/A
Direction Faces:
North
Pets Allowed:
Yes
Special Condition:
None
Additional Features:
Lighting, Private Mailbox, Rain Gutters, Sidewalk, Sliding Doors
Additional Features 2:
Please check/verify with HOA Lease Restrictions, if any.
Map
  • Address
    1922 SHERBOURNE ST
Contact a Professional
Why Choose Us?
  • Communication and Transparency
  • Skilled Negotiation
  • Robust Professional Network
  • After-Sale Support
Featured Properties

Related Properties

avt
Daniel Dourado
$ 344,900
avt
Daniel Dourado
$ 415,000
avt
Daniel Dourado
$ 825,000
avt
Daniel Dourado
$ 825,000
avt
Daniel Dourado
$ 342,140
avt
Daniel Dourado
$ 219,000
avt
Daniel Dourado
$ 574,990
avt
Daniel Dourado
$ 965,000
avt
Daniel Dourado
$ 275,000
avt
Daniel Dourado
$ 450,000
avt
Daniel Dourado
$ 1,650,000