Sold

$228,990

Features:
  • 3 Bedrooms
  • 3 Bathrooms
  • 1464 sq ft
Overview
  • ID: MFROM702045
  • Bedrooms: 3
  • Bathrooms: 3
  • Size: 1464 sq ft
Property Details
Remarks
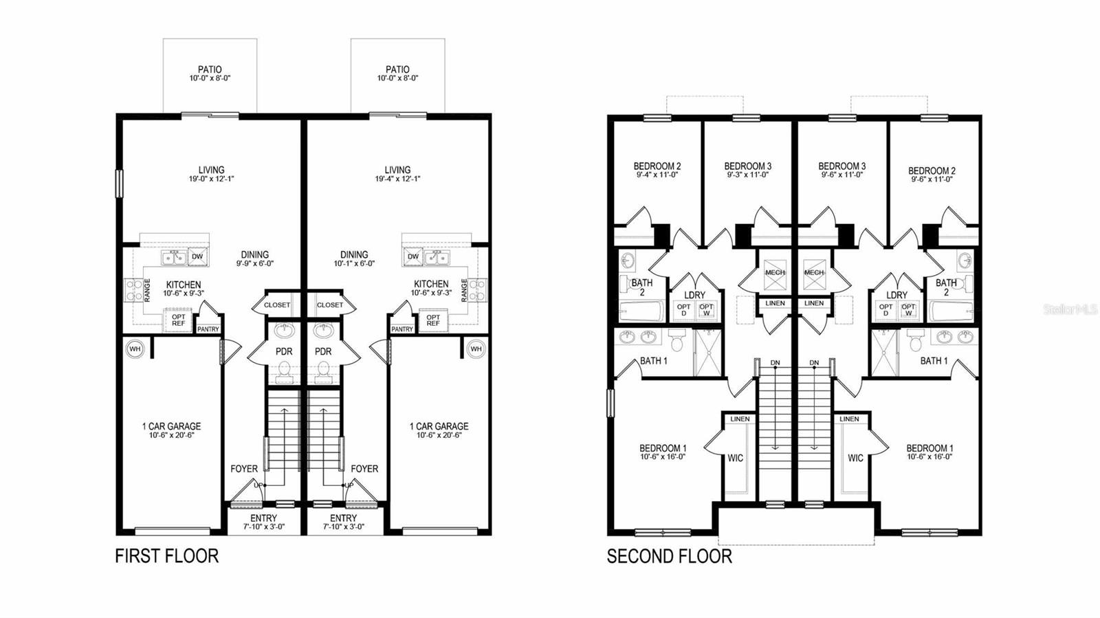
One or more photo(s) has been virtually staged. Under Construction. This two-story townhome has an open concept downstairs layout that includes a large open kitchen, a powder room, and spacious family room that overlooks a patio. The second floor includes a spacious Primary Suite with an ensuite bathroom, two additional bedrooms, a 2nd full bathroom, and a laundry area. This home comes with all appliances including a refrigerator, built-in dishwasher, electric range, microwave, washer, and dryer. Pictures, photographs, colors, features, and sizes are for illustration purposes only and will vary from the homes as built. Home and community information including pricing, included features, terms, availability and amenities are subject to change and prior sale at any time without notice or obligation. CRC057592.
Financial Considerations
Price:
$228,990
HOA Fee:
223
Tax Amount:
$0
Price per SqFt:
$149.58
Tax Legal Description:
LOT 160 TWISTED OAKS TOWNHOMES PHASE 1 PB 21 PGS 36-36D
Exterior Features
Lot Size:
1787
Lot Features:
N/A
Waterfront:
No
Parking Spaces:
N/A
Parking:
N/A
Roof:
Shingle
Pool:
No
Pool Features:
N/A
Interior Features
Bedrooms:
3
Bathrooms:
3
Heating:
Electric, Heat Pump
Cooling:
Central Air
Appliances:
Dishwasher, Dryer, Microwave, Range, Refrigerator, Washer
Furnished:
No
Floor:
Carpet, Luxury Vinyl
Levels:
Two
Additional Features
Property Sub Type:
Townhouse
Style:
N/A
Year Built:
2025
Construction Type:
Block
Garage Spaces:
Yes
Covered Spaces:
N/A
Direction Faces:
South
Pets Allowed:
Yes
Special Condition:
None
Additional Features:
N/A
Additional Features 2:
Per HOA Guidelines
Map
  • Address
    8385 GOWER TRL
Contact a Professional
Why Choose Us?
  • Communication and Transparency
  • Skilled Negotiation
  • Robust Professional Network
  • After-Sale Support
Featured Properties

Related Properties

avt
Daniel Dourado
$ 345,900
avt
Daniel Dourado
$ 319,990
avt
Daniel Dourado
$ 300,015
avt
Daniel Dourado
$ 235,000
img
  • Featured
  • Active
Townhouse

9046 MULLIGAN ISLAND LN

  • 4
  • 4
  • 181 m²
avt
Daniel Dourado
$ 398,999
avt
Daniel Dourado
$ 284,900
img
  • Featured
  • Active
Townhouse

2262 WASHINGTON PALM CT

  • 3
  • 3
  • 166 m²
avt
Daniel Dourado
$ 345,000
avt
Daniel Dourado
$ 455,840
avt
Daniel Dourado
$ 509,000
avt
Daniel Dourado
$ 540,000
avt
Daniel Dourado
$ 340,000
avt
Daniel Dourado
$ 395,000