Active

$825,000

Features:
  • 4 Bedrooms
  • 3 Bathrooms
  • 2866 sq ft
Overview
  • ID: MFRTB8496123
  • Bedrooms: 4
  • Bathrooms: 3
  • Size: 2866 sq ft
Property Details
Remarks
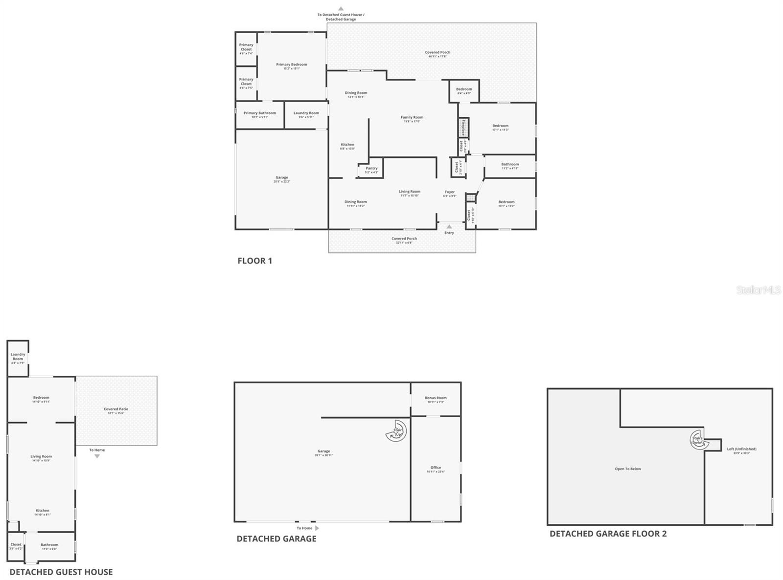
Set on over an acre in the established and centrally located Quail Hollow community, this property includes a 3-bedroom, 2-bath, 2-car garage updated main home with a 2024 roof, a fully permitted 1-BED 1-BATH detached apartment, and a 32x52 GARAGE WITH OFFICE SPACE, all surrounding a sparkling pool oasis. Mature landscaping and a covered front porch with BRAND NEW beautiful doors that welcome you into the main home with an updated interior and a practical layout, creating a comfortable flow for cozy nights at home or entertaining. Near the entryway, the combined living and dining areas feature updated lighting and a bright, open feel. Just beyond, the family room is highlighted by high ceilings, wood flooring, and a wood-burning fireplace with stone detail and a wood mantle. French doors open to the pool, and the space connects directly to the kitchen. Overlooking the family room, the chef’s kitchen is equipped with a brand new range and stainless steel appliances, granite countertops, a backsplash, breakfast bar seating, a large walk-in pantry, and an eat-in dinette. An oversized laundry room is located nearby for convenience! Set apart from the secondary bedrooms, the primary suite includes French door access to the pool, two walk-in closets, and an ensuite bathroom with dual sinks and a glass-enclosed walk-in shower. Across the home, two guest bedrooms are positioned near the second full bathroom, complete with a tub and shower combination and decorative tile. Notable upgrades include a 2024 roof, an electric gate, a tankless water heater, and hurricane wind-rated doors, and the property is fully fenced! Adding immediate value, the detached apartment offers strong income potential or space for multi-generational living. Previously rented for $1,600 per month, it features a kitchenette, a full bathroom, an open living area that connects to a bonus room, and multiple sliding doors that lead out to the pool deck and covered patio. It even has its own laundry facilities! Positioned toward the rear of the property, the 32x52 garage is built for function with a 12-foot two-car electric door and a 14-foot roll-up door. A 20-foot peak height allows for oversized storage, while a second-story loft and temperature-controlled office add even more usable space. Imagine having everything you need set on a beautiful piece of property and spending days under the sun in the swimming pool, appreciating it all! Several covered seating areas, a paver pool deck, a decorative pond with water features, and tropical landscaping truly set a scene for the ultimate in Florida living. Positioned just a short drive from local hotspots including The Krate, The Grove, Target, Tampa Premium Outlets, medical facilities including the soon-to-open Johns Hopkins Children’s Hospital, local restaurants, major highways for commuter convenience, and zoning for Cypress Creek Middle and High School- this is one you do not want to miss. Call today for your private tour!
Financial Considerations
Price:
$825,000
HOA Fee:
N/A
Tax Amount:
$4427.57
Price per SqFt:
$287.86
Tax Legal Description:
TAMPA HIGHLANDS UNREC LOT 275 DESC AS COM NE COR SEC TH S0DEG 02' 53"W 980FT TH N89DEG 03'6"W 2802.76 FT TH S1DEG 02' 53"W 145.99 FT (Q) TO PC CV TH SLY ALG ARC OF CV L 236.10 FT RAD 785.77 FT CHD 235.21 FT BRG S7DEG 33' 35"E TH S16DEG 10' 03"E 262.7 4 FT TH SLY ALG ARC OF CV R 429.23 FT FOR POB RAD 749.06 FT CHD 423.38 FT BRG S00DEG 14' 54"W TH SLY ALG ARC OF CV R 129.18 FT TO PRC RAD 729.06 FT CHD 129.02 FT BRG S21DEG 36' 18"W TH SLY ALG ARC L 32.59 FT RAD 2625.73 FT CHD 32.58 FT BRG S26DEG 11 ' 24"W TH N88DEG 57' 07"W 316.11 FT TH N19DEG 28' 08"E 158.42 FT TH S88DEG 57' 07"E 325.19 FT TO POB OR 8893 PG 2243
Exterior Features
Lot Size:
47045
Lot Features:
In County, Landscaped, Oversized Lot, Paved, Zoned for Horses
Waterfront:
No
Parking Spaces:
N/A
Parking:
Boat, Garage Faces Side, Other, Oversized
Roof:
Shingle
Pool:
Yes
Pool Features:
Gunite, In Ground, Salt Water
Interior Features
Bedrooms:
4
Bathrooms:
3
Heating:
Central
Cooling:
Central Air
Appliances:
Dishwasher, Dryer, Microwave, Range, Refrigerator, Washer
Furnished:
Yes
Floor:
Carpet, Laminate, Tile, Wood
Levels:
One
Additional Features
Property Sub Type:
Single Family Residence
Style:
N/A
Year Built:
1981
Construction Type:
Block, Stucco
Garage Spaces:
Yes
Covered Spaces:
N/A
Direction Faces:
East
Pets Allowed:
No
Special Condition:
None
Additional Features:
French Doors, Lighting, Rain Gutters, Sliding Doors
Additional Features 2:
Buyer must verify all restrictions.
Map
  • Address
    7601 THUNDERHEAD ST
Contact a Professional
Why Choose Us?
  • Communication and Transparency
  • Skilled Negotiation
  • Robust Professional Network
  • After-Sale Support
Featured Properties

Related Properties

avt
Daniel Dourado
$ 385,000
avt
Daniel Dourado
$ 365,000
avt
Daniel Dourado
$ 355,000
avt
Daniel Dourado
$ 389,000
avt
Daniel Dourado
$ 325,000
avt
Daniel Dourado
$ 289,000
avt
Daniel Dourado
$ 1,489,900
avt
Daniel Dourado
$ 749,000
avt
Daniel Dourado
$ 240,000
avt
Daniel Dourado
$ 225,000
avt
Daniel Dourado
$ 215,000