Active

$369,900

Features:
  • 3 Bedrooms
  • 3 Bathrooms
  • 1853 sq ft
Overview
  • ID: MFRTB8460544
  • Bedrooms: 3
  • Bathrooms: 3
  • Size: 1853 sq ft
Property Details
Remarks
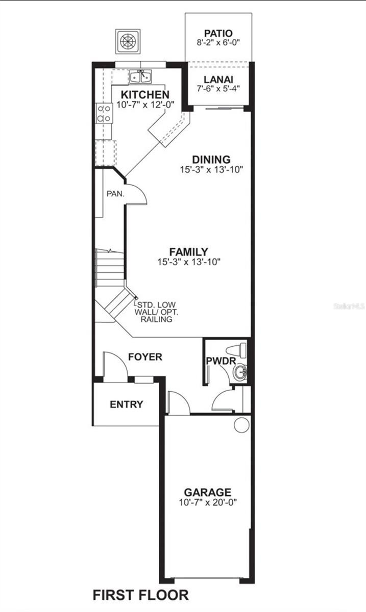
Welcome to your dream townhome in the heart of Wesley Chapel! This luxury residence, built in 2022, features impeccable upgrades throughout. The open-concept layout is highlighted by modern metal stair railings and a sleek farmhouse sink in the gourmet kitchen, which is equipped with slow-close hinges and adorned with elegant bronze accents. High-end appliances, including the refrigerator, range, and dishwasher, come with a 5-year warranty, ensuring peace of mind. The primary suite offers a spa-like retreat with double sinks and a stunning glass shower enclosure. Thoughtful touches like a soft water loop and a 10-year structural warranty add to the home's appeal, while the new roof, HVAC, and water heater provide top-notch efficiency. The home is also equipped with a Clare One home security system that seamlessly connects exterior lights, the garage door, and door sensors, plus a Nest doorbell for added security. Located in one of Wesley Chapel’s most desirable communities, you'll enjoy access to premium amenities like a swimming pool, cabana, and a serene pond, creating the perfect setting for evening sunset strolls. The community also boasts top-rated schools and convenient shopping and dining options just minutes away. With easy access to major highways, you’re just a short drive from the vibrant culture and dining of downtown Tampa. Experience a blend of luxury, convenience, and vibrant community living in this exquisite townhome!
Financial Considerations
Price:
$369,900
HOA Fee:
332
Tax Amount:
$4869.79
Price per SqFt:
$199.62
Tax Legal Description:
WINDERMERE ESTATES AT WIREGRASS RANCH PHASE 2 PB 83 PG 065 LOT 194
Exterior Features
Lot Size:
2189
Lot Features:
N/A
Waterfront:
No
Parking Spaces:
N/A
Parking:
N/A
Roof:
Shingle
Pool:
No
Pool Features:
N/A
Interior Features
Bedrooms:
3
Bathrooms:
3
Heating:
Electric
Cooling:
Central Air
Appliances:
Dishwasher, Dryer, Microwave, Range, Refrigerator, Washer
Furnished:
Yes
Floor:
Carpet, Tile, Vinyl
Levels:
Two
Additional Features
Property Sub Type:
Townhouse
Style:
N/A
Year Built:
2022
Construction Type:
Block, Frame
Garage Spaces:
Yes
Covered Spaces:
N/A
Direction Faces:
Northeast
Pets Allowed:
No
Special Condition:
None
Additional Features:
Lighting, Sliding Doors
Additional Features 2:
N/A
Map
  • Address
    2469 STAPLEFORD PL
Contact a Professional
Why Choose Us?
  • Communication and Transparency
  • Skilled Negotiation
  • Robust Professional Network
  • After-Sale Support
Featured Properties

Related Properties

img
  • Featured
  • Active
Townhouse

10380 LAVENDER ASTER TRL

  • 3
  • 3
  • 215 m²
avt
Daniel Dourado
$ 327,500
avt
Daniel Dourado
$ 225,000
avt
Daniel Dourado
$ 299,500
avt
Daniel Dourado
$ 285,000
img
  • Featured
  • Active
Townhouse

1008 UNIVERSAL REST PL

  • 3
  • 2
  • 160 m²
avt
Daniel Dourado
$ 300,000
avt
Daniel Dourado
$ 525,000
img
  • Featured
  • Active
Townhouse

946 HIGHLAND AVE #16

  • 3
  • 4
  • 183 m²
avt
Daniel Dourado
$ 899,900
avt
Daniel Dourado
$ 410,000
avt
Daniel Dourado
$ 275,000
img
  • Featured
  • Active
Townhouse

11728 CAMBIUM CROWN DR

  • 3
  • 3
  • 159 m²
avt
Daniel Dourado
$ 300,000
avt
Daniel Dourado
$ 479,900
avt
Daniel Dourado
$ 459,000