Active

$284,990

Features:
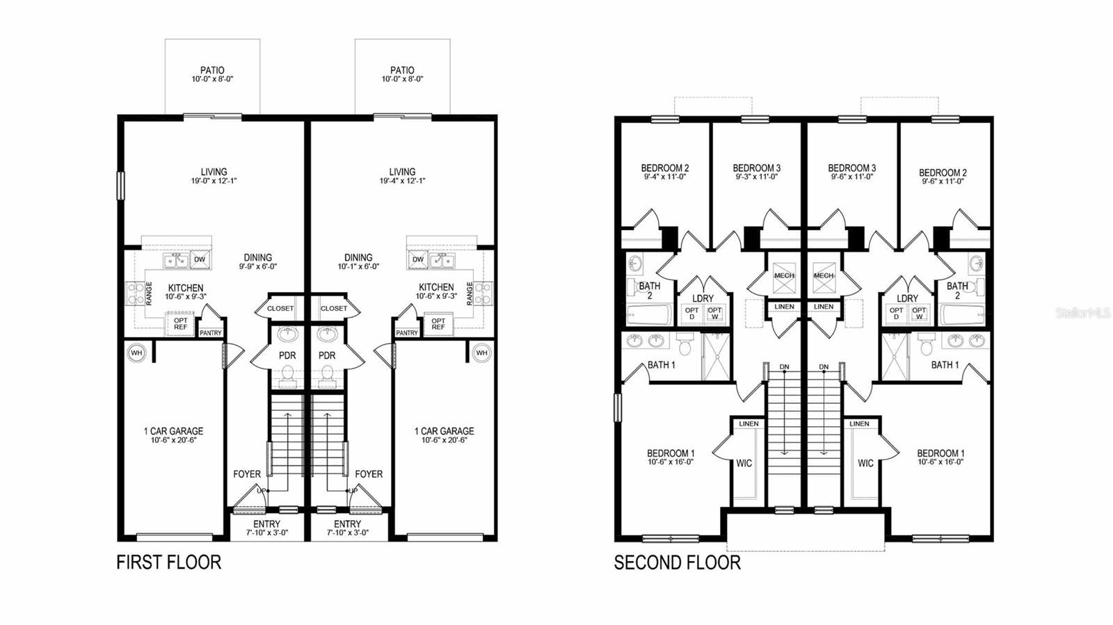
  • 3 Bedrooms
  • 3 Bathrooms
  • 1463 sq ft
Overview
  • ID: MFRTB8458343
  • Bedrooms: 3
  • Bathrooms: 3
  • Size: 1463 sq ft
Property Details
Remarks
Under Construction. The builder is offering buyers up to $25,000 towards closing costs with the use of a preferred lender and title company. Woodsdale is situated with quick access to I-75 and in a prime location of the booming city, which was recently named by the North Tampa Bay Chambers of Commerce as the region’s most desirable location in the Tampa suburbs. Close to all things shopping, dining, entertainment, and not to mention the area’s top-rated local and charter schools, this community offers you endless opportunities. Each home is constructed with concrete block on 1st and 2nd stories, comes equipped with D.R. Horton’s Smart Home System, and is backed by America’s #1 Builder since 2002. Pictures, photographs, colors, features, and sizes are for illustration purposes only and will vary from the homes as built. Home and community information, including pricing, included features, terms, availability, and amenities, are subject to change and prior sale at any time without notice or obligation. Materials may vary based on availability. D.R. Horton Reserves all Rights.
Financial Considerations
Price:
$284,990
HOA Fee:
61
Tax Amount:
$0
Price per SqFt:
$194.8
Tax Legal Description:
TOWNS AT WOODSDALE PHASE 2 PB 92 PG 143 BLOCK 18 LOT 227
Exterior Features
Lot Size:
0
Lot Features:
N/A
Waterfront:
No
Parking Spaces:
N/A
Parking:
Parking Pad
Roof:
Shingle
Pool:
No
Pool Features:
N/A
Interior Features
Bedrooms:
3
Bathrooms:
3
Heating:
Central, Heat Pump
Cooling:
Central Air
Appliances:
Dishwasher, Electric Water Heater, Microwave, Refrigerator, Washer
Furnished:
Yes
Floor:
Carpet, Luxury Vinyl
Levels:
Two
Additional Features
Property Sub Type:
Townhouse
Style:
N/A
Year Built:
2026
Construction Type:
Block, Stucco
Garage Spaces:
Yes
Covered Spaces:
N/A
Direction Faces:
North
Pets Allowed:
Yes
Special Condition:
None
Additional Features:
N/A
Additional Features 2:
Per HOA Guidelines
Map
  • Address
    31218 MIDNIGHT SUN WAY
Contact a Professional
Why Choose Us?
  • Communication and Transparency
  • Skilled Negotiation
  • Robust Professional Network
  • After-Sale Support
Featured Properties

Related Properties

avt
Daniel Dourado
$ 210,000
avt
Daniel Dourado
$ 298,995
img
  • Featured
  • Active
Townhouse

222 CARPENTERS WAY #69

  • 3
  • 3
  • 131 m²
avt
Daniel Dourado
$ 239,900
avt
Daniel Dourado
$ 499,950
avt
Daniel Dourado
$ 296,720
avt
Daniel Dourado
$ 279,990
avt
Daniel Dourado
$ 297,990
avt
Daniel Dourado
$ 297,990
avt
Daniel Dourado
$ 284,990
avt
Daniel Dourado
$ 284,990
avt
Daniel Dourado
$ 284,990
avt
Daniel Dourado
$ 279,990