Active

$1,299,000

Features:
  • Bedrooms
  • 0 Bathrooms
  • sq ft
Overview
  • ID: MFRTB8306840
  • Bedrooms:
  • Bathrooms: 0
  • Size: sq ft
Property Details
Remarks
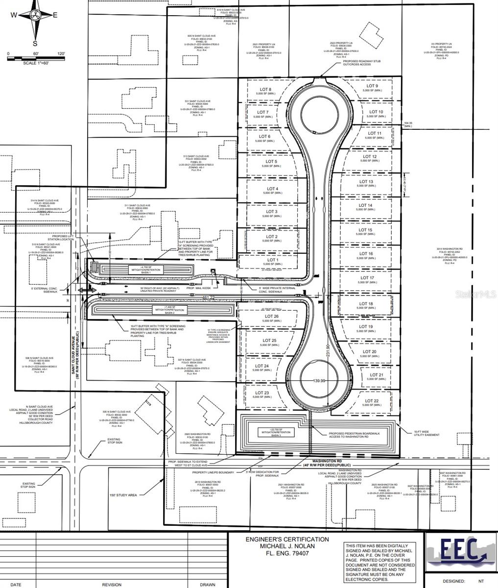
This 6.92-acre property, zoned Planned Development (PD) for 26 single-family homes, offers a unique investment opportunity in the thriving Valrico market. The combined parcels include 2932 Washington Rd, Valrico, FL (MLS TB8306840) comprising 6 acres, and 509 N Saint Cloud Avenue, Valrico, FL (MLS TB8306834) totaling 0.92 acres. Please note, the owner is not willing to separate the parcels. Several land tests have already been completed, providing a solid foundation for development. The property includes a home built in 1958 with three bedrooms and one bathroom, which has been unoccupied for several years. It remains structurally sound and is connected to an electric source, with potential to hook up to county water. Additionally, the land is equipped with three wells, a septic tank, and an electric pole. This property backs up to well-established communities like Somerset and is adjacent to new developments such as Valri Forest, highlighting the growth potential of the area. Valrico is experiencing a surge in new construction, making it a prime location for developers looking to build in a high-demand area. Its proximity to top-rated schools, retail centers, and recreational facilities adds to the appeal, drawing families and professionals alike. Just minutes from Highway 60 and a short 10-15 minute drive to Plant City, this property offers both convenience and opportunity. The growing demand for new homes in Valrico, combined with its desirable location, makes this land especially attractive to investors. Architectural renderings of the approved planned development, vetted by Hillsborough County, are available for review. Don’t miss the chance to be part of Valrico’s rapid growth and create a standout community in this flourishing market.
Financial Considerations
Price:
$1,299,000
HOA Fee:
N/A
Tax Amount:
$7222.48
Price per SqFt:
$4.97
Tax Legal Description:
E 1/2 OF W 1/2 OF SW 1/4 OF NW 1/4 LESS N 528 FT
Exterior Features
Lot Size:
261360
Lot Features:
N/A
Waterfront:
No
Parking Spaces:
N/A
Parking:
N/A
Roof:
N/A
Pool:
No
Pool Features:
N/A
Interior Features
Bedrooms:
Bathrooms:
0
Heating:
N/A
Cooling:
N/A
Appliances:
N/A
Furnished:
No
Floor:
N/A
Levels:
N/A
Additional Features
Property Sub Type:
N/A
Style:
N/A
Year Built:
N/A
Construction Type:
N/A
Garage Spaces:
No
Covered Spaces:
N/A
Direction Faces:
N/A
Pets Allowed:
No
Special Condition:
None
Additional Features:
N/A
Additional Features 2:
N/A
Map
  • Address
    2932 WASHINGTON RD
Contact a Professional
Why Choose Us?
  • Communication and Transparency
  • Skilled Negotiation
  • Robust Professional Network
  • After-Sale Support
Featured Properties

Related Properties

img
  • Featured
  • Active

6500 GULFSIDE RD

  • 0
  • 0 m²
avt
Daniel Dourado
$ 1,449,000
avt
Daniel Dourado
$ 899,000
img
  • Featured
  • Active

NW COUNTY RD 143

  • 0
  • 0 m²
avt
Daniel Dourado
$ 1,614,075
img
  • Featured
  • Active

1025 SUNFLOWER TRL

  • 0
  • 0 m²
avt
Daniel Dourado
$ 200,000
img
  • Featured
  • Active

4468 GREENWOOD STABLES RD

  • 0
  • 0 m²
avt
Daniel Dourado
$ 850,000
img
  • Featured
  • Active

19788 NW 91ST ST

  • 0
  • 0 m²
avt
Daniel Dourado
$ 650,000
img
  • Featured
  • Active

214 E SHOCKLEY RD

  • 0
  • 0 m²
avt
Daniel Dourado
$ 4,205,734
img
  • Featured
  • Active

2051 SE 155TH ST

  • 0
  • 0 m²
avt
Daniel Dourado
$ 2,700,000
avt
Daniel Dourado
$ 695,000
img
  • Featured
  • Active

LAKEFRONT PROPERTY

  • 0
  • 0 m²
avt
Daniel Dourado
$ 395,000
avt
Daniel Dourado
$ 295,000
img
  • Featured
  • Active

421 CARDINAL OAKS CT

  • 0
  • 0 m²
avt
Daniel Dourado
$ 395,000