Active

$489,900

Features:
  • 4 Bedrooms
  • 3 Bathrooms
  • 2439 sq ft
Overview
  • ID: MFRTB8485724
  • Bedrooms: 4
  • Bathrooms: 3
  • Size: 2439 sq ft
Property Details
Remarks
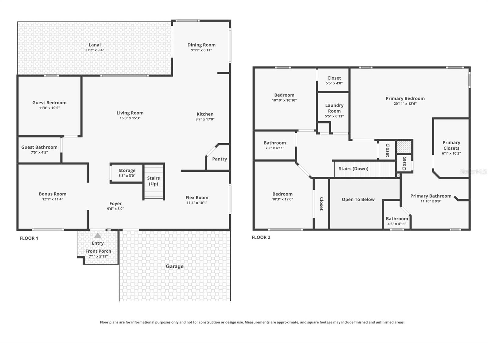
One or more photo(s) has been virtually staged. A NEW ROOF WILL BE INSTALLED AT SELLER EXPENSES & BUYER'S CHOICE OF SHOWER GLASS DOOR TO BE INSTALLED BEFORE CLOSING!!! ***ENJOY RESORT-STYLE LIVING IN THIS BEAUTIFULLY RENOVATED HOME NESTLED IN THE HIGHLY DESIRABLE VILLAGE OF THE PRESERVE @ WEST MEADOWS, ONE OF NEW TAMPA'S MOST SOUGHT-AFTER COMMUNITIES, KNOWN FOR ITS INCREDIBLE 35 ACRE AMENITIES, BEAUTIFUL NATURE TRAILS, AND VERY LOW HOA & CDD*** This spacious 4-BEDROOM, 3-BATH home with over 2,400 sq ft, a 2-CAR garage, BONUS ROOM, FLEX ROOM, and LARGE COVERED LANAI offers the perfect blend of modern comfort, versatile living spaces, and an exceptional location in the heart of New Tampa. The FLEXIBLE LAYOUT is ideal for MULTI-GENERATIONAL LIVING with a GUEST BEDROOM & ADJOINING FULL BATH DOWNSTAIRS, while the bonus room and flex room provide ENDLESS POSSIBILITIES for a home office, playroom, Study Room, Hobby Room, formal living or dining room. From the moment you step inside, the SOARING TWO-STORY ENTRY and BRIGHT atmosphere set the tone for the home. FRESH INTERIOR and EXTERIOR PAINT in a SOFT NEUTRAL PALETTE enhances the sense of light and space, while NEW LUXURY VINYL PLANK FLOORING throughout the living areas — with NO carpet — complements the open layout bathed in natural light. The home has been THOUGHTFULLY REMODELED WITH: NEW QUARTZ COUNTERTOPS, Refinished SOLID WOOD KITCHEN CABINETERY, NEW STAINLESS STEEL APPLIANCES, UPDATED BATHROOMS, and NEW FIXTURES, as well as 2 NEWER AC from 2021 & 2023. Upstairs, the PRIMARY SUITE serves as a TRUE PEACEFUL RETREAT, featuring walk-in closets, a relaxing garden tub, a separate shower, and double split vanities. Two additional bedrooms complete the second floor, including one with its own walk-in closet. Step outside to enjoy the LARGE COVERED LANAI and spacious FENCED BACKYARD SHADED BY MATURE TREES, perfect for relaxing, entertaining, or enjoying quiet Florida evenings. Living in West Meadows means enjoying exceptional resort-style amenities, including: Clubhouse, Heated Junior Olympic lap pool, Resort-style pool with waterslide, Children’s splash park, Playgrounds and recreation areas, Tennis & pickleball courts, Basketball courts, Soccer & baseball fields, Beach volleyball courts, Two dog parks, Beautiful nature trails and walking paths. Conveniently located just minutes from Bruce B. Downs Blvd and I-75, providing easy access to USF, Moffitt Cancer Center, AdventHealth, Wiregrass Mall, Tampa Premium Outlets, restaurants, and downtown Tampa. Call/Text today to schedule your private showing, and come experience the lifestyle that makes West Meadows one of the most loved communities in New Tampa.
Financial Considerations
Price:
$489,900
HOA Fee:
1331
Tax Amount:
$6870
Price per SqFt:
$200.86
Tax Legal Description:
WEST MEADOWS PARCELS 12A 12B-1 AND 13-1 LOT 26 BLOCK 3
Exterior Features
Lot Size:
5750
Lot Features:
Level, Sidewalk, Paved
Waterfront:
No
Parking Spaces:
N/A
Parking:
Driveway, Garage Door Opener
Roof:
Shingle
Pool:
No
Pool Features:
Gunite, In Ground, Lap, Other
Interior Features
Bedrooms:
4
Bathrooms:
3
Heating:
Central, Electric
Cooling:
Central Air
Appliances:
Dishwasher, Dryer, Electric Water Heater, Microwave, Range
Furnished:
Yes
Floor:
Luxury Vinyl, Tile
Levels:
Two
Additional Features
Property Sub Type:
Single Family Residence
Style:
N/A
Year Built:
2004
Construction Type:
Block, Stucco
Garage Spaces:
Yes
Covered Spaces:
N/A
Direction Faces:
Southeast
Pets Allowed:
No
Special Condition:
None
Additional Features:
Private Mailbox, Rain Gutters, Sliding Doors
Additional Features 2:
Check with HOA
Map
  • Address
    8212 CYPRESS BREEZE WAY
Contact a Professional
Why Choose Us?
  • Communication and Transparency
  • Skilled Negotiation
  • Robust Professional Network
  • After-Sale Support
Featured Properties

Related Properties

avt
Daniel Dourado
$ 1,024,900
avt
Daniel Dourado
$ 2,595,000
avt
Daniel Dourado
$ 474,700
avt
Daniel Dourado
$ 359,900
avt
Daniel Dourado
$ 575,000
avt
Daniel Dourado
$ 305,000
avt
Daniel Dourado
$ 2,999,900