Active

$240,000

Features:
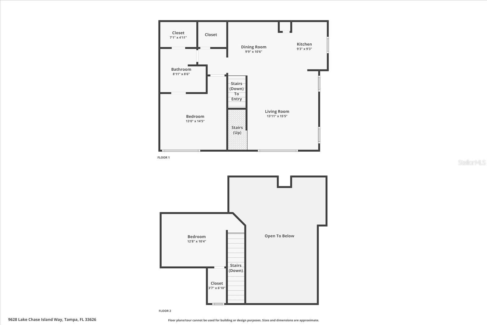
  • 2 Bedrooms
  • 1 Bathrooms
  • 1132 sq ft
Overview
  • ID: MFRTB8459316
  • Bedrooms: 2
  • Bathrooms: 1
  • Size: 1132 sq ft
Property Details
Remarks
Step into a world of effortless luxury and sun-drenched tranquility with this breathtaking, entirely furnished retreat that perfectly captures the vibrant essence of Florida living! From the moment you cross the threshold, you are greeted by the dramatic elegance of soaring tall ceilings that create an expansive, airy atmosphere, beautifully highlighting the recently renovated areas and the sophisticated sparkle of premium marble countertops. This isn't just a house; it’s a high-tech haven featuring cutting-edge smart home features and top-tier energy-efficient appliances that make modern life feel like a breeze. The location perks are truly unbeatable, placing you in a secure, gated paradise where every day feels like a vacation; you can start your mornings with a peaceful lake view while strolling the scenic 1.5-mile waterfront trail, or get your heart racing on the professional-grade tennis, volleyball, and basketball courts. Whether you’re soaking up the sun at one of the two sparkling, resort-style pools, crushing your fitness goals in the state-of-the-art gym, or taking a short skip over to the charming boutiques of West Park Village, this home offers an electrified lifestyle of comfort and convenience that is ready for you to enjoy the very second you get the keys!
Financial Considerations
Price:
$240,000
HOA Fee:
548
Tax Amount:
$2866.21
Price per SqFt:
$212.01
Tax Legal Description:
LAKE CHASE CONDOMINIUM UNIT 9628 BLDG 28 AND UNDIV INT IN COMMON ELEMENTS
Exterior Features
Lot Size:
2
Lot Features:
N/A
Waterfront:
No
Parking Spaces:
N/A
Parking:
N/A
Roof:
Shingle
Pool:
No
Pool Features:
N/A
Interior Features
Bedrooms:
2
Bathrooms:
1
Heating:
Central
Cooling:
Central Air
Appliances:
Dishwasher, Dryer, Microwave, Range, Refrigerator, Washer
Furnished:
Yes
Floor:
Luxury Vinyl
Levels:
Two
Additional Features
Property Sub Type:
Condominium
Style:
N/A
Year Built:
2001
Construction Type:
Stucco
Garage Spaces:
No
Covered Spaces:
N/A
Direction Faces:
South
Pets Allowed:
No
Special Condition:
None
Additional Features:
Lighting, Other, Sidewalk
Additional Features 2:
BUYER TO VERIFY ALL INFO WITH HOA
Map
  • Address
    9628 LAKE CHASE ISLAND WAY #9628
Contact a Professional
Why Choose Us?
  • Communication and Transparency
  • Skilled Negotiation
  • Robust Professional Network
  • After-Sale Support
Featured Properties

Related Properties

avt
Daniel Dourado
$ 524,000
avt
Daniel Dourado
$ 200,000
img
  • Featured
  • Active
Condominium

150 CANDELERO DRIVE #872

  • 2
  • 2
  • 125 m²
avt
Daniel Dourado
$ 415,000
img
  • Featured
  • Active
Condominium

1013 W PEPPERTREE DR #115

  • 2
  • 2
  • 102 m²
avt
Daniel Dourado
$ 995,000
avt
Daniel Dourado
$ 385,000
avt
Daniel Dourado
$ 295,500
avt
Daniel Dourado
$ 1,285,000
avt
Daniel Dourado
$ 449,000
avt
Daniel Dourado
$ 475,000
avt
Daniel Dourado
$ 209,000
img
  • Featured
  • Active
Condominium

1200 E PEPPERTREE LN #601

  • 2
  • 2
  • 135 m²
avt
Daniel Dourado
$ 849,000
img
  • Featured
  • Active
Condominium

5608 SUMMIT POINTE CIR #103

  • 3
  • 2
  • 196 m²
avt
Daniel Dourado
$ 469,597