Active

$533,900

Features:
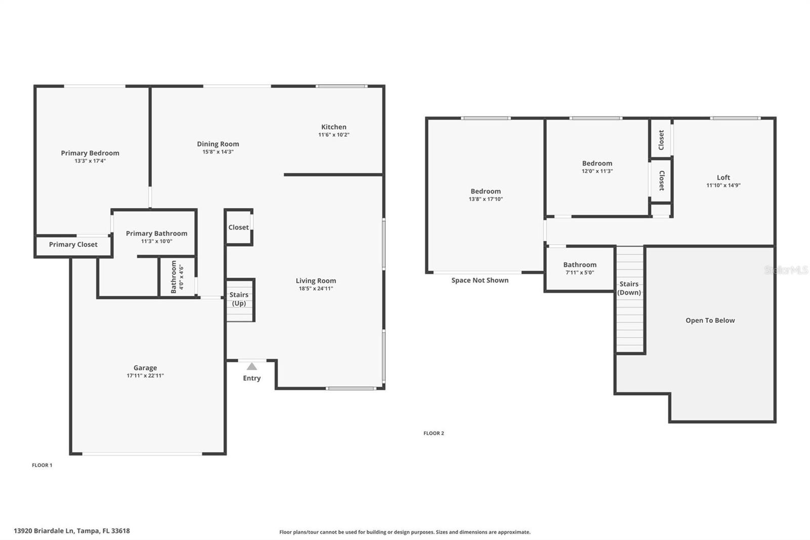
  • 3 Bedrooms
  • 3 Bathrooms
  • 1826 sq ft
Overview
  • ID: MFRTB8304286
  • Bedrooms: 3
  • Bathrooms: 3
  • Size: 1826 sq ft
Property Details
Remarks
Welcome to this beautifully maintained 3 bed, 2.5 bath saltwater pool home in the sought-after Cherry Creek community. Featuring a newly installed paver driveway (2022), vinyl fencing, and a roof replaced in 2021. Both the interior and exterior, including the stucco, were freshly painted in 2022. The home boasts a remodeled kitchen (2016) and durable vinyl plank flooring throughout (2016). Key upgrades include a new HVAC system and saltwater cell, ensuring energy efficiency and comfort. Enjoy your private backyard oasis with 7 fully mature, fruit-producing citrus trees. Security cameras convey with the home for added peace of mind. Don't miss this move-in-ready gem! Elite Roof with Lighting. Great for nighttime entertaining with open pool and patio.
Financial Considerations
Price:
$533,900
HOA Fee:
N/A
Tax Amount:
$2068
Price per SqFt:
$292.39
Tax Legal Description:
CHERRY CREEK UNIT 4 LOT 22 BLOCK 11
Exterior Features
Lot Size:
8662
Lot Features:
N/A
Waterfront:
No
Parking Spaces:
N/A
Parking:
Driveway, Garage Door Opener
Roof:
Shingle
Pool:
Yes
Pool Features:
Gunite, In Ground, Lighting, Salt Water
Interior Features
Bedrooms:
3
Bathrooms:
3
Heating:
Central, Electric
Cooling:
Central Air
Appliances:
Other
Furnished:
No
Floor:
Tile, Wood
Levels:
Two
Additional Features
Property Sub Type:
Single Family Residence
Style:
N/A
Year Built:
1975
Construction Type:
Block, Wood Frame
Garage Spaces:
Yes
Covered Spaces:
N/A
Direction Faces:
East
Pets Allowed:
Yes
Special Condition:
None
Additional Features:
Garden, Lighting, Rain Gutters, Sidewalk, Sliding Doors
Additional Features 2:
Buyer to Verify.
Map
  • Address
    13920 BRIARDALE LN
Contact a Professional
Why Choose Us?
  • Communication and Transparency
  • Skilled Negotiation
  • Robust Professional Network
  • After-Sale Support
Featured Properties

Related Properties

avt
Daniel Dourado
$ 364,900
avt
Daniel Dourado
$ 435,000
avt
Daniel Dourado
$ 397,000
avt
Daniel Dourado
$ 649,900
avt
Daniel Dourado
$ 640,000
avt
Daniel Dourado
$ 359,900
avt
Daniel Dourado
$ 499,900
avt
Daniel Dourado
$ 275,000
avt
Daniel Dourado
$ 1,075,000
avt
Daniel Dourado
$ 234,900
avt
Daniel Dourado
$ 373,900