Active

$369,000

Features:
  • 3 Bedrooms
  • 2 Bathrooms
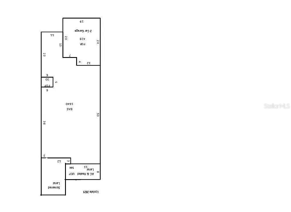
  • 1640 sq ft
Overview
  • ID: MFRO6202376
  • Bedrooms: 3
  • Bathrooms: 2
  • Size: 1640 sq ft
Property Details
Remarks
Waterfront and membership owned golf course view. 3-bedroom 2 bath open floorplan in 55+ community: secluded, highly desirable Azalea Trace enclave! The home has plantation shutters. Few homes in the area offer such a unique and private setting. The floor plan is Plumeria with the extended great room option. Screened lanai PLUS an enclosed lanai that has PGT high impact window panels and Coolaroo shades for maximum privacy, security, temperature control and separate AC/Heat. Tile and wood laminate flooring in living area. Two car garage has power roll up screen; Garage has steel tool cabinets. Front entry area is enclosed and screened. Bedrooms are spacious, and there is storage galore. Master bathroom is handicap accessible, with a walk-in shower. All appliances included…even the washer and dryer. New Roof 2022, HOA only $125/month (includes lawn, common areas and pond maintenance) No Storm issues Home s set on a high certified elevation and totally high and dry.
Financial Considerations
Price:
$369,000
HOA Fee:
125
Tax Amount:
$1724.7
Price per SqFt:
$225
Tax Legal Description:
SUN CITY CENTER UNIT 185 LOT 8
Exterior Features
Lot Size:
6500
Lot Features:
N/A
Waterfront:
Yes
Parking Spaces:
N/A
Parking:
N/A
Roof:
Shingle
Pool:
No
Pool Features:
N/A
Interior Features
Bedrooms:
3
Bathrooms:
2
Heating:
Central, Electric, Other
Cooling:
Central Air
Appliances:
Dishwasher, Disposal, Dryer, Microwave, Range, Refrigerator, Washer
Furnished:
No
Floor:
Ceramic Tile, Tile, Wood
Levels:
One
Additional Features
Property Sub Type:
Single Family Residence
Style:
N/A
Year Built:
2004
Construction Type:
Cement Siding, Concrete, Stucco
Garage Spaces:
Yes
Covered Spaces:
N/A
Direction Faces:
West
Pets Allowed:
No
Special Condition:
None
Additional Features:
Irrigation System, Lighting, Other, Sidewalk, Sprinkler Metered, Tennis Court(s)
Additional Features 2:
verify
Map
  • Address
    1937 STERLING GLEN CT
Contact a Professional
Why Choose Us?
  • Communication and Transparency
  • Skilled Negotiation
  • Robust Professional Network
  • After-Sale Support
Featured Properties

Related Properties

avt
Daniel Dourado
$ 360,000
avt
Daniel Dourado
$ 279,900
avt
Daniel Dourado
$ 420,000
avt
Daniel Dourado
$ 299,900
avt
Daniel Dourado
$ 1,095,000
avt
Daniel Dourado
$ 599,990
avt
Daniel Dourado
$ 465,990
avt
Daniel Dourado
$ 1,550,000
avt
Daniel Dourado
$ 449,950