Active

$295,070

Features:
  • 5 Bedrooms
  • 2 Bathrooms
  • 1708 sq ft
Overview
  • ID: MFROM714173
  • Bedrooms: 5
  • Bathrooms: 2
  • Size: 1708 sq ft
Property Details
Remarks
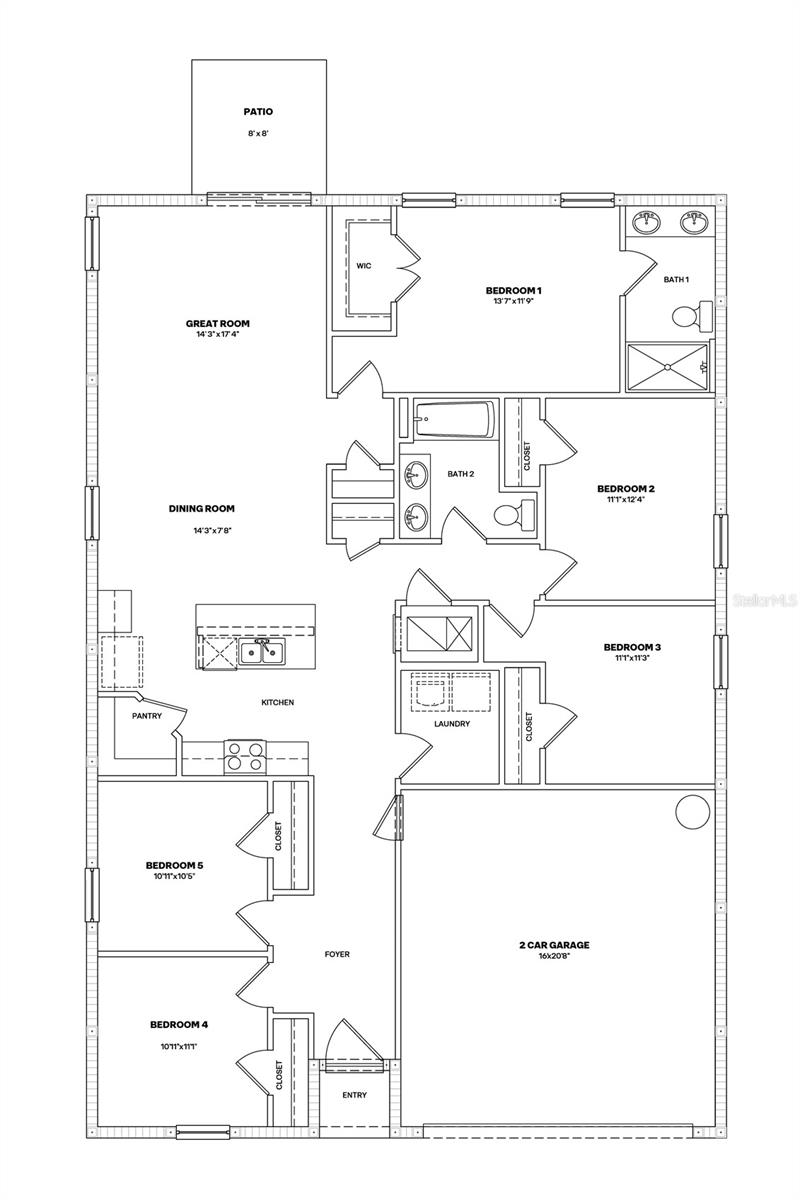
Under Construction. This single-story all concrete block constructed 5 bedroom, 2 bathroom home is a thoughtfully-designed living space. With an open concept layout, this plan offers the perfect balance of functionality, comfort, and modern style. The kitchen is centrally located with quartz countertops, center island, walk-in pantry and stainless steel appliances including a built-in dishwasher, range and microwave. The primary suite is at the rear of the home for added privacy and includes a spacious closet and ensuite bathroom. Four additional bedrooms share the second bathroom with a dedicated laundry room nearby. Pictures, photographs, colors, features, and sizes are for illustration purposes only and will vary from the homes as built. Home and community information including pricing, included features, terms, availability and amenities are subjext to change and prior sale at any time without notice or obligation. CRC057592.
Financial Considerations
Price:
$295,070
HOA Fee:
45
Tax Amount:
$0
Price per SqFt:
$172.76
Tax Legal Description:
SEC 23 TWP 17 RGE 23 PLAT BOOK 016 PAGE 074 SUNSET HILLS PHASE II LOT 81
Exterior Features
Lot Size:
6600
Lot Features:
N/A
Waterfront:
No
Parking Spaces:
N/A
Parking:
N/A
Roof:
Shingle
Pool:
No
Pool Features:
N/A
Interior Features
Bedrooms:
5
Bathrooms:
2
Heating:
Electric, Heat Pump
Cooling:
Central Air
Appliances:
Dishwasher, Microwave, Range
Furnished:
Yes
Floor:
Carpet, Luxury Vinyl
Levels:
One
Additional Features
Property Sub Type:
Single Family Residence
Style:
N/A
Year Built:
2025
Construction Type:
Block
Garage Spaces:
Yes
Covered Spaces:
N/A
Direction Faces:
Northwest
Pets Allowed:
Yes
Special Condition:
None
Additional Features:
N/A
Additional Features 2:
Per HOA Guidelines
Map
  • Address
    15916 SE 101ST CIR
Contact a Professional
Why Choose Us?
  • Communication and Transparency
  • Skilled Negotiation
  • Robust Professional Network
  • After-Sale Support
Featured Properties

Related Properties

avt
Daniel Dourado
$ 699,900
avt
Daniel Dourado
$ 380,000
avt
Daniel Dourado
$ 339,000
avt
Daniel Dourado
$ 320,490
avt
Daniel Dourado
$ 425,000
avt
Daniel Dourado
$ 309,000
avt
Daniel Dourado
$ 368,990
avt
Daniel Dourado
$ 312,490