Active

$268,070

Features:
  • 4 Bedrooms
  • 2 Bathrooms
  • 1560 sq ft
Overview
  • ID: MFROM723271
  • Bedrooms: 4
  • Bathrooms: 2
  • Size: 1560 sq ft
Property Details
Remarks
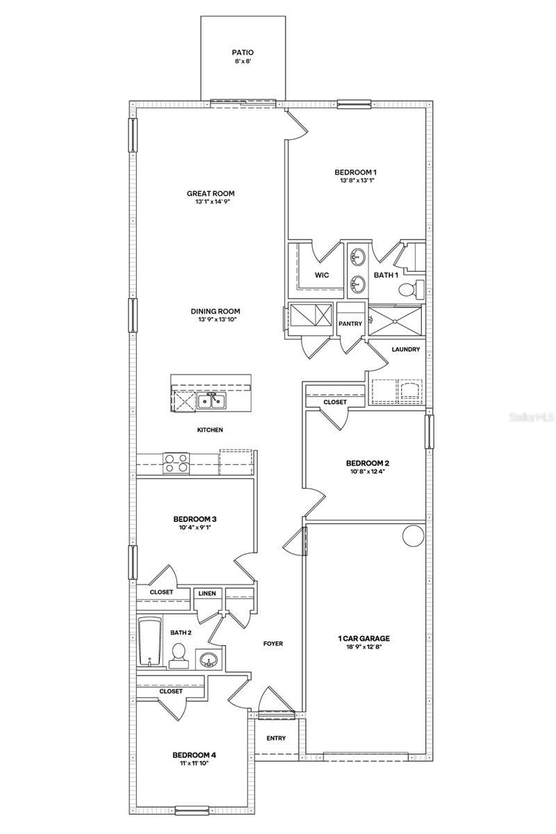
Under Construction. The Cameron floorplan is a beautifully designed single-story home that blends modern style with everyday functionality. This home offers comfort, efficiency, and versatility for today's lifestyles, featuring 4 bedrooms, 2 bathrooms, and 1,560 square feet of living space. As you step inside, you're welcomed by 3 bedrooms sharing a full bathroom with quartz countertops. The kitchen flows into the dining and living areas overlooking the outdoor patio. This open-concept living space is deal for both family time and entertaining. The kitchen showcases sleek quartz countertops, a large center island, and stainless-steel appliances. The Owner's Suite is placed in the rear of the home for added privacy and features a walk-in closet and ensuite bathroom with a double vanity sink and quartz countertops. With its modern finishes, thoughtful layout, and stylish touches throughout, the Cameron is the perfect place to call home. The Cameron is complete with a state-of-the-art smart home system that keeps you connected to your home at all times. Pictures, photographs, colors, features, and sizes are for illustration purposes only and will vary from the homes as built. Home and community information including pricing, included features, terms, availability and amenities are subjext to change and prior sale at any time without notice or obligation. CRC057592.
Financial Considerations
Price:
$268,070
HOA Fee:
100
Tax Amount:
$0
Price per SqFt:
$171.84
Tax Legal Description:
Somerset Bay Phase 1A lot 399
Exterior Features
Lot Size:
4356
Lot Features:
N/A
Waterfront:
No
Parking Spaces:
N/A
Parking:
N/A
Roof:
Shingle
Pool:
No
Pool Features:
N/A
Interior Features
Bedrooms:
4
Bathrooms:
2
Heating:
Electric, Heat Pump
Cooling:
Central Air
Appliances:
Dishwasher, Microwave, Range
Furnished:
Yes
Floor:
Carpet, Luxury Vinyl
Levels:
One
Additional Features
Property Sub Type:
Single Family Residence
Style:
N/A
Year Built:
2026
Construction Type:
Block
Garage Spaces:
Yes
Covered Spaces:
N/A
Direction Faces:
Northwest
Pets Allowed:
Yes
Special Condition:
None
Additional Features:
N/A
Additional Features 2:
Per HOA Guidelines
Map
  • Address
    4026 KONA CIR
Contact a Professional
Why Choose Us?
  • Communication and Transparency
  • Skilled Negotiation
  • Robust Professional Network
  • After-Sale Support
Featured Properties

Related Properties

avt
Daniel Dourado
$ 325,000
avt
Daniel Dourado
$ 349,265
avt
Daniel Dourado
$ 429,000
avt
Daniel Dourado
$ 629,900
avt
Daniel Dourado
$ 365,000
avt
Daniel Dourado
$ 702,156
avt
Daniel Dourado
$ 325,000
avt
Daniel Dourado
$ 360,000
avt
Daniel Dourado
$ 385,000