Active

$1,000,000

Features:
  • 4 Bedrooms
  • 4 Bathrooms
  • 3506 sq ft
Overview
  • ID: MFRT3523735
  • Bedrooms: 4
  • Bathrooms: 4
  • Size: 3506 sq ft
Property Details
Remarks
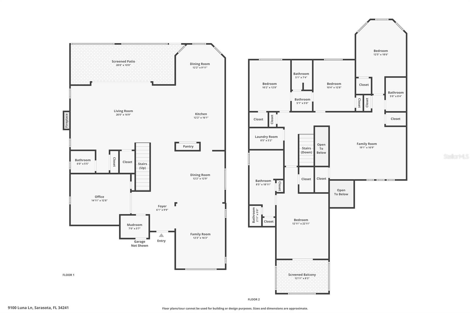
Luxurious 4-bedroom, 3.5-bathroom 2-story residence boasting a screened-in balcony attached to the lavish master suite on the upper level. The ground floor encompasses an elegant family room with a stunning tray ceiling, a formal dining room, an office/den, a formal living room with a cozy fireplace, and expansive sliding pocket doors that open up to a vast screened-in patio equipped with a built-in grill and sink, offering picturesque views of the natural wetlands in the backyard. The modern kitchen features a central island, breakfast bar, top-of-the-line stainless steel appliances, oversized dark wood cabinets with exquisite stone countertops and a tiled backsplash, as well as a separate dining area. Upstairs, an additional 19x16 family room with a tray ceiling, three spacious bedrooms, a laundry room, and a grand master suite complete with a walk-in closet, a luxurious soaking tub, an oversized separate shower, a dual sink vanity, and ample storage options await. Experience the epitome of luxury living. Located in Cassia at Skye Ranch; a premier community that offers opportunities to explore, experience, and enjoy life. The natural beauty of the land has been preserved, with grand old oaks, lush palms, forested wetlands, pristine lakes, and native wildlife. Miles of planned trails connect residents to nature, parks, and exceptional amenities within the Skye Ranch community. Turner Park at Skye Ranch features two tennis courts for open play, along with instructional tennis clinics offered by Court Sports Professional Brad Chase. Additionally, Skye Ranch offers options for members to enjoy Pickleball on multiple courts throughout the community, as well as Bocce Ball, a casual sport of Italian origin, for residents to enjoy. A brand new K-8 School was recently built within the community and there's also a brand new clubhouse and recreation center with two pools, hot tub and so much more just around the block form the house! Don't wait another minute... Call to schedule your showing now and make 9100 Luna Ln yours!!
Financial Considerations
Price:
$1,000,000
HOA Fee:
624.07
Tax Amount:
$10443
Price per SqFt:
$285.23
Tax Legal Description:
LOT 1061, LT RANCH NEIGHBORHOOD ONE, PB 53 PG 175-224
Exterior Features
Lot Size:
8293
Lot Features:
N/A
Waterfront:
No
Parking Spaces:
N/A
Parking:
N/A
Roof:
Shingle
Pool:
No
Pool Features:
N/A
Interior Features
Bedrooms:
4
Bathrooms:
4
Heating:
Central, Electric
Cooling:
Central Air
Appliances:
Built-In Oven, Cooktop, Dishwasher, Dryer, Microwave, Refrigerator, Washer
Furnished:
No
Floor:
Carpet, Luxury Vinyl
Levels:
Two
Additional Features
Property Sub Type:
Single Family Residence
Style:
N/A
Year Built:
2021
Construction Type:
Stucco
Garage Spaces:
Yes
Covered Spaces:
N/A
Direction Faces:
Northwest
Pets Allowed:
Yes
Special Condition:
None
Additional Features:
Sliding Doors
Additional Features 2:
Contact HOA for Rule, Regs, Restrictions, Application Process (if any) and any other questions as needed.
Map
  • Address
    9100 LUNA LN
Contact a Professional
Why Choose Us?
  • Communication and Transparency
  • Skilled Negotiation
  • Robust Professional Network
  • After-Sale Support
Featured Properties

Related Properties

avt
Daniel Dourado
$ 449,900
avt
Daniel Dourado
$ 285,000
avt
Daniel Dourado
$ 499,000
avt
Daniel Dourado
$ 505,000
avt
Daniel Dourado
$ 375,000
avt
Daniel Dourado
$ 355,550
avt
Daniel Dourado
$ 349,900
avt
Daniel Dourado
$ 399,990