Active

$1,229,900

Features:
  • 4 Bedrooms
  • 2 Bathrooms
  • 1915 sq ft
Overview
  • ID: MFRA4638205
  • Bedrooms: 4
  • Bathrooms: 2
  • Size: 1915 sq ft
Property Details
Remarks
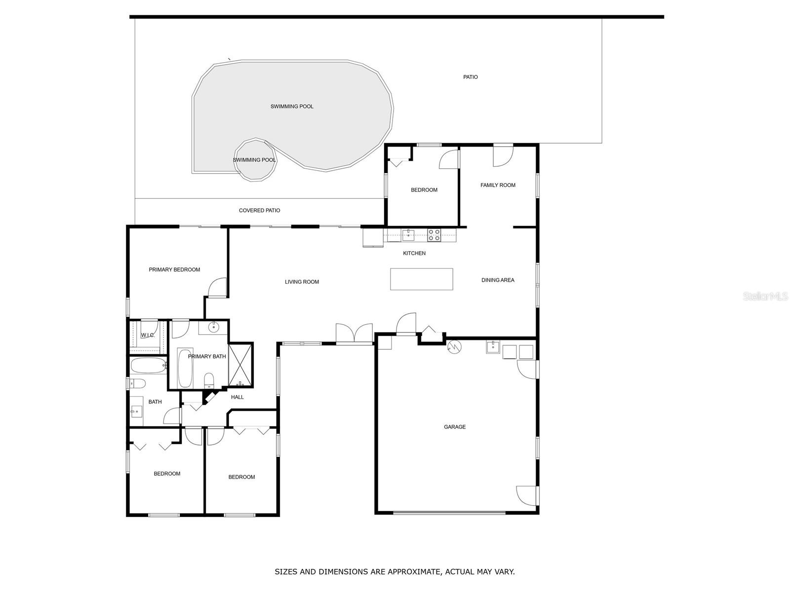
SELLER CREDIT OF $20K TOWARDS CLOSING COSTS. Under the canopy of grand oaks and banyan trees, this move-in-ready FURNISHED Siesta Key POOL home offers the perfect blend of luxury and coastal charm. Located minutes from the world-famous beach and village, this retreat has been redesigned for island living with almost every inch of the home renovated to perfection! A freshly painted exterior, paver driveway, and xeriscape landscaping create a warm welcome. Inside, an open floor plan creates effortless indoor-outdoor living with tile flooring, bright living area, and pocket sliding glass doors seamlessly connecting to your private backyard oasis. The expansive paradise features a sparkling pool and hot tub with new pump/heater, surrounded by new privacy fencing, and an extended paver patio. The heart of the home is the renovated chef's kitchen, boasting duo-toned soft-close cabinetry, quartz countertops, and tile backsplash. The oversized kitchen island and adjacent dining area set the stage for lively gatherings, while the cozy den opens up to the patio for effortless pool-side alfresco dining. The primary suite features direct pool access and a newly updated bathroom with soaking tub, walk-in shower, and modern finishes. Thoughtfully designed for privacy, the split floor plan includes a poolside guest room along with two additional bedrooms tucked in a private wing with an updated bathroom. Additional updates include a NEW AC system/ductwork and NEW Hot Water Heater ensuring year-round comfort. The oversized two car garage offers plenty of parking and extra space for a golf cart and beach gear. Enjoy the tranquility of the tree lined streets while still having easy access on and off the island. This home is being enjoyed by seasonal renters, but now it’s your turn to enjoy island life! Whether you're looking for a lucrative FURNISHED short-term rental, a seasonal retreat, or a forever home, this renovated Siesta Key gem offers the best of island living!
Financial Considerations
Price:
$1,229,900
HOA Fee:
500
Tax Amount:
$10549.2
Price per SqFt:
$642.25
Tax Legal Description:
LOT 4 SIESTAS BAYSIDE WATERSIDE EAST
Exterior Features
Lot Size:
11473
Lot Features:
Cul-De-Sac, Near Marina, Oversized Lot
Waterfront:
No
Parking Spaces:
N/A
Parking:
Driveway, Garage Door Opener
Roof:
Tile
Pool:
Yes
Pool Features:
Heated, In Ground
Interior Features
Bedrooms:
4
Bathrooms:
2
Heating:
Central, Electric
Cooling:
Central Air
Appliances:
Dishwasher, Disposal, Dryer, Electric Water Heater, Freezer, Microwave, Range, Refrigerator, Washer
Furnished:
Yes
Floor:
Ceramic Tile, Tile
Levels:
One
Additional Features
Property Sub Type:
Single Family Residence
Style:
N/A
Year Built:
1971
Construction Type:
Block, Stucco
Garage Spaces:
Yes
Covered Spaces:
N/A
Direction Faces:
Southwest
Pets Allowed:
Yes
Special Condition:
None
Additional Features:
Lighting, Private Mailbox, Rain Gutters, Sliding Doors
Additional Features 2:
Lease restrictions are per Sarasota County. Visit their site for more information.
Map
  • Address
    567 VENICE LN
Contact a Professional
Why Choose Us?
  • Communication and Transparency
  • Skilled Negotiation
  • Robust Professional Network
  • After-Sale Support
Featured Properties

Related Properties

avt
Daniel Dourado
$ 415,000
avt
Daniel Dourado
$ 367,000
avt
Daniel Dourado
$ 475,000
avt
Daniel Dourado
$ 299,900
avt
Daniel Dourado
$ 309,000
avt
Daniel Dourado
$ 219,000
avt
Daniel Dourado
$ 550,000
avt
Daniel Dourado
$ 415,865
avt
Daniel Dourado
$ 387,158
avt
Daniel Dourado
$ 416,985