Active

$949,000

Features:
  • 3 Bedrooms
  • 2 Bathrooms
  • 2112 sq ft
Overview
  • ID: MFRA4626603
  • Bedrooms: 3
  • Bathrooms: 2
  • Size: 2112 sq ft
Property Details
Remarks
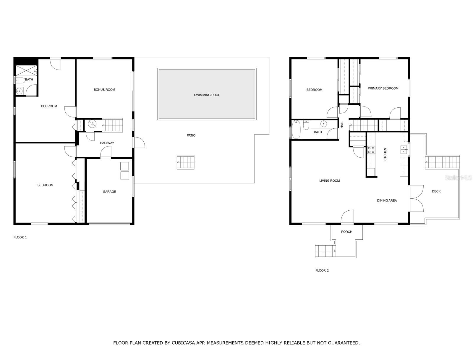
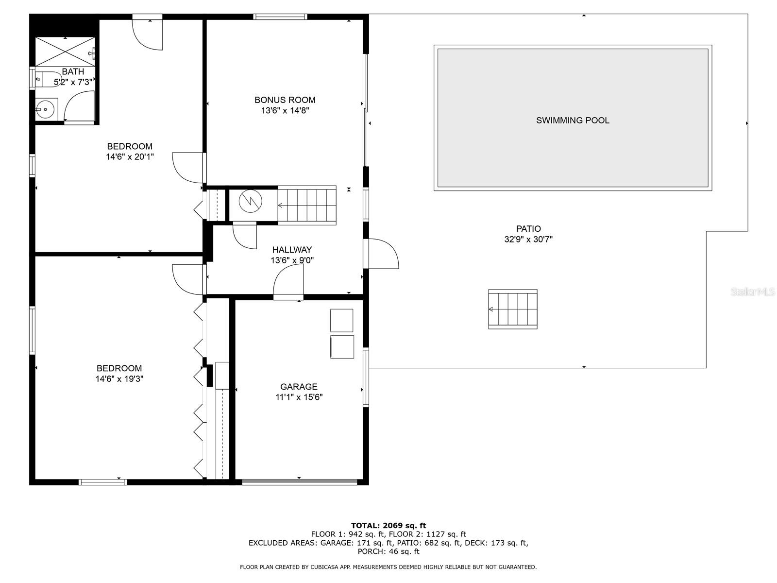
Adorable home less than a mile to Beautiful Siesta Key Beach! Current owner has been in the home for 50 years and loves the location and the home. Ground floor remodeled with laundry, huge bedroom, living area, full bathroom and also an efficiency. Second floor has full kitchen 2 beds 1 bath and a large open plan living area. Roof 2021, A/C 2024, Upstairs hurricane windows 2024, Water Heater 2018, Garage door 2017, Must see to appreciate. NO rear neighbors!!! Easy walk to Glebe Park. Neighborhood has a pond with a fountain in the middle of the neighborhood circle with sitting areas around it. Little community with 37 homesites all on a county designated canopy road. New homes are preparing to be built in this little hidden gem of a community. Has never flooded prior. Damage was minor. All new flooring and drywall, paint, doors and trim and bathroom remodel downstairs. Floorplan attached in photos
Financial Considerations
Price:
$949,000
HOA Fee:
275
Tax Amount:
$3180
Price per SqFt:
$449.34
Tax Legal Description:
LOT 24 TWIN OAK POND
Exterior Features
Lot Size:
7667
Lot Features:
N/A
Waterfront:
No
Parking Spaces:
N/A
Parking:
N/A
Roof:
Shingle
Pool:
Yes
Pool Features:
Gunite, In Ground
Interior Features
Bedrooms:
3
Bathrooms:
2
Heating:
Central
Cooling:
Central Air
Appliances:
Cooktop, Dishwasher, Disposal, Dryer, Microwave, Range, Refrigerator, Washer
Furnished:
No
Floor:
Carpet, Luxury Vinyl, Tile
Levels:
Multi/Split
Additional Features
Property Sub Type:
Single Family Residence
Style:
N/A
Year Built:
1975
Construction Type:
Block, Stucco, Wood Siding
Garage Spaces:
Yes
Covered Spaces:
N/A
Direction Faces:
North
Pets Allowed:
Yes
Special Condition:
None
Additional Features:
Courtyard, Sliding Doors
Additional Features 2:
per Sarasota county guidelines for single family
Map
  • Address
    5214 WINDING WAY
Contact a Professional
Why Choose Us?
  • Communication and Transparency
  • Skilled Negotiation
  • Robust Professional Network
  • After-Sale Support
Featured Properties

Related Properties

avt
Daniel Dourado
$ 375,000
avt
Daniel Dourado
$ 679,990
avt
Daniel Dourado
$ 399,000
avt
Daniel Dourado
$ 684,990
avt
Daniel Dourado
$ 339,000
avt
Daniel Dourado
$ 750,000
avt
Daniel Dourado
$ 520,000
avt
Daniel Dourado
$ 525,000