Active

$349,000

Features:
  • 3 Bedrooms
  • 1 Bathrooms
  • 1426 sq ft
Overview
  • ID: MFRO6322549
  • Bedrooms: 3
  • Bathrooms: 1
  • Size: 1426 sq ft
Property Details
Remarks
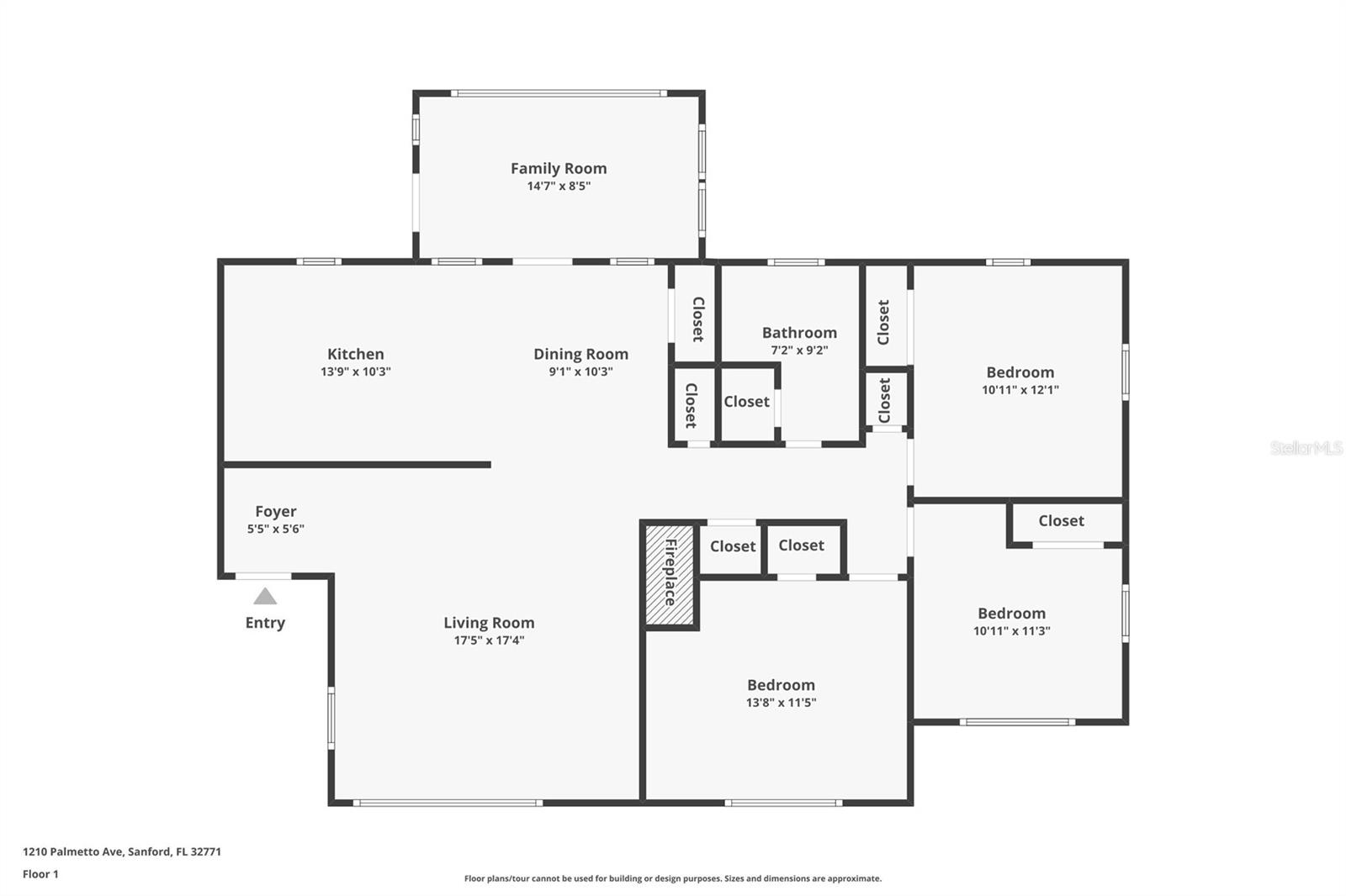
Charming Mid-Century Modern Gem in the Heart of Historic Sanford! This Wonderfully Preserved One-Story Block Home Sits on a Double Lot Across from a City Park in Sanford's Coveted Historic District. Classic Terrazzo Floors Add Timeless Elegance and Shine Throughout. The Inviting Front Porch Leads to an Entrance Foyer Opening to an Airy Open Concept Living Space. The Living Room Is Light and Bright with a Large Picture Window and Boasts a Wood Burning Fireplace - For Those Cooler Days. The Adjacent Dining Room with Period-Style Pendant Light Opens to the Florida Room Expanding Entertaining Potential when Hosting Friends and Family. Updated Kitchen with Granite Counter Tops and Period-Style Formica Adding a Nod to the Era. The Primary Bedroom has Access to a Private Patio in Back. Two Additional Nicely Sized Bedrooms Provide Flexibility for Home Office, Family or Guests. Full Hall Bath Showcases the Original Tile. The One Car Carport Provides Shade from the Summer Sun with a Convenient Laundry Area and Additional Storage. Custom Concrete Patio in Back Expands Entertaining Opportunities. Fully Fenced Large Backyard is Perfect for Pets, Gardening (Irrigation in Backyard), and Play Area. NEW ROOF (Dec 2025) and NEW WATER HEATER (Nov 2025). Close Proximity to Downtown Sanford Entertainment District - Shops, Restaurants and Breweries are Just a Short Distance Away. Bike and Golf Cart Friendly Location. This Home is a Mid-Century Lovers Dream!
Financial Considerations
Price:
$349,000
HOA Fee:
N/A
Tax Amount:
$4546.6
Price per SqFt:
$244.74
Tax Legal Description:
LOTS 4 + 5 BLK 14 TR 2 TOWN OF SANFORD PB 1 PG 60
Exterior Features
Lot Size:
13413
Lot Features:
Corner Lot, Historic District, City Limits, Oversized Lot
Waterfront:
No
Parking Spaces:
N/A
Parking:
Covered, Driveway, Off Street
Roof:
Shingle
Pool:
No
Pool Features:
N/A
Interior Features
Bedrooms:
3
Bathrooms:
1
Heating:
Central, Electric
Cooling:
Central Air
Appliances:
Dishwasher, Dryer, Electric Water Heater, Microwave, Range, Refrigerator, Washer
Furnished:
No
Floor:
Terrazzo
Levels:
One
Additional Features
Property Sub Type:
Single Family Residence
Style:
N/A
Year Built:
1958
Construction Type:
Block
Garage Spaces:
No
Covered Spaces:
N/A
Direction Faces:
Southeast
Pets Allowed:
No
Special Condition:
None
Additional Features:
Sidewalk
Additional Features 2:
Buyer and Buyer's Agent to Confirm with City of Sanford/Seminole County regarding Leasing Restrictions.
Map
  • Address
    1210 S PALMETTO AVE
Contact a Professional
Why Choose Us?
  • Communication and Transparency
  • Skilled Negotiation
  • Robust Professional Network
  • After-Sale Support
Featured Properties

Related Properties

avt
Daniel Dourado
$ 899,999
avt
Daniel Dourado
$ 309,600
avt
Daniel Dourado
$ 905,000
avt
Daniel Dourado
$ 3,799,000
avt
Daniel Dourado
$ 309,000
avt
Daniel Dourado
$ 320,000
avt
Daniel Dourado
$ 2,200,000
avt
Daniel Dourado
$ 450,000
avt
Daniel Dourado
$ 325,000