Active

$4,495,000

Features:
  • 6 Bedrooms
  • 6 Bathrooms
  • 5753 sq ft
Overview
  • ID: MFRPR9115661
  • Bedrooms: 6
  • Bathrooms: 6
  • Size: 5753 sq ft
Property Details
Remarks
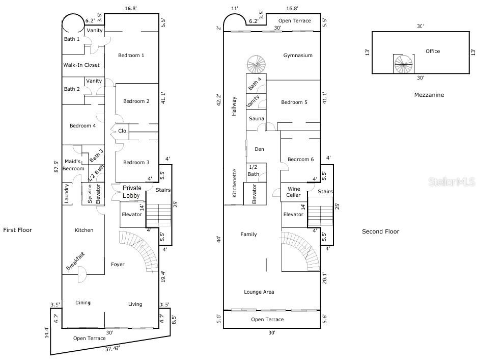
FULL-FLOOR PENTHOUSE · ASHFORD LAGOON PLAZA · CONDADO A truly rare offering in the heart of Condado. This extraordinary penthouse occupies the entire 17th floor (PH-17) of Ashford Lagoon Plaza, delivering an unmatched combination of scale, privacy, and panoramic coastal views rarely found in Puerto Rico’s luxury market. Spanning approximately 6,600 square feet across two levels plus a mezzanine (5,729 sq ft GLA), the residence is designed to feel more like a private sky villa than a traditional condominium. The layout includes 6 bedrooms, 4 full bathrooms, and 2 half bathrooms, offering exceptional flexibility for both family living and entertaining. Three expansive terraces provide spectacular views in every direction. To the north, enjoy permanently unobstructed vistas of the Atlantic Ocean. To the south, sweeping views stretch across Condado Lagoon and the vibrant city skyline, creating a stunning contrast between ocean and lagoon. Privacy begins the moment you arrive. Two private key-access elevators open directly into the residence through an exclusive foyer, ensuring complete discretion and a true full-floor living experience. Inside, the penthouse offers generous spaces ideal for luxury living, including areas that can accommodate a private gym, a spacious family lounge overlooking the lagoon and city, and a dedicated wine cellar. Ashford Lagoon Plaza offers residents direct lagoon access via a private wooden dock, as well as a lobby, gym, service areas, and a full-capacity backup generator for the entire building, an increasingly valuable feature in Condado. One of the most remarkable advantages of this residence is the inclusion of 8 covered parking spaces, configured as four back-to-back pairs. In a market where most luxury penthouses with 4 to 5 spaces, this level of parking capacity is exceptionally rare and highly valuable. Compared with other Condado penthouses typically ranging between 2,800 and 4,000 square feet, this residence offers significantly larger living space and double the parking capacity, making it a truly unique opportunity in one of Puerto Rico’s most desirable coastal neighborhoods. This is more than a penthouse it is a full-floor private residence above the Condado skyline, combining space, views, and exclusivity in a way that is increasingly impossible to replicate.
Financial Considerations
Price:
$4,495,000
HOA Fee:
2900
Tax Amount:
$N/A
Price per SqFt:
$781.33
Tax Legal Description:
N/A
Exterior Features
Lot Size:
6600
Lot Features:
N/A
Waterfront:
Yes
Parking Spaces:
N/A
Parking:
N/A
Roof:
Concrete
Pool:
No
Pool Features:
N/A
Interior Features
Bedrooms:
6
Bathrooms:
6
Heating:
None
Cooling:
Mini-Split Unit(s)
Appliances:
Built-In Oven, Cooktop, Electric Water Heater, Microwave, Range, Refrigerator, Washer
Furnished:
No
Floor:
Marble
Levels:
Two
Additional Features
Property Sub Type:
Condominium
Style:
N/A
Year Built:
1988
Construction Type:
Concrete
Garage Spaces:
Yes
Covered Spaces:
N/A
Direction Faces:
North
Pets Allowed:
Yes
Special Condition:
None
Additional Features:
Balcony, Private Mailbox
Additional Features 2:
No Short Term Rentals
Map
  • Address
    Ave Condado 888 AVE ASFHORD #17
Contact a Professional
Why Choose Us?
  • Communication and Transparency
  • Skilled Negotiation
  • Robust Professional Network
  • After-Sale Support
Featured Properties

Related Properties

img
  • Featured
  • Active
Condominium

3580 S OCEAN SHORE BLVD #102

  • 3
  • 2
  • 143 m²
avt
Daniel Dourado
$ 369,000
avt
Daniel Dourado
$ 259,900
avt
Daniel Dourado
$ 299,000
avt
Daniel Dourado
$ 359,000
img
  • Featured
  • Active
Condominium

1585 TARPON CENTER DR #29

  • 2
  • 2
  • 97 m²
avt
Daniel Dourado
$ 549,000
avt
Daniel Dourado
$ 267,000
img
  • Featured
  • Active
Condominium

1307 PELICAN CREEK XING #1307

  • 2
  • 2
  • 144 m²
avt
Daniel Dourado
$ 599,900
img
  • Featured
  • Active
Condominium

2720 CLUB CORTILE CIR #A

  • 3
  • 2
  • 111 m²
avt
Daniel Dourado
$ 249,000
img
  • Featured
  • Active
Condominium

3130 EAGLES LANDING CIR W

  • 3
  • 3
  • 169 m²
avt
Daniel Dourado
$ 469,000
avt
Daniel Dourado
$ 389,900
avt
Daniel Dourado
$ 225,000
img
  • Featured
  • Active
Condominium

5000 CULBREATH KEY WAY #4303

  • 2
  • 2
  • 100 m²
avt
Daniel Dourado
$ 319,900