Active

$270,000

Features:
  • 3 Bedrooms
  • 2 Bathrooms
  • 1483 sq ft
Overview
  • ID: MFRC7519586
  • Bedrooms: 3
  • Bathrooms: 2
  • Size: 1483 sq ft
Property Details
Remarks
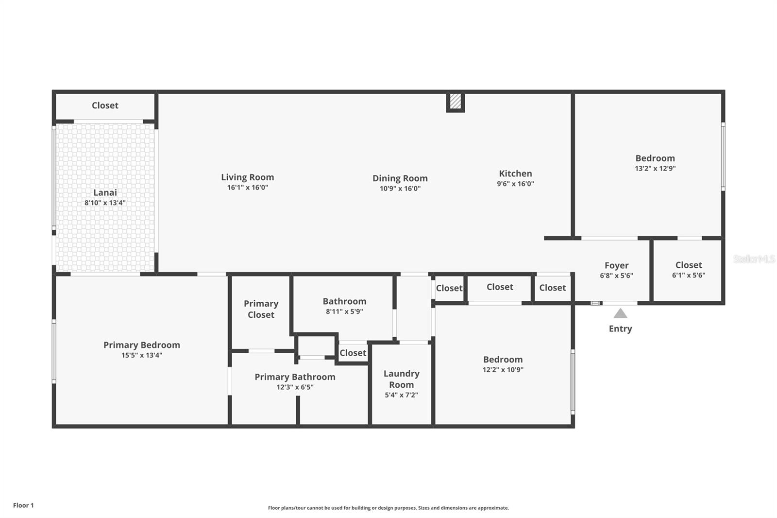
MOTIVATED SELLER!!! Welcome to the desirable community of Sea Isles in Punta Gorda Isles! This fully updated FIRST FLOOR 3 bedroom 2 bath condominium has been well maintained and is being offered TURNKEY! The open and inviting floor plan is filled with natural light, creating an ideal space for everyday living or entertaining guests. The well appointed kitchen features granite countertops, plenty of cabinets for storage, and opens up to the living room and beyond to your screened in lanai. The primary suite enjoys private access to the lanai from your spacious bedroom, a walk in closet, and leads to your remodeled bathroom with a walk in shower. The two guest bedrooms and guest bathroom allow plenty of space for your guests. All bedrooms have ceiling fans and luxury vinyl plank flooring. The screened in tiled lanai has a storage unit for convenience. Enjoy boating? This unit comes with assigned boat dock #513 featuring a 14,000-pound Golden boat lift, providing quick and easy boating access to Charlotte Harbor and the Gulf of Mexico—perfect for avid boaters! Enjoy the freedom to be on the water within minutes, whether for fishing, cruising, or sunset excursions. The space can accommodate a 30 foot boat! Water and electric are available at the dock. This condo comes with 1 covered carport! Other in unit upgrades include: Storm Smart roll down hurricane screens, hurricane rated windows, a new electric panel, and several appliances with transferrable warranties. This beautiful community offers a heated in ground swimming pool, completely renovated in 2023, featuring two geothermal heating/cooling pumps to keep the temperature comfortable year round! New metal roofs have been installed on all buildings and carports. All buildings, stairways, and walkways were painted in November of 2025. Located in a well-maintained waterfront community, this unit offers a peaceful setting while remaining close to downtown Punta Gorda, Fishermen’s Village, waterfront parks, dining, shopping, and golf. Whether you’re seeking a full-time residence, seasonal retreat, or investment opportunity, this property delivers the ultimate Southwest Florida lifestyle.
Financial Considerations
Price:
$270,000
HOA Fee:
N/A
Tax Amount:
$1837
Price per SqFt:
$182.06
Tax Legal Description:
SIC 005 0000 0037 SEA ISLES PH 5 UN 37 AKA UNIT 513 AS PER OR3364/1882 1017/1384 2338/587 3731/781 DC3731/768-GNM AFF3731/781 3731/781 4220/348
Exterior Features
Lot Size:
N/A
Lot Features:
N/A
Waterfront:
No
Parking Spaces:
N/A
Parking:
N/A
Roof:
Metal
Pool:
No
Pool Features:
In Ground
Interior Features
Bedrooms:
3
Bathrooms:
2
Heating:
Central, Electric
Cooling:
Central Air
Appliances:
Dishwasher, Dryer, Electric Water Heater, Microwave, Range, Refrigerator, Washer
Furnished:
Yes
Floor:
Tile, Vinyl
Levels:
One
Additional Features
Property Sub Type:
Condominium
Style:
N/A
Year Built:
1988
Construction Type:
Block, Stucco
Garage Spaces:
No
Covered Spaces:
N/A
Direction Faces:
South
Pets Allowed:
Yes
Special Condition:
None
Additional Features:
Hurricane Shutters, Lighting, Sliding Doors, Storage
Additional Features 2:
Tenants, no pets.
Map
  • Address
    240 LEWIS CIR #513
Contact a Professional
Why Choose Us?
  • Communication and Transparency
  • Skilled Negotiation
  • Robust Professional Network
  • After-Sale Support
Featured Properties

Related Properties

img
  • Featured
  • Active
Condominium

4751 CLOCK TOWER DR #305

  • 2
  • 2
  • 104 m²
avt
Daniel Dourado
$ 349,000
avt
Daniel Dourado
$ 225,000
avt
Daniel Dourado
$ 325,000
avt
Daniel Dourado
$ 925,000
img
  • Featured
  • Active
Condominium

4721 CLOCK TOWER DR #107

  • 2
  • 2
  • 110 m²
avt
Daniel Dourado
$ 274,999
img
  • Featured
  • Active
Condominium

700 S HARBOUR ISLAND BLVD #646

  • 3
  • 2
  • 121 m²
avt
Daniel Dourado
$ 589,000
avt
Daniel Dourado
$ 649,900
img
  • Featured
  • Active
Condominium

7669 PLANTATION CIR #7669

  • 3
  • 3
  • 119 m²
avt
Daniel Dourado
$ 279,000
img
  • Featured
  • Active
Condominium

6322 PALMA DEL MAR BLVD S #213

  • 2
  • 2
  • 82 m²
avt
Daniel Dourado
$ 425,000
img
  • Featured
  • Active
Condominium

4244 CENTRAL SARASOTA PKWY #726

  • 2
  • 2
  • 106 m²
avt
Daniel Dourado
$ 300,000
avt
Daniel Dourado
$ 695,000
avt
Daniel Dourado
$ 299,999