Active

$695,000

Features:
  • 4 Bedrooms
  • 4 Bathrooms
  • 2032 sq ft
Overview
  • ID: MFRC7504325
  • Bedrooms: 4
  • Bathrooms: 4
  • Size: 2032 sq ft
Property Details
Remarks
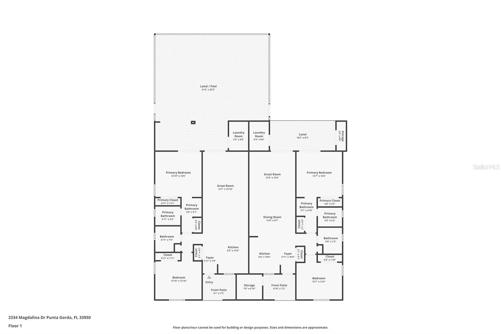
WATERFRONT DUPLEX IN PGI - LIVE IN ONE SIDE & USE OTHER SIDE AS IN-LAW SUITE OR INCOME-PRODUCING UNIT. Seize this rare investment opportunity in the heart of Punta Gorda Isles—a beautifully updated duplex with a private pool, dock, and quick access to Charlotte Harbor. Miles of sidewalks connect you to many of the area amenities including Fishermen's Village, Gilchrist Park, PGICA building, Punta Gorda Library & the Harborwalk pathways. Now is your chance to house hack or enjoy multi-generational living w/family having separate living spaces while enjoying the benefits of being right next door! This waterfront gem offers two well-appointed units, each with modern finishes, spacious living areas, and private outdoor spaces, making it a turnkey income-producing property for long- or short-term rentals. Both sides have been thoughtfully updated w/luxury vinyl plank flooring plus updated kitchens & baths, this spacious home offers an open-concept design, stylish modern finishes, and an abundance of natural light. Boaters will love the saltwater canal in the backyard where 80ft of seawall & a 30ft dock w/quick boating access to open water await. Dock has 6,500 lb boat lift w/water & electric hook-ups dockside. Unit A opens to a screened lanai & in-ground, heated pool. Unit B's lanai extends to a lovely open-air patio w/brick paver deck that is surrounded by tropical landscaping. The resort-like atmosphere of the outdoor living spaces will appeal to seasonal renters and vacationers alike. With high demand for both annual & seasonal rentals in Punta Gorda Isles, this property offers immediate income potential while appreciating in value. **UNIT A** was used as the primary residence of the current owners. Wood-look, luxury vinyl plank flooring was added throughout in 2018. The kitchen was also updated in 2018 w/stone counters, gorgeous stainless steel appliances, R/O water filtration, subway tile backsplash & under cabinet lighting. **UNIT B** has new luxury plank flooring in great room & bedrooms (2017).  TONS OF UPDATES & UPGRADES to both units including: NEW sliding glass doors, NEW electric Stormsmart hurricane shade across UNIT A lanai, NEW CAT-5 hurricane Kevlar screens (2023), some of the windows updated w/NEW impact-resistant windows, REPIPED both units (2021), NEW water softener both units (2019) & NEW impact-resistant front doors (2021). Flood insurance policy is assumable/transferable for $2,710/year. SO MUCH POTENTIAL HERE! Whether you're looking to owner occupy while expanding your rental portfolio or looking for a dual-income investment, this prime waterfront duplex is a must-see!
Financial Considerations
Price:
$695,000
HOA Fee:
N/A
Tax Amount:
$5808
Price per SqFt:
$342.03
Tax Legal Description:
PGI 011 0103 0007 PUNTA GORDA ISLES SEC 11 REP BLK 103 LT 7 646/192 702/1232 DC982-2026-VJC 988-2137 1147/7 AFF1300/268 1572/1317 1616/1345 2712/1603 CT3643/2091 3756/1636 L/E3825/177 3965/717
Exterior Features
Lot Size:
9600
Lot Features:
FloodZone, City Limits, Near Golf Course, Sidewalk, Paved
Waterfront:
Yes
Parking Spaces:
N/A
Parking:
Driveway
Roof:
Metal
Pool:
Yes
Pool Features:
Gunite, Heated, In Ground, Screen Enclosure
Interior Features
Bedrooms:
4
Bathrooms:
4
Heating:
Central, Electric
Cooling:
Central Air
Appliances:
Dishwasher, Dryer, Electric Water Heater, Kitchen Reverse Osmosis System, Microwave, Range, Refrigerator, Washer, Water Softener
Furnished:
No
Floor:
Luxury Vinyl, Tile
Levels:
One
Additional Features
Property Sub Type:
Single Family Residence
Style:
N/A
Year Built:
1982
Construction Type:
Block, Stucco
Garage Spaces:
No
Covered Spaces:
N/A
Direction Faces:
South
Pets Allowed:
No
Special Condition:
None
Additional Features:
Hurricane Shutters, Irrigation System, Sidewalk, Sliding Doors
Additional Features 2:
N/A
Map
  • Address
    2334 MAGDALINA DR
Contact a Professional
Why Choose Us?
  • Communication and Transparency
  • Skilled Negotiation
  • Robust Professional Network
  • After-Sale Support
Featured Properties

Related Properties

avt
Daniel Dourado
$ 449,900
avt
Daniel Dourado
$ 698,500
avt
Daniel Dourado
$ 319,995
avt
Daniel Dourado
$ 1,058,000
avt
Daniel Dourado
$ 499,900
avt
Daniel Dourado
$ 1,499,000
avt
Daniel Dourado
$ 1,150,000
avt
Daniel Dourado
$ 459,000