Active

$350,000

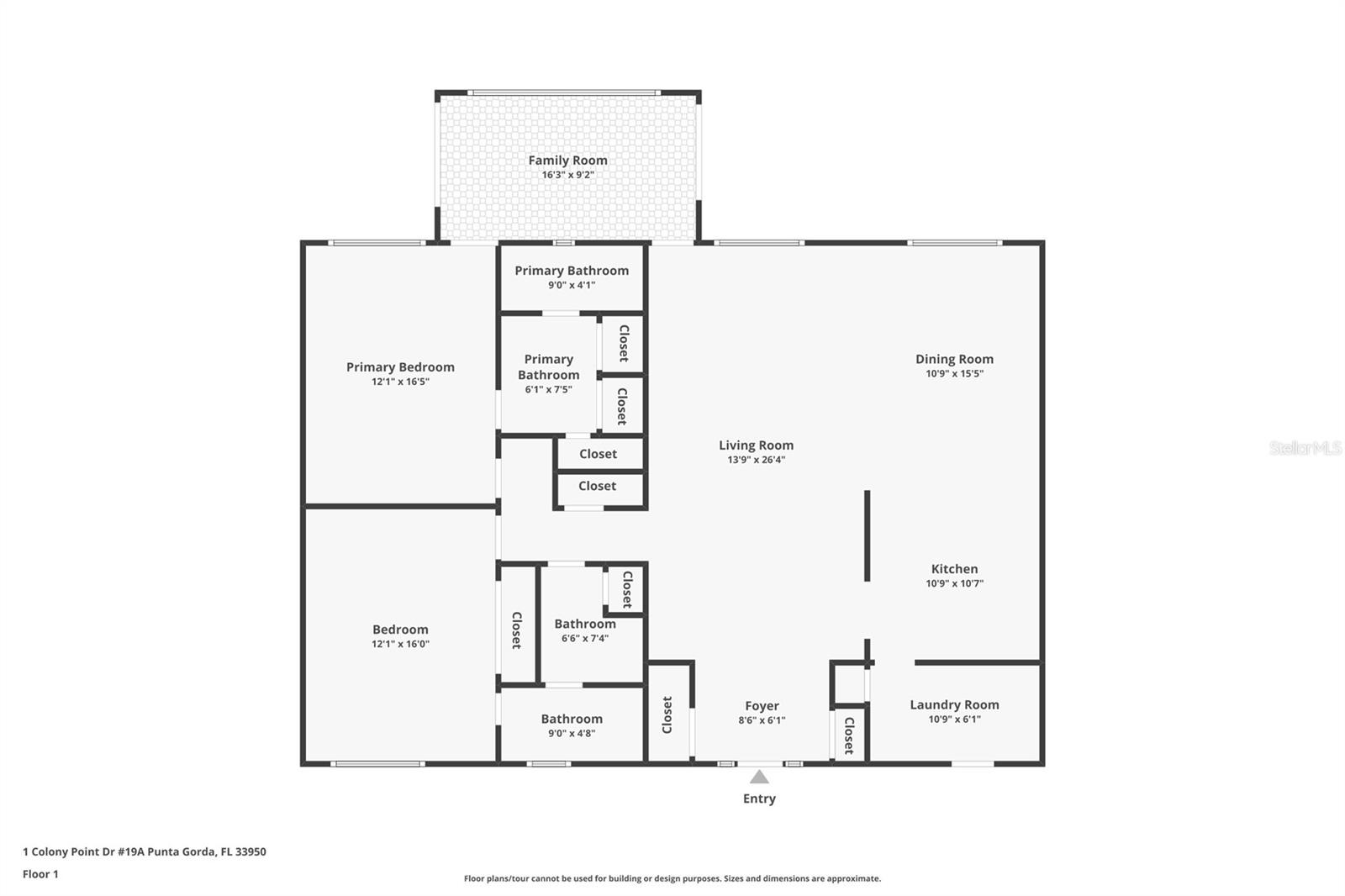
Features:
  • 2 Bedrooms
  • 2 Bathrooms
  • 1581 sq ft
Overview
  • ID: MFRC7503882
  • Bedrooms: 2
  • Bathrooms: 2
  • Size: 1581 sq ft
Property Details
Remarks
Truly a Million Dollar View!! Start enjoying resort style, maintenance free Florida living with this corner, first-floor sailboat waterfront 2 bedroom, 2 bath condo located in the waterfront community of Colony Point in Punta Gorda. This residence is a rare find with all the features of a single-family home. The boating enthusiast will appreciate the location right on Charlotte Harbor and boat slips available on a first come first served basis. Great location with direct access to the harbor and then on to the blue waters of the Gulf of Mexico. Bright and open floor plan with invisible sliders in the main living area providing an awesome view of the harbor. Open the sliders and bring the outdoors into your living area! Tastefully updated and appointed with ceramic tile flooring in the main living area, color accent walls, crown molding, decorator light and fan fixtures, and blinds throughout. The kitchen boasts warm wood cabinetry and breakfast bar that opens to the great room and dining area for easy entertaining. And the tiled Lanai! WOW. Spectacular panoramic view of the harbor. The owner’s suite has an updated en suite bath. Step out of the bedroom to the lanai with a sweeping view of waterway where you will spend hours watching the boats go by and enjoying the spectacular water views and wildlife and waterfowl that abound in this area. Other key features include new impact resistant windows, dedicated laundry room with front load washer & dryer, and assigned parking spot under the carport just a short walk from your condo. Colony Point offers beautifully maintained grounds, club house, and heated community pool for year-round enjoyment – all overlooking the marina and waterway. Landscaping improvements are in progress. Plus, water and sewer are included in your condo fee! Proximity to local beaches, dining, shopping, and golf courses makes this property ideal for the Florida lifestyle. Also, easy access to waterfront public parks with bike and walking trails and picnic areas, and boat ramps providing access to many other waterways including the Peace and Myakka Rivers and the Gulf of Mexico. Historic downtown Punta Gorda and popular Fishermen’s Village with quaint shops and cafes nearby. Perfect location – quiet waterfront community yet all conveniences and amenities nearby. And quick and easy access to Interstate 75 with Fort Myers and Naples to the south and Sarasota and Tampa to the North. So, don’t miss your opportunity to enjoy resort style living in your own little piece of waterfront paradise!**PLEASE ENJOY THE 3D INTERACTIVE VIRTUAL TOUR ASSOCIATED WITH THIS LISTING
Financial Considerations
Price:
$350,000
HOA Fee:
868
Tax Amount:
$6642.24
Price per SqFt:
$221.38
Tax Legal Description:
CPC 000 0000 0A19 COLONY POINT UN A-19 405/984 DC3674/1573-TLG PR12-1062-TLG LOA3674/516 3717/842 3745/792
Exterior Features
Lot Size:
1641
Lot Features:
FloodZone, Sidewalk, Street Brick, Paved
Waterfront:
Yes
Parking Spaces:
N/A
Parking:
Assigned, Covered
Roof:
Tile
Pool:
No
Pool Features:
Gunite, Heated, In Ground, Lighting
Interior Features
Bedrooms:
2
Bathrooms:
2
Heating:
Central, Electric
Cooling:
Central Air
Appliances:
Dishwasher, Dryer, Electric Water Heater, Microwave, Range, Refrigerator, Washer
Furnished:
No
Floor:
Carpet, Ceramic Tile
Levels:
One
Additional Features
Property Sub Type:
Condominium
Style:
N/A
Year Built:
1972
Construction Type:
Block, Stucco
Garage Spaces:
No
Covered Spaces:
N/A
Direction Faces:
Southeast
Pets Allowed:
No
Special Condition:
None
Additional Features:
Lighting
Additional Features 2:
See Condo Docs to verify
Map
  • Address
    1 COLONY POINT DR #A19
Contact a Professional
Why Choose Us?
  • Communication and Transparency
  • Skilled Negotiation
  • Robust Professional Network
  • After-Sale Support
Featured Properties

Related Properties

avt
Daniel Dourado
$ 559,000
avt
Daniel Dourado
$ 445,000
img
  • Featured
  • Active
Condominium

101 WHISPERING SANDS DR #301

  • 2
  • 2
  • 118 m²
avt
Daniel Dourado
$ 499,000
img
  • Featured
  • Active
Condominium

10360 CARROLLWOOD LN #212

  • 2
  • 2
  • 112 m²
avt
Daniel Dourado
$ 258,000
avt
Daniel Dourado
$ 205,000
avt
Daniel Dourado
$ 310,000
avt
Daniel Dourado
$ 319,000
avt
Daniel Dourado
$ 219,000
img
  • Featured
  • Active
Condominium

580 BOCA CIEGA POINT BLVD S #1

  • 2
  • 2
  • 130 m²
avt
Daniel Dourado
$ 549,000
avt
Daniel Dourado
$ 225,000
img
  • Featured
  • Active
Condominium

910 GOLDEN BEACH BLVD #202

  • 3
  • 2
  • 174 m²
avt
Daniel Dourado
$ 1,300,000
avt
Daniel Dourado
$ 249,900