Active

$600,000

Features:
  • 3 Bedrooms
  • 2 Bathrooms
  • 2225 sq ft
Overview
  • ID: MFRC7491428
  • Bedrooms: 3
  • Bathrooms: 2
  • Size: 2225 sq ft
Property Details
Remarks
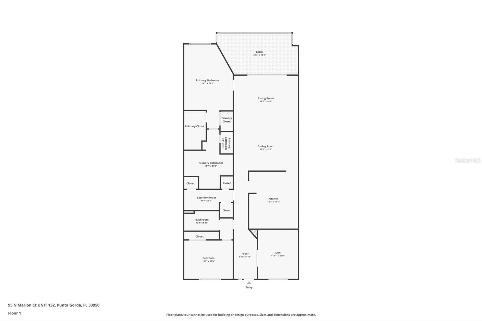
ENJOY THE COMPLIMENTARY VIDEO AND 3D TOUR! Beauty and elegance await you with this third floor 2,225 square foot 3-bedroom 2-bathroom flex office/den condo. Brand new stone coated steel roof just added. This condo at Solamar in Punta Gorda Isles will take your breath away with amazing sunrise and sunset views over Charlotte Harbor. The open split floor plan is perfect for entertaining and family living, with plenty of space for everyone to spread out and relax. Soaring cathedral ceilings enhance the spaciousness and grandeur of the unit, providing an airy and welcoming atmosphere. Sliders that open to a 276-square-foot lanai create a seamless indoor-outdoor living experience, where you can enjoy your morning coffee or unwind in the evening while taking in the ever-changing sunset murals painted by mother nature. The spacious kitchen area is equipped with a center island, granite countertops, an abundance of soft close, hardwood cabinets and drawers, suite of GE Profile stainless-steel appliances that include a cooktop, a built-in microwave and oven and overlooks your spacious dining and great room. The Master Suite invites you to relax and unwind with plush carpeted floor, tray ceiling with ceiling fan, two closets, one is a walk-in closet and unobstructed views of Charlotte Harbor. The attached master bath has a large corner granite counter vanity with his/her sinks, a jacuzzi tub, and a Roman shower with ice block wall. The guest bedroom is spacious with ample storage and a full guest bathroom providing privacy for visitors. Across from the guest bedroom is the office/den with French doors. The home also features a 13x6 laundry room with cabinets and two storage rooms, a mix of luxury vinyl and tile flooring throughout living space, crown molding, recess lighting, ceiling fans, new water heater in 2014, granite counter folding station and sink, deeded storage room #7 and parking spot #6 under the building. The Solamar community has a great fishing pier on the premises for those who want to try out fishing, a gorgeous pool area with hot tub this is situated by the clubhouse. Clubhouse has fitness room, game tables and a kitchen. Ponce De Leon Park & Peace River Wildlife center is a one mile walk away and overlooks the vast expanse of Charlotte Harbor. The parks amenities include a boat ramp, fishing piers, mangrove boardwalk, small playground, open-air chapel area, and picnic pavilion. The park also has a sandy beach area that is popular for watching the sunset and the boats cruising in and out of the channel into Punta Gorda Isles canal system. Nearby to Fishermen's Village, downtown Punta Gorda shops & restaurants, great boating, fishing, sailing, and more. This home is the one. Come see it today!
Financial Considerations
Price:
$600,000
HOA Fee:
N/A
Tax Amount:
$7884.21
Price per SqFt:
$269.66
Tax Legal Description:
PGI 024 0000 0005 PUNTA GORDA ISLES SEC24 LT 5 819/835 930/1073-74 2502/1565 SOLAMAR CONDOS
Exterior Features
Lot Size:
N/A
Lot Features:
Near Golf Course, Near Marina, Street Dead-End, Paved
Waterfront:
Yes
Parking Spaces:
N/A
Parking:
Covered, Ground Level, Guest, Off Street, Reserved, Under Building
Roof:
Tile
Pool:
No
Pool Features:
Gunite, Heated, In Ground
Interior Features
Bedrooms:
3
Bathrooms:
2
Heating:
Central, Electric
Cooling:
Central Air, Humidity Control
Appliances:
Built-In Oven, Cooktop, Dishwasher, Disposal, Dryer, Electric Water Heater, Microwave, Refrigerator, Washer
Furnished:
No
Floor:
Carpet, Luxury Vinyl
Levels:
One
Additional Features
Property Sub Type:
Condominium
Style:
N/A
Year Built:
2006
Construction Type:
Block, Stucco
Garage Spaces:
Yes
Covered Spaces:
N/A
Direction Faces:
Southeast
Pets Allowed:
Yes
Special Condition:
None
Additional Features:
Balcony, Lighting, Outdoor Grill, Rain Gutters, Sliding Doors
Additional Features 2:
See attached Docs
Map
  • Address
    95 N MARION CT #132
Contact a Professional
Why Choose Us?
  • Communication and Transparency
  • Skilled Negotiation
  • Robust Professional Network
  • After-Sale Support
Featured Properties

Related Properties

avt
Daniel Dourado
$ 245,000
avt
Daniel Dourado
$ 299,990
img
  • Featured
  • Active
Condominium

1001 BENJAMIN FRANKLIN DR #406

  • 2
  • 3
  • 127 m²
avt
Daniel Dourado
$ 700,000
avt
Daniel Dourado
$ 1,400,000
avt
Daniel Dourado
$ 1,100,000
avt
Daniel Dourado
$ 275,000
avt
Daniel Dourado
$ 310,000
avt
Daniel Dourado
$ 799,000
avt
Daniel Dourado
$ 239,900
avt
Daniel Dourado
$ 359,000
avt
Daniel Dourado
$ 200,000
avt
Daniel Dourado
$ 375,000