Active

$699,000

Features:
  • 6 Bedrooms
  • 4 Bathrooms
  • 3314 sq ft
Overview
  • ID: MFRC7520255
  • Bedrooms: 6
  • Bathrooms: 4
  • Size: 3314 sq ft
Property Details
Remarks
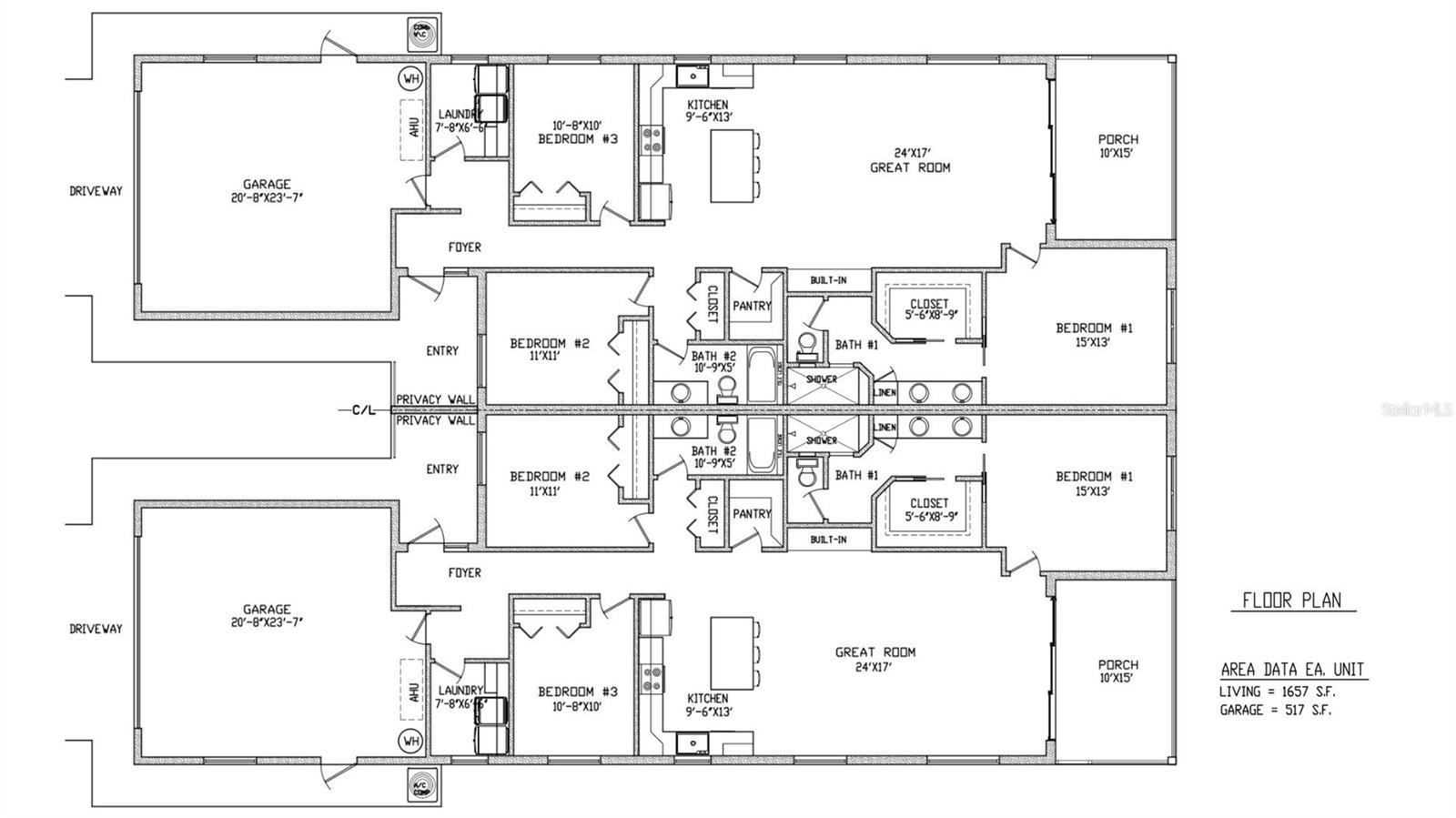
Experience the best of Florida living in this BRAND NEW Deep Creek duplex located in beautiful Punta Gorda. Each spacious unit offers 1,687 SQ FT of modern comfort with a SPLIT FLOOR PLAN, soaring HIGH CEILINGS, sleek LED LIGHTING, and TILE FLOORING THROUGHOUT. Enjoy peace of mind with IMPACT WINDOWS AND DOORS and a METAL ROOF built to last and protect, all supported by solid BLOCK CONSTRUCTION. Each unit features a beautifully designed kitchen with GRANITE COUNTERTOPS, a SPACIOUS INDOOR LAUNDRY ROOM, WALK-IN PANTRY and a PRIVATE OVERSIZED 2 CAR GARAGE, measuring almost 21x24. There is an abundant amount of storage space throughout, including EXTRA CABINETS conveniently located just off the dining area for added functionality. The thoughtful layout ensures each side lives like a true SINGLE FAMILY HOME, offering excellent privacy, comfort, and a LOW MAINTENANCE LIFESTYLE. Each unit also has SEPARATE UTILITIES, making management simple and ideal for both owners and tenants. This property is an outstanding INCOME PRODUCING OPPORTUNITY. Live in one unit while renting out the other or rent out BOTH UNITS for consistent long term investment potential. Located OUTSIDE OF A FLOOD ZONE with VERY LOW ANNUAL HOA FEE, this duplex offers affordability and strong financial appeal for investors and homeowners alike. The backyard is SPACIOUS and provides each unit with its own outdoor area, along with a beautiful and private feeling view. Tenants and owners will appreciate the room for outdoor seating, pets, and relaxation. Deep Creek is known as a desirable rental area with strong tenant demand, and this location is just minutes from I 75, shopping, downtown Punta Gorda, dining, entertainment, medical facilities, parks, and WORLD CLASS GOLFING AND FISHING. For beach lovers, Englewood Beach is approximately 35 minutes away, offering easy access to beautiful Gulf waters, soft sandy shores, and unforgettable sunsets.
Financial Considerations
Price:
$699,000
HOA Fee:
165
Tax Amount:
$1094.76
Price per SqFt:
$210.92
Tax Legal Description:
PGI 023 0649 0012 PUNTA GORDA ISLES SEC23 BLK649 LT 12 743/192 2939/1134 4234/945 4633/1240
Exterior Features
Lot Size:
19999
Lot Features:
Landscaped, Oversized Lot
Waterfront:
No
Parking Spaces:
N/A
Parking:
Driveway, Oversized
Roof:
Metal
Pool:
No
Pool Features:
N/A
Interior Features
Bedrooms:
6
Bathrooms:
4
Heating:
Central, Electric
Cooling:
Central Air
Appliances:
Dishwasher, Electric Water Heater, Microwave, Range, Refrigerator
Furnished:
Yes
Floor:
Tile
Levels:
N/A
Additional Features
Property Sub Type:
Duplex
Style:
N/A
Year Built:
2025
Construction Type:
Block, Stucco
Garage Spaces:
Yes
Covered Spaces:
N/A
Direction Faces:
N/A
Pets Allowed:
Yes
Special Condition:
None
Additional Features:
Rain Gutters, Sliding Doors
Additional Features 2:
N/A
Map
  • Address
    1036 SAN CRISTOBAL AVE
Contact a Professional
Why Choose Us?
  • Communication and Transparency
  • Skilled Negotiation
  • Robust Professional Network
  • After-Sale Support
Featured Properties

Related Properties

avt
Daniel Dourado
$ 399,875
avt
Daniel Dourado
$ 425,000
img
  • Featured
  • Active
Duplex

804/806 COLVILLE DR

  • 6
  • 4
  • 239 m²
avt
Daniel Dourado
$ 518,000
avt
Daniel Dourado
$ 345,000
avt
Daniel Dourado
$ 780,000
avt
Daniel Dourado
$ 449,900
avt
Daniel Dourado
$ 578,000
avt
Daniel Dourado
$ 699,000
img
  • Featured
  • Active
Duplex

9908 N MYRTLE ST #A & B

  • 4
  • 2
  • 150 m²
avt
Daniel Dourado
$ 375,000
img
  • Featured
  • Active
Duplex

2820 MAGNOLIA AVE

  • 4
  • 3
  • 125 m²
avt
Daniel Dourado
$ 350,000
avt
Daniel Dourado
$ 497,579
avt
Daniel Dourado
$ 210,000