Active

$720,000

Features:
  • Bedrooms
  • 0 Bathrooms
  • 750 sq ft
Overview
  • ID: MFRC7513200
  • Bedrooms:
  • Bathrooms: 0
  • Size: 750 sq ft
Property Details
Remarks
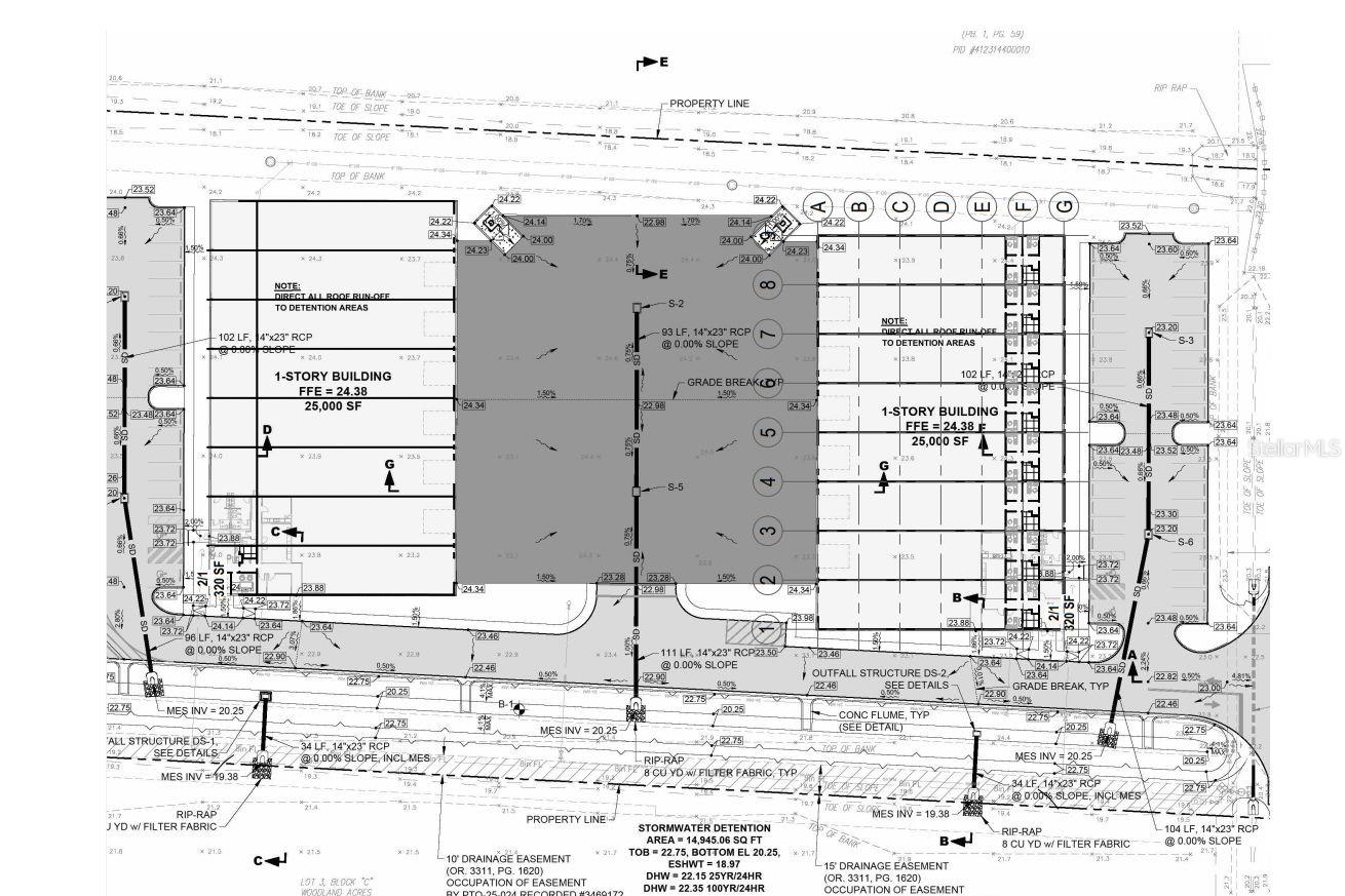
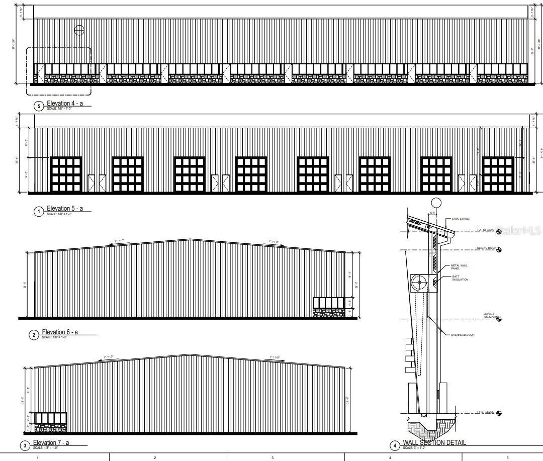
One or more photo(s) has been virtually staged. Under Construction. ECAP Zoned Flex Condos. 16 Units available across two - 25,000 Sq Ft. Buildings. Each unit will be 3,125 Sq Ft. Units may be bought individually or in bulk. Each unit will feature showroom space, 3 individual offices, and 1 ADA compliant bathroom. Warehouse space will include roll up door in rear, and 26+ feet ceiling heights. Property is conveniently located near the Punta Gorda airport 5 minute car drive to I75 Jones Loop Ramp. Enjoy the vibrant community of Punta Gorda featuring fine dinning, shopping & more Estimated completion date for the buildings is Quarter 4 of 2026. Condo fees are to be determined. For more information call. Information is deemed reliable but is not guaranteed.
Financial Considerations
Price:
$720,000
HOA Fee:
N/A
Tax Amount:
$8393.22
Price per SqFt:
$230.4
Tax Legal Description:
WLA 000 000C 0001 WOODLAND ACRES BLK C LTS 1 & 2 2 1/2 A EACH M/L 35/294 717/83 717/145-49 937/1352 958/1657 1496/1060 CD1516/443 2407/1019 CD2413/1634 2929/1199 E3220/490 E3311/1620 E3311/1648 3355573
Exterior Features
Lot Size:
217800
Lot Features:
N/A
Waterfront:
No
Parking Spaces:
N/A
Parking:
Common, Over 30 Spaces
Roof:
Metal
Pool:
No
Pool Features:
N/A
Interior Features
Bedrooms:
Bathrooms:
0
Heating:
Central
Cooling:
Office Only
Appliances:
N/A
Furnished:
No
Floor:
Concrete, Luxury Vinyl
Levels:
N/A
Additional Features
Property Sub Type:
Industrial
Style:
N/A
Year Built:
2026
Construction Type:
Metal Frame, Stone
Garage Spaces:
No
Covered Spaces:
N/A
Direction Faces:
N/A
Pets Allowed:
No
Special Condition:
None
Additional Features:
N/A
Additional Features 2:
N/A
Map
  • Address
    8411-8419 DUFFIE DR #103
Contact a Professional
Why Choose Us?
  • Communication and Transparency
  • Skilled Negotiation
  • Robust Professional Network
  • After-Sale Support
Featured Properties

Related Properties

avt
Daniel Dourado
$ 650,000
avt
Daniel Dourado
$ 1,899,000
avt
Daniel Dourado
$ 925,000
avt
Daniel Dourado
$ 207,000
avt
Daniel Dourado
$ 2,300,000
img
  • Featured
  • Active
Industrial

2524 ORANGE BLOSSOM TRL NW

  • 0
  • 44 m²
avt
Daniel Dourado
$ 1,500,000
avt
Daniel Dourado
$ 790,000
img
  • Featured
  • Active
Industrial

Warehouse JARDINES CAROLINA, ROSENDO VELA ACOSTA ST. #6A & 6B

  • 0
  • 0 m²
avt
Daniel Dourado
$ 4,500,000
avt
Daniel Dourado
$ 2,693,480
avt
Daniel Dourado
$ 1,174,750
avt
Daniel Dourado
$ 2,100,000
avt
Daniel Dourado
$ 1,339,500