Active

$254,900

Features:
  • 3 Bedrooms
  • 3 Bathrooms
  • 1360 sq ft
Overview
  • ID: MFRTB8464047
  • Bedrooms: 3
  • Bathrooms: 3
  • Size: 1360 sq ft
Property Details
Remarks
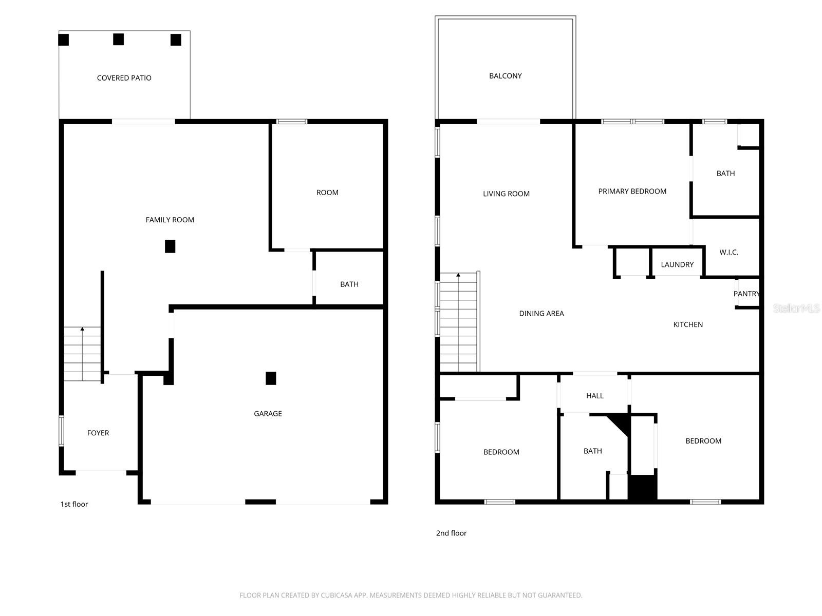
Nestled near the Cotee River in the well-maintained Marina Palms subdivision, this charming 3-bedroom, 3-bath home offers privacy, space, and serene water views. The home overlooks a lushly landscaped pool and spa, complemented by a contiguous pond with a tranquil fountain, creating a peaceful, resort-like setting. Enjoy picturesque views from the living room, primary bedroom, dining area, and balcony. Interior features include crown molding throughout, a tray ceiling in the living room, a family-size bar ideal for entertaining, and cosmetic upgrades throughout for a fresh, modern feel. Downstairs offers a 600+ sq ft flex space complete with a bathroom and shower, perfect for a game room, guest suite, home office, or in-law space. Additional highlights include a 2-car garage. This home delivers comfort, versatility, and scenic surroundings in a desirable waterfront-adjacent community
Financial Considerations
Price:
$254,900
HOA Fee:
185
Tax Amount:
$5002
Price per SqFt:
$187.43
Tax Legal Description:
Marina Palms FKA Indian Trace PB 26 PGS 4-6 Lot 66 Block B less South 2 ft thereof or 8186 PG 1659 or 85356
Exterior Features
Lot Size:
3241
Lot Features:
N/A
Waterfront:
No
Parking Spaces:
N/A
Parking:
N/A
Roof:
Shingle
Pool:
No
Pool Features:
N/A
Interior Features
Bedrooms:
3
Bathrooms:
3
Heating:
Central
Cooling:
Central Air
Appliances:
Dishwasher, Microwave, Range, Refrigerator
Furnished:
Yes
Floor:
Ceramic Tile, Hardwood, Wood
Levels:
Two
Additional Features
Property Sub Type:
Townhouse
Style:
N/A
Year Built:
2005
Construction Type:
Block, Stucco, Vinyl Siding, Frame
Garage Spaces:
Yes
Covered Spaces:
N/A
Direction Faces:
East
Pets Allowed:
Yes
Special Condition:
None
Additional Features:
Balcony
Additional Features 2:
Buyer to verify lease restrictions with Marina Palms association manager Jamie Mick 727-835-3035
Map
  • Address
    7641 SAILWINDS PASS
Contact a Professional
Why Choose Us?
  • Communication and Transparency
  • Skilled Negotiation
  • Robust Professional Network
  • After-Sale Support
Featured Properties

Related Properties

avt
Daniel Dourado
$ 374,999
avt
Daniel Dourado
$ 239,900
avt
Daniel Dourado
$ 535,000
avt
Daniel Dourado
$ 389,000
avt
Daniel Dourado
$ 235,000
avt
Daniel Dourado
$ 669,000
avt
Daniel Dourado
$ 361,340
avt
Daniel Dourado
$ 338,990
img
  • Featured
  • Active
Townhouse

212 W EUCLID AVE #B

  • 4
  • 5
  • 261 m²
avt
Daniel Dourado
$ 999,000
img
  • Featured
  • Active
Townhouse

8932 VILLAGE GREEN BLVD #0

  • 2
  • 2
  • 140 m²
avt
Daniel Dourado
$ 334,900
img
  • Featured
  • Active
Townhouse

1314 ROYAL ST GEORGE BLVD

  • 3
  • 3
  • 161 m²
avt
Daniel Dourado
$ 290,000
img
  • Featured
  • Active
Townhouse

691 BLISSFUL GARDENS WAY

  • 3
  • 3
  • 163 m²
avt
Daniel Dourado
$ 339,999