Active

$649,000

Features:
  • 4 Bedrooms
  • 6 Bathrooms
  • 3104 sq ft
Overview
  • ID: MFRTB8415889
  • Bedrooms: 4
  • Bathrooms: 6
  • Size: 3104 sq ft
Property Details
Remarks
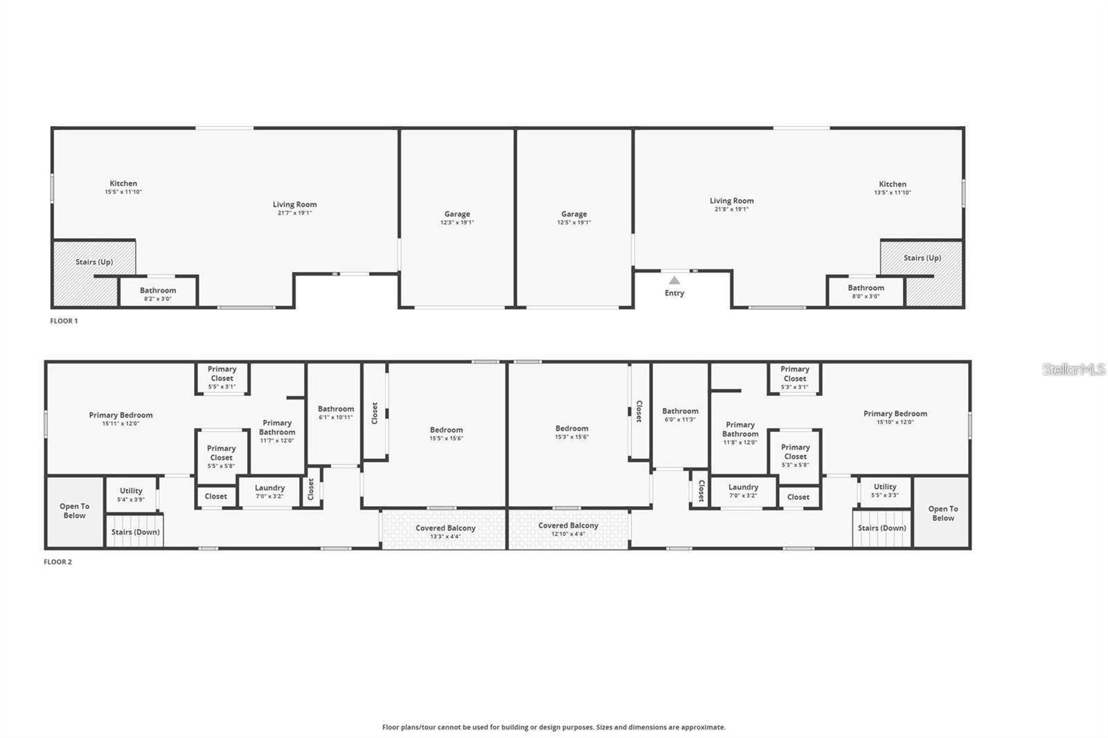
Turnkey 2-Year-Old Duplex – Dual Income Potential Near the Cotee River! This 2023-built duplex in desirable Port Richey offers the perfect mix of stability and flexibility for investors. Just minutes from the Cotee River and local dining, one side is currently leased on an annual rental, providing steady income, while the other side operates as a fully furnished short-term rental. Built high and dry, this property had no flooding issues from the 2024 hurricanes, offering peace of mind for owners and guests alike. Each side features a modern, open-concept floor plan with a center island and bar seating, stone countertops, wood cabinetry, and a dining/family room combo. Sliders lead to a private, fully fenced backyard patio, and a convenient half bath is located downstairs. Upstairs, the primary suite boasts two walk-in closets, a dual-sink vanity, and a custom-tiled walk-in shower. The second bedroom is equally spacious, with its own extra long vanity and tub/shower combo.. Additional highlights include upstairs laundry, a covered second-floor patio, a one-car garage, and driveway parking. Whether you’re looking to expand your investment portfolio, house-hack by living in one side while renting the other, or take advantage of the thriving short-term rental market, this property delivers strong income potential, modern construction, and a prime location.
Financial Considerations
Price:
$649,000
HOA Fee:
N/A
Tax Amount:
$9970.21
Price per SqFt:
$209.09
Tax Legal Description:
C F YORK R/P PB 2 PG 58 LOT 16 & NORTH 20 FT LOT 15 BLOCK 11
Exterior Features
Lot Size:
10150
Lot Features:
Landscaped, Level, Paved
Waterfront:
No
Parking Spaces:
N/A
Parking:
Driveway, Garage Door Opener, Off Street
Roof:
Shingle
Pool:
No
Pool Features:
N/A
Interior Features
Bedrooms:
4
Bathrooms:
6
Heating:
Central
Cooling:
Central Air
Appliances:
N/A
Furnished:
No
Floor:
Tile, Vinyl
Levels:
N/A
Additional Features
Property Sub Type:
Duplex
Style:
N/A
Year Built:
2023
Construction Type:
Block
Garage Spaces:
Yes
Covered Spaces:
N/A
Direction Faces:
N/A
Pets Allowed:
No
Special Condition:
None
Additional Features:
Fence, Lighting, Sliding Doors
Additional Features 2:
Check with city of Port Richey for any restrictions.
Map
  • Address
    5630 QUEENER AVE
Contact a Professional
Why Choose Us?
  • Communication and Transparency
  • Skilled Negotiation
  • Robust Professional Network
  • After-Sale Support
Featured Properties

Related Properties

avt
Daniel Dourado
$ 250,000
img
  • Featured
  • Active
Duplex

11421 & 11423 WELDON ST

  • 6
  • 4
  • 339 m²
avt
Daniel Dourado
$ 899,900
img
  • Featured
  • Active
Duplex

2613 E 23RD AVE #1/2

  • 12
  • 12
  • 300 m²
avt
Daniel Dourado
$ 849,900
avt
Daniel Dourado
$ 324,999
avt
Daniel Dourado
$ 269,000
avt
Daniel Dourado
$ 619,000
img
  • Featured
  • Active
Duplex

1201 E NORFOLK ST

  • 3
  • 2
  • 139 m²
avt
Daniel Dourado
$ 375,000
img
  • Featured
  • Active
Duplex

3122 GREEN ACRES AVE

  • 6
  • 2
  • 185 m²
avt
Daniel Dourado
$ 415,000
avt
Daniel Dourado
$ 249,000
img
  • Featured
  • Active
Duplex

10385 PORT EVERGLADES ST

  • 6
  • 4
  • 253 m²
avt
Daniel Dourado
$ 480,000
img
  • Featured
  • Active
Duplex

2804 52ND AVENUE DR W

  • 4
  • 2
  • 137 m²
avt
Daniel Dourado
$ 440,000
avt
Daniel Dourado
$ 349,000