Active

$499,999

Features:
  • 2 Bedrooms
  • 2 Bathrooms
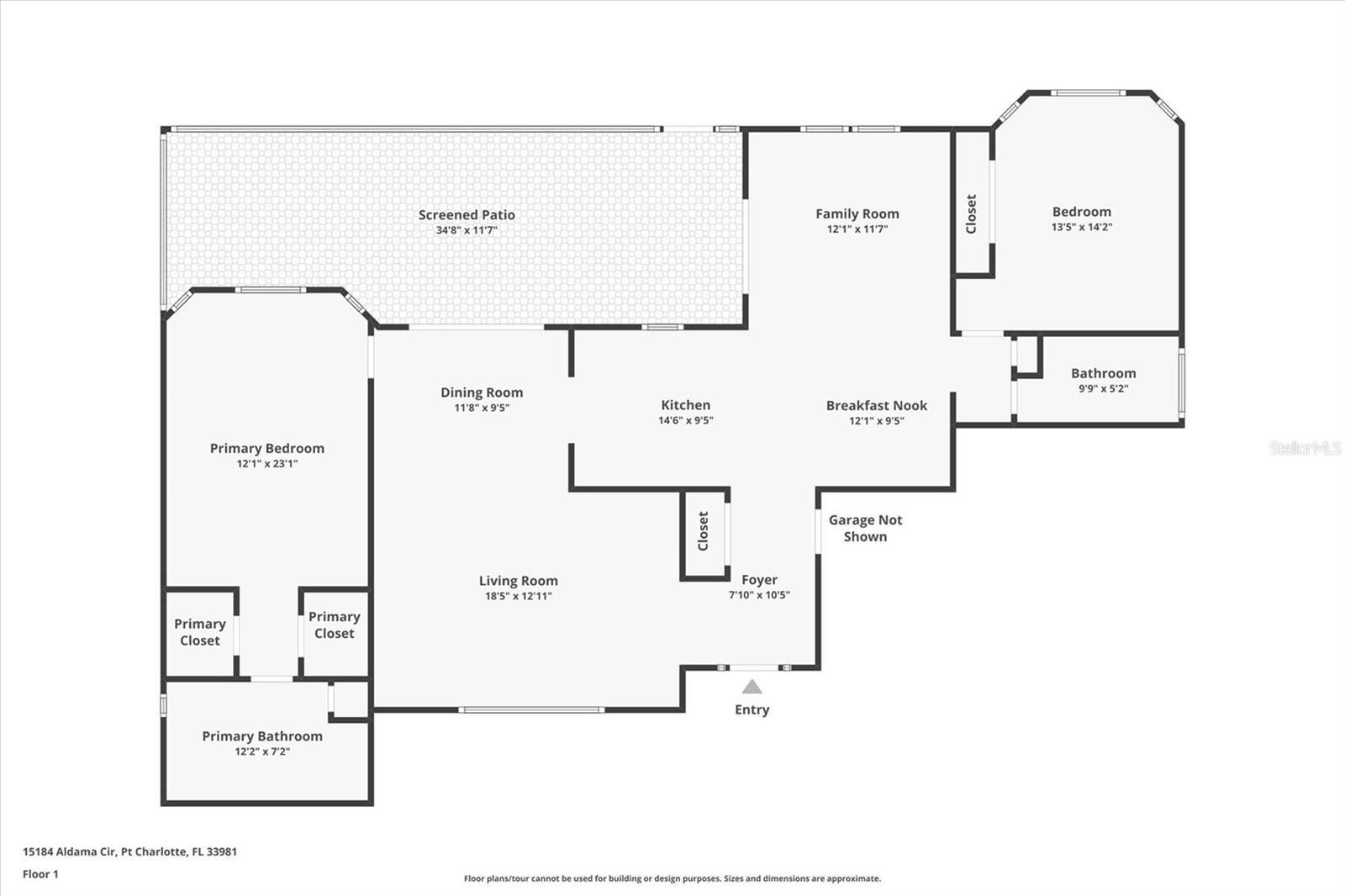
  • 1514 sq ft
Overview
  • ID: MFRD6141604
  • Bedrooms: 2
  • Bathrooms: 2
  • Size: 1514 sq ft
Property Details
Remarks
Waterfront Paradise in South Gulf Cove! Welcome to your dream waterfront retreat! This stunning 2-bedroom, 2-bathroom home offers the perfect mix of comfort, convenience, and outdoor adventure in one of Florida’s most desirable boating communities. Step inside to an inviting open floor plan filled with natural light. The spacious living area is perfect for relaxing or entertaining, while the well-appointed kitchen features modern appliances and ample counter space. The master suite offers a private en-suite bathroom, ensuring comfort and privacy. Recent upgrades include:New roof, soffits, hurricane-impact garage door, and select windows (03/2023) New cage screen (01/2024). But the true highlight of this home is the outdoor space! Situated on a double lot, this backyard is your own private oasis. Enjoy breathtaking sunsets and tranquil water views from your dock, complete with a covered boat lift for effortless days on the water. Plus, the private boat ramp makes launching your boat, kayak, or jet ski a breeze! With plenty of space to build a freestanding garage, you’ll have room for all your toys—whether it’s a boat, RV, or extra storage. And if you’re looking to complete your waterfront lifestyle, the seller is offering a 2003 Sea Ray 225 boat with new manifolds for purchase separately! This is a rare opportunity to own a waterfront gem in a prime location. Don’t let this be the one that got away—schedule your private showing today!
Financial Considerations
Price:
$499,999
HOA Fee:
190
Tax Amount:
$1156.62
Price per SqFt:
$330.25
Tax Legal Description:
PCH 082 4432 0027 PORT CHARLOTTE SEC82 BLK4432 LT 27 1053/1869 1186/2126 1788/1851 1788/1852 2151/1818 E2974/1968 4965/296
Exterior Features
Lot Size:
19998
Lot Features:
N/A
Waterfront:
Yes
Parking Spaces:
N/A
Parking:
N/A
Roof:
Shingle
Pool:
No
Pool Features:
N/A
Interior Features
Bedrooms:
2
Bathrooms:
2
Heating:
Central
Cooling:
Central Air
Appliances:
Dishwasher, Disposal, Dryer, Microwave, Refrigerator, Washer
Furnished:
No
Floor:
Ceramic Tile, Laminate
Levels:
One
Additional Features
Property Sub Type:
Single Family Residence
Style:
N/A
Year Built:
1990
Construction Type:
Block
Garage Spaces:
Yes
Covered Spaces:
N/A
Direction Faces:
South
Pets Allowed:
Yes
Special Condition:
None
Additional Features:
Hurricane Shutters, Private Mailbox, Rain Gutters, Sliding Doors, Storage
Additional Features 2:
N/A
Map
  • Address
    15184 ALDAMA CIR
Contact a Professional
Why Choose Us?
  • Communication and Transparency
  • Skilled Negotiation
  • Robust Professional Network
  • After-Sale Support
Featured Properties

Related Properties

avt
Daniel Dourado
$ 289,000
avt
Daniel Dourado
$ 333,900
avt
Daniel Dourado
$ 595,000
avt
Daniel Dourado
$ 499,995
avt
Daniel Dourado
$ 599,990
avt
Daniel Dourado
$ 635,000
avt
Daniel Dourado
$ 249,000
avt
Daniel Dourado
$ 399,000
avt
Daniel Dourado
$ 465,000