Active

$274,990

Features:
  • 2 Bedrooms
  • 2 Bathrooms
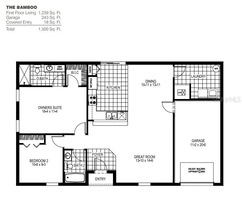
  • 1239 sq ft
Overview
  • ID: MFRC7506677
  • Bedrooms: 2
  • Bathrooms: 2
  • Size: 1239 sq ft
Property Details
Remarks
Under Construction. Introducing our Inspire Home Series with the Bamboo. Known for a quality build, this CBS construction home includes our energy smart features such as energy efficient HVAC System that meets SEER2 ratings, insulated exterior walls and attic ductwork, dual pane energy efficient Low E windows and a whole home 500 gallon Reverse Osmosis System for great water! Lovely open concept floor plan with 2 bedrooms, 2 baths and separate laundry room. Home finishes of laminate countertops, vinyl flooring with carpeting in the bedrooms and living areas that are pre-selected for you with your savings in mind! This new home includes one full year of builder's transferable warranty coverage and a 10-year limited structural warranty.
Financial Considerations
Price:
$274,990
HOA Fee:
N/A
Tax Amount:
$549
Price per SqFt:
$221.95
Tax Legal Description:
PORT CHARLOTTE SEC51 BLK3245 LT9
Exterior Features
Lot Size:
10019
Lot Features:
N/A
Waterfront:
No
Parking Spaces:
N/A
Parking:
N/A
Roof:
Shingle
Pool:
No
Pool Features:
N/A
Interior Features
Bedrooms:
2
Bathrooms:
2
Heating:
Central, Electric
Cooling:
Central Air
Appliances:
Dishwasher, Electric Water Heater, Range
Furnished:
No
Floor:
Carpet, Vinyl
Levels:
One
Additional Features
Property Sub Type:
Single Family Residence
Style:
N/A
Year Built:
2025
Construction Type:
Block, Stucco
Garage Spaces:
Yes
Covered Spaces:
N/A
Direction Faces:
Southeast
Pets Allowed:
Yes
Special Condition:
None
Additional Features:
Sliding Doors
Additional Features 2:
N/A
Map
  • Address
    1488 UPSHAW TER
Contact a Professional
Why Choose Us?
  • Communication and Transparency
  • Skilled Negotiation
  • Robust Professional Network
  • After-Sale Support
Featured Properties

Related Properties

avt
Daniel Dourado
$ 309,990
avt
Daniel Dourado
$ 398,500
avt
Daniel Dourado
$ 429,990
avt
Daniel Dourado
$ 730,000
avt
Daniel Dourado
$ 225,000
avt
Daniel Dourado
$ 436,800
avt
Daniel Dourado
$ 289,900
avt
Daniel Dourado
$ 329,000
avt
Daniel Dourado
$ 3,390,000
avt
Daniel Dourado
$ 374,900