Active

$225,000

Features:
  • 2 Bedrooms
  • 2 Bathrooms
  • 1056 sq ft
Overview
  • ID: MFRP4937403
  • Bedrooms: 2
  • Bathrooms: 2
  • Size: 1056 sq ft
Property Details
Remarks
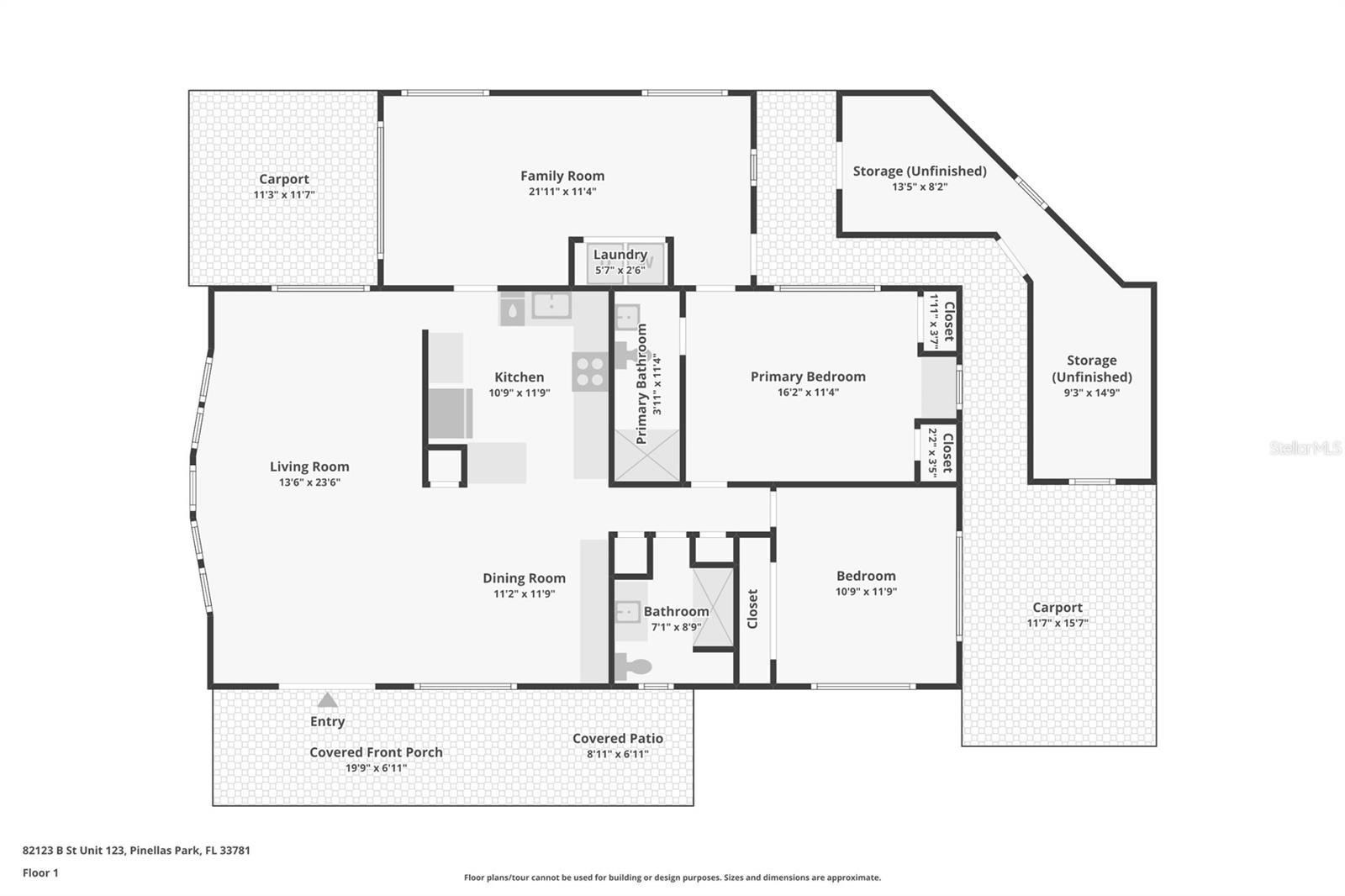
One or more photo(s) has been virtually staged. Nestled in the heart of Pinellas Park, this home presents a unique opportunity to become part of a vibrant 55+ co-op resident-owned community. This impressive triple-wide mobile home offers a harmonious blend of space, comfort, and modern amenities tailored to enhance the living experience of its residents. Upon entering, you're greeted by an expansive open living area that seamlessly connects to the elegantly renovated kitchen, complete with updated appliances. The thoughtful design maximizes functionality while providing ample space for entertaining family and friends. The home's interior has been freshly painted, lending a serene ambiance that complements the updated windows, which fill the space with natural light. The property's recent renovations extend beyond aesthetics; a new central air conditioning unit was installed in 2021, ensuring year-round comfort. The roof was updated in 2018 and comes with a warranty for added peace of mind. Durable vinyl flooring has been laid throughout the living spaces, with bathroom renovations completed in 2020, showcasing modern fixtures and finishes. This well-appointed home prioritizes convenience with indoor laundry hookups, a water softener, and abundant storage solutions. It features two carports and a double shed, providing ample space for vehicles and additional belongings. The outdoor space is equally inviting, offering a covered front patio perfect for relaxation, adorned by a charming French-style front door that creates an inviting entryway. This home stands as a testament to modern living within a welcoming 55+ community, presenting potential homeowners with the opportunity to embrace a lifestyle characterized by comfort, convenience, and community engagement.
Financial Considerations
Price:
$225,000
HOA Fee:
210
Tax Amount:
$2218.78
Price per SqFt:
$213.07
Tax Legal Description:
GOLDEN GATE MOBILE HOME PARK UNRECORDED LOT 123
Exterior Features
Lot Size:
4587
Lot Features:
Corner Lot, Landscaped, Near Public Transit, Sidewalk, Paved
Waterfront:
No
Parking Spaces:
N/A
Parking:
Covered, Guest, Off Street
Roof:
Membrane, Roof Over
Pool:
No
Pool Features:
N/A
Interior Features
Bedrooms:
2
Bathrooms:
2
Heating:
Central, Electric
Cooling:
Central Air
Appliances:
Dishwasher, Electric Water Heater, Microwave, Range, Refrigerator
Furnished:
Yes
Floor:
Carpet, Vinyl
Levels:
One
Additional Features
Property Sub Type:
Mobile Home
Style:
N/A
Year Built:
1970
Construction Type:
Metal Frame, Vinyl Siding
Garage Spaces:
No
Covered Spaces:
N/A
Direction Faces:
Southeast
Pets Allowed:
No
Special Condition:
None
Additional Features:
French Doors, Lighting, Rain Gutters, Sidewalk, Sliding Doors, Storage
Additional Features 2:
N/A
Map
  • Address
    82123 B ST N #123
Contact a Professional
Why Choose Us?
  • Communication and Transparency
  • Skilled Negotiation
  • Robust Professional Network
  • After-Sale Support
Featured Properties

Related Properties

avt
Daniel Dourado
$ 250,000
avt
Daniel Dourado
$ 220,000
avt
Daniel Dourado
$ 250,000
avt
Daniel Dourado
$ 200,000
avt
Daniel Dourado
$ 349,900
avt
Daniel Dourado
$ 235,000
img
  • Featured
  • Active
Mobile Home

6823 MOUNT PLEASANT RD NE #37

  • 2
  • 2
  • 69 m²
avt
Daniel Dourado
$ 269,000
avt
Daniel Dourado
$ 295,000
avt
Daniel Dourado
$ 225,000
avt
Daniel Dourado
$ 269,000
avt
Daniel Dourado
$ 299,994
avt
Daniel Dourado
$ 209,000