Active

$449,000

Features:
  • 3 Bedrooms
  • 3 Bathrooms
  • 1850 sq ft
Overview
  • ID: MFRO6278981
  • Bedrooms: 3
  • Bathrooms: 3
  • Size: 1850 sq ft
Property Details
Remarks
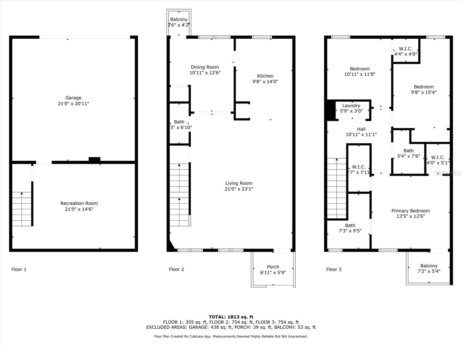
Welcome to 945 N Fern Creek Ave, a stylish, low-maintenance home in a prime location within the highly desirable Colonialtown North neighborhood of Orlando. This well-maintained townhome-style condo offers 1,850 square feet of living space with 3 bedrooms, 2.5 bathrooms, and an attached two-car garage with an epoxy finish. RECENT UPDATES include new luxury vinyl flooring throughout, updated countertops and sinks, a modern kitchen backsplash, new toilets, a new refrigerator, and updated light fixtures, enhancing both style and functionality. The open-concept living and dining areas feature high ceilings and large windows, providing an abundance of natural light. A powder room on the main level adds convenience. The lower level features an oversized flex space, perfect for a home theater, gym, or office, and offers the potential to be converted into a fourth bedroom if desired. Upstairs, the primary suite includes dual walk-in closets with custom shelving, a private balcony, and an en-suite bathroom. Two additional bedrooms, a full hall bathroom, and a laundry closet on the upper floor provide added convenience. Nestled in the heart of Colonialtown North, this beautifully maintained home offers the perfect blend of urban convenience and neighborhood charm. INCLUDED IN THE HOA FEES are Escrow Reserves, Insurance, Exterior and Grounds Maintenance, Repair Maintenance, and Pest Control. This home is ideally situated just minutes from Mills 50 District and Ivanhoe Village, where you’ll find a vibrant mix of trendy restaurants, craft breweries, and boutique shops. It’s also less than 3 miles from AdventHealth Orlando and Orlando Health Winnie Palmer Hospital, making it an excellent choice for medical professionals or anyone seeking close proximity to top-tier healthcare. Located just 2 miles from Downtown Orlando, you'll enjoy easy access to the city's top dining, shopping, and entertainment hotspots. Zoned for the highly sought-after Audubon Park School, this home is located in a walkable, bike-friendly neighborhood near Loch Haven Park, the Orlando Science Center, East End Market, and the Orlando Museum of Art. Popular local favorites like Kelly’s Ice Cream, The Guesthouse, and Kadence Sushi are all within minutes, offering some of Orlando’s best dining and entertainment options!
Financial Considerations
Price:
$449,000
HOA Fee:
400
Tax Amount:
$5199.9
Price per SqFt:
$242.7
Tax Legal Description:
COLONIAL CITY HOMES CONDO 6838/3435 UNIT3
Exterior Features
Lot Size:
5324
Lot Features:
N/A
Waterfront:
No
Parking Spaces:
N/A
Parking:
Garage Faces Rear, Guest, On Street
Roof:
Metal
Pool:
No
Pool Features:
N/A
Interior Features
Bedrooms:
3
Bathrooms:
3
Heating:
Central, Electric
Cooling:
Central Air
Appliances:
Cooktop, Dishwasher, Disposal, Dryer, Electric Water Heater, Microwave, Refrigerator, Washer
Furnished:
No
Floor:
Luxury Vinyl
Levels:
Three Or More
Additional Features
Property Sub Type:
Condominium
Style:
N/A
Year Built:
2003
Construction Type:
Block, Concrete, Stucco, Frame
Garage Spaces:
Yes
Covered Spaces:
N/A
Direction Faces:
East
Pets Allowed:
Yes
Special Condition:
None
Additional Features:
Balcony, Rain Gutters
Additional Features 2:
Buyer and Buyer's Agent to independently verify lease restrictions with the HOA as well as the city/county.
Map
  • Address
    945 N FERN CREEK AVE #3
Contact a Professional
Why Choose Us?
  • Communication and Transparency
  • Skilled Negotiation
  • Robust Professional Network
  • After-Sale Support
Featured Properties

Related Properties

avt
Daniel Dourado
$ 235,000
img
  • Featured
  • Active
Condominium

6085 BAHIA DEL MAR BLVD #105

  • 2
  • 2
  • 99 m²
avt
Daniel Dourado
$ 399,000
avt
Daniel Dourado
$ 210,000
avt
Daniel Dourado
$ 389,000
img
  • Featured
  • Active
Condominium

108 TUSCANY VILLAS DR #15

  • 2
  • 2
  • 93 m²
avt
Daniel Dourado
$ 239,000
img
  • Featured
  • Active
Condominium

450 GULF OF MEXICO DR #B207

  • 3
  • 2
  • 136 m²
avt
Daniel Dourado
$ 760,000
img
  • Featured
  • Active
Condominium

3301 WHITESTONE CIR #107

  • 3
  • 2
  • 165 m²
avt
Daniel Dourado
$ 267,000
img
  • Featured
  • Active
Condominium

1211 GULF OF MEXICO DRIVE #108

  • 2
  • 2
  • 169 m²
avt
Daniel Dourado
$ 1,199,000
avt
Daniel Dourado
$ 200,000
avt
Daniel Dourado
$ 279,895
avt
Daniel Dourado
$ 299,500
img
  • Featured
  • Active
Condominium

500 TREASURE ISLAND CSWY #308

  • 2
  • 2
  • 165 m²
avt
Daniel Dourado
$ 795,000