Active

$636,880

Features:
  • Bedrooms
  • 0 Bathrooms
  • 3352 sq ft
Overview
  • ID: MFRO6402788
  • Bedrooms:
  • Bathrooms: 0
  • Size: 3352 sq ft
Property Details
Remarks
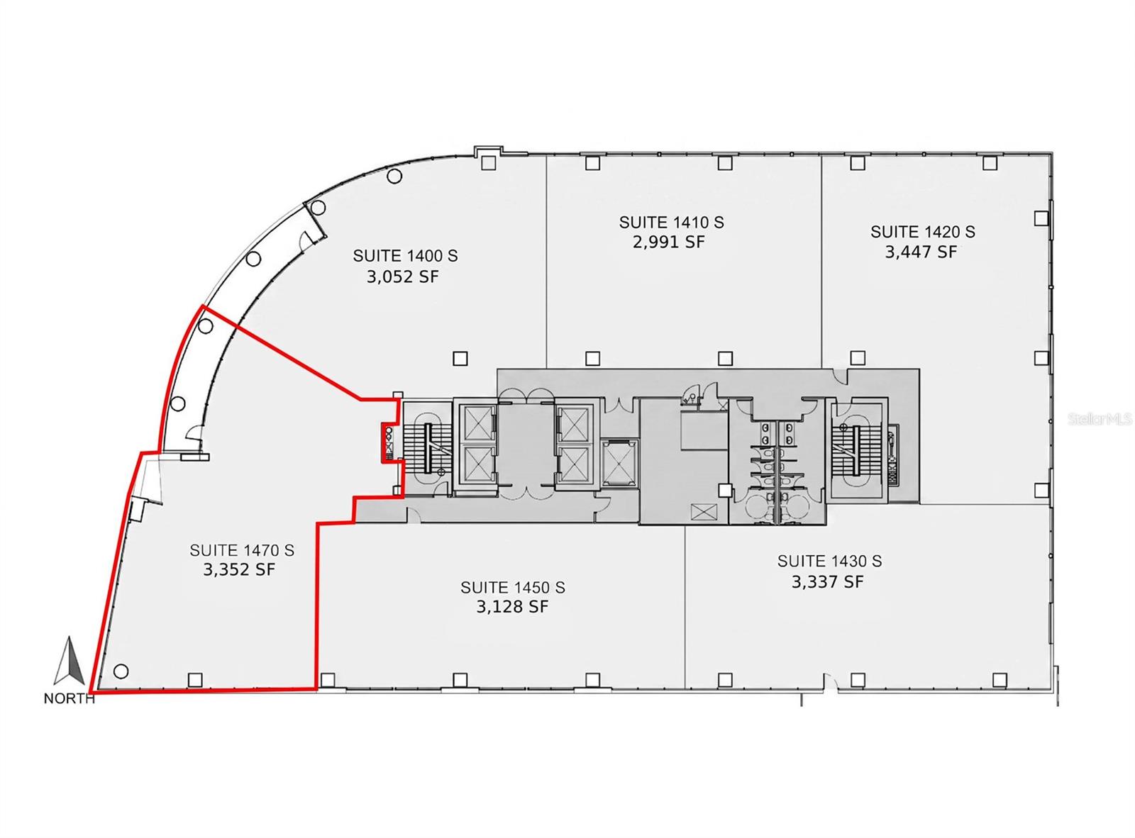
Establish a premier business presence in Downtown Orlando with this well-positioned office condo located in the iconic Plaza South Tower.??Unit 1470 offers approximately 3,352 SF of thoughtfully configured office space, ideal for professional firms seeking a functional and polished work environment. The layout supports a combination of private offices, collaborative workspace, and meeting areas, enhanced by large windows that provide natural light, city views, and access to a private balcony—an uncommon feature in downtown office condos.??This unit presents a strong opportunity for owner-users looking to secure a long-term downtown footprint, as well as investors seeking stable office assets in a high-demand location. Offered for sale with a lease option, the property provides flexibility for both immediate occupancy and investment strategies.??Situated within a Class A office tower, the building features 24/7 secured access, concierge services, attached garage parking, and walkable access to dining, retail, and key business hubs throughout Downtown Orlando. PROPERTY HIGHLIGHTS:?* ±3,352 SF Office Condo Unit?* Workstation area, perfect for an open team environment or cubicle build-out?* Multiple private offices (83 SF to 373 SF)?* Breakout lounges and flex rooms (130-327 SF)?* Dedicated IT/storage room & private restrooms?* Integrated kitchen/break area with cabinetry &?plumbing infrastructure?* Private balconies with sweeping city views
Financial Considerations
Price:
$636,880
HOA Fee:
N/A
Tax Amount:
$12135.62
Price per SqFt:
$190
Tax Legal Description:
PLAZA SOUTH TOWER COMMERCIAL CONDOMINIUM8820/4417 UNIT 1470 S
Exterior Features
Lot Size:
3668
Lot Features:
N/A
Waterfront:
No
Parking Spaces:
N/A
Parking:
N/A
Roof:
N/A
Pool:
No
Pool Features:
N/A
Interior Features
Bedrooms:
Bathrooms:
0
Heating:
N/A
Cooling:
Central Air
Appliances:
N/A
Furnished:
No
Floor:
N/A
Levels:
N/A
Additional Features
Property Sub Type:
Office
Style:
N/A
Year Built:
2007
Construction Type:
Stucco
Garage Spaces:
No
Covered Spaces:
N/A
Direction Faces:
N/A
Pets Allowed:
No
Special Condition:
None
Additional Features:
N/A
Additional Features 2:
N/A
Map
  • Address
    189 S ORANGE AVE #1470
Contact a Professional
Why Choose Us?
  • Communication and Transparency
  • Skilled Negotiation
  • Robust Professional Network
  • After-Sale Support
Featured Properties

Related Properties

avt
Daniel Dourado
$ 330,000
img
  • Featured
  • Active
Office

189 S ORANGE AVE #1430

  • 0
  • 310 m²
avt
Daniel Dourado
$ 600,660
img
  • Featured
  • Active
Office

189 S ORANGE AVE #1450

  • 0
  • 290 m²
avt
Daniel Dourado
$ 531,760
avt
Daniel Dourado
$ 440,000
img
  • Featured
  • Active
Office

5245 OFFICE PARK BLVD #102

  • 0
  • 91 m²
avt
Daniel Dourado
$ 270,000
img
  • Featured
  • Active
Office

234 N RHODES AVE #108

  • 0
  • 195 m²
avt
Daniel Dourado
$ 730,000
img
  • Featured
  • Active
Office

234 N RHODES AVE #105

  • 0
  • 195 m²
avt
Daniel Dourado
$ 730,000
avt
Daniel Dourado
$ 1,295,000
avt
Daniel Dourado
$ 275,000
avt
Daniel Dourado
$ 2,300,000
avt
Daniel Dourado
$ 699,000
avt
Daniel Dourado
$ 680,000