Sold

$232,990

Features:
  • 3 Bedrooms
  • 3 Bathrooms
  • 1458 sq ft
Overview
  • ID: MFROM699972
  • Bedrooms: 3
  • Bathrooms: 3
  • Size: 1458 sq ft
Property Details
Remarks
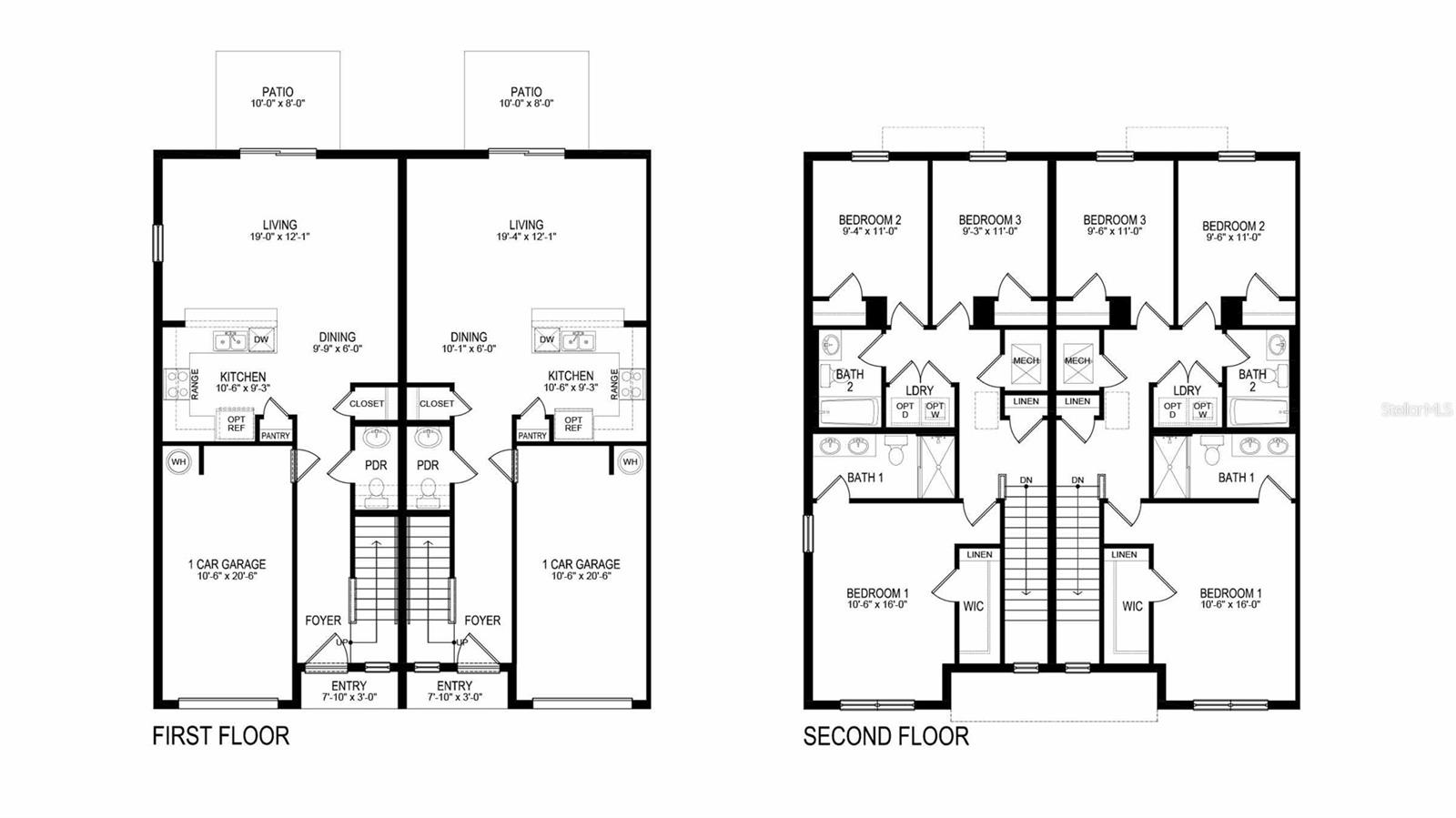
One or more photo(s) has been virtually staged. Under Construction. This two-story townhome has an open concept downstairs layout that includes a large open kitchen, a powder room, and spacious family room that overlooks a patio. The second floor includes a spacious Primary Suite with an ensuite bathroom, two additional bedrooms, a 2nd full bathroom, and a laundry area. This home comes with all appliances including a refrigerator, built-in dishwasher, electric range, microwave, washer, and dryer. Pictures, photographs, colors, features, and sizes are for illustration purposes only and will vary from the homes as built. Home and community information including pricing, included features, terms, availability and amenities are subject to change and prior sale at any time without notice or obligation. CRC057592.
Financial Considerations
Price:
$232,990
HOA Fee:
405
Tax Amount:
$0
Price per SqFt:
$156.37
Tax Legal Description:
SEC 17 TWP 16 RGE 21 PLAT BOOK 015 PAGE 130 LAUREL COMMONS LOT 43
Exterior Features
Lot Size:
1600
Lot Features:
N/A
Waterfront:
No
Parking Spaces:
N/A
Parking:
N/A
Roof:
Shingle
Pool:
No
Pool Features:
N/A
Interior Features
Bedrooms:
3
Bathrooms:
3
Heating:
Central, Electric
Cooling:
Central Air
Appliances:
Dishwasher, Dryer, Microwave, Range, Refrigerator, Washer
Furnished:
No
Floor:
Carpet, Ceramic Tile
Levels:
Two
Additional Features
Property Sub Type:
Townhouse
Style:
N/A
Year Built:
2025
Construction Type:
Frame
Garage Spaces:
Yes
Covered Spaces:
N/A
Direction Faces:
Northwest
Pets Allowed:
Yes
Special Condition:
None
Additional Features:
N/A
Additional Features 2:
Per HOA Guidelines
Map
  • Address
    6589 SW 81ST LOOP
Contact a Professional
Why Choose Us?
  • Communication and Transparency
  • Skilled Negotiation
  • Robust Professional Network
  • After-Sale Support
Featured Properties

Related Properties

img
  • Featured
  • Active
Townhouse

539 SOUTHERN EDGE WAY

  • 3
  • 3
  • 151 m²
avt
Daniel Dourado
$ 390,990
avt
Daniel Dourado
$ 235,000
img
  • Featured
  • Active
Townhouse

559 SOUTHERN EDGE WAY

  • 3
  • 3
  • 151 m²
avt
Daniel Dourado
$ 390,990
img
  • Featured
  • Active
Townhouse

551 SOUTHERN EDGE WAY

  • 3
  • 3
  • 151 m²
avt
Daniel Dourado
$ 390,990
avt
Daniel Dourado
$ 320,000
avt
Daniel Dourado
$ 264,000
avt
Daniel Dourado
$ 249,999
avt
Daniel Dourado
$ 297,900
img
  • Featured
  • Active
Townhouse

10475 WESTPARK PRESERVE BLVD

  • 2
  • 3
  • 115 m²
avt
Daniel Dourado
$ 294,900
avt
Daniel Dourado
$ 449,500
img
  • Featured
  • Active
Townhouse

1054 GOLDEN WILLOW CT

  • 3
  • 3
  • 207 m²
avt
Daniel Dourado
$ 499,999
avt
Daniel Dourado
$ 269,000