Active

$699,000

Features:
  • 4 Bedrooms
  • 2 Bathrooms
  • 2413 sq ft
Overview
  • ID: MFRA4671776
  • Bedrooms: 4
  • Bathrooms: 2
  • Size: 2413 sq ft
Property Details
Remarks
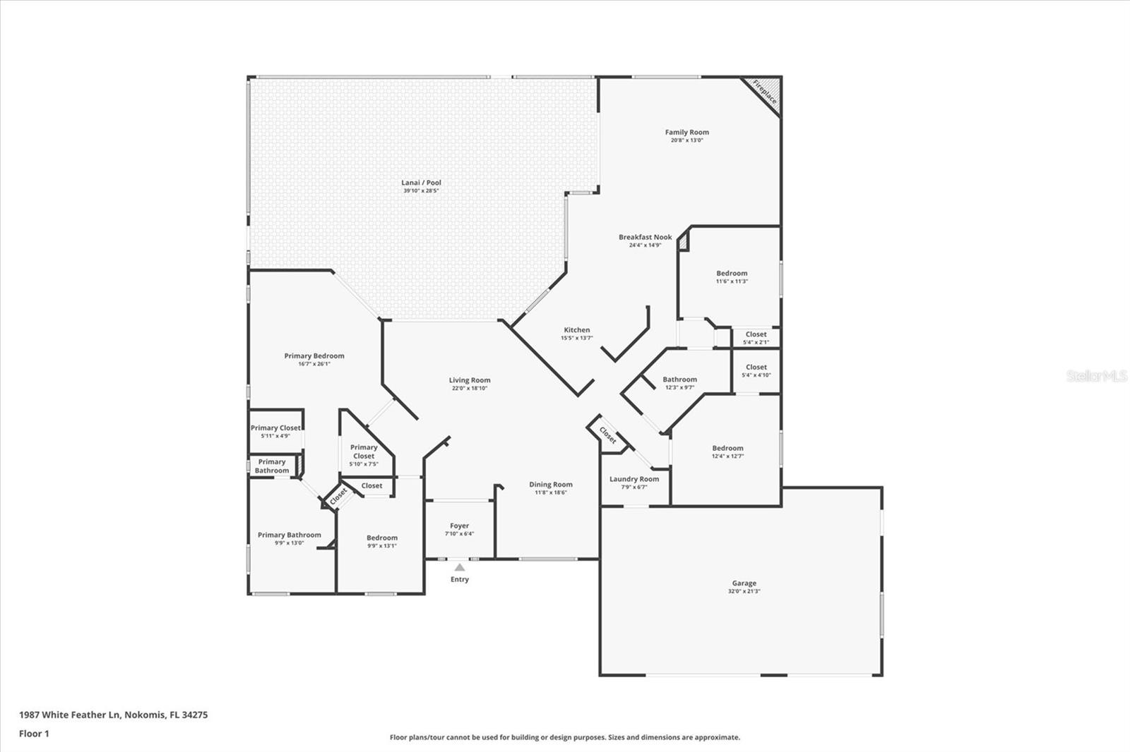
Welcome to the gated community of Calusa Lakes, where this beautifully maintained pool home overlooks the serene golf course and showcases true pride of ownership from the moment you arrive. Lush landscaping and a pavered driveway lead you to this 4 bedroom 2 bathroom 3 car garage home offering over 2,400 square feet of living space on a generous 0.28 acre lot. Stepping through the double front doors, you are greeted with high ceilings, crown molding, and a bright welcoming layout. The formal living room and dining room create the perfect setting for holidays and gatherings. The kitchen offers ample storage and counter space with an eat in nook that overlooks the pool area. This space is seamlessly connected to the family room, where a stone wood burning fireplace becomes the cozy focal point this holiday season. The split bedroom floorplan is ideal for privacy. The owner’s suite has its own sliding glass doors to the lanai, double walk in closets, and an ensuite bathroom with dual sinks, a large soaking tub, and a separate stand up shower. The fourth bedroom is also on this side of the home and is currently being used as a separate TV room, but it could easily serve as an office. Bedrooms two and three are located on the opposite side of the home with a guest bathroom conveniently placed between them. An indoor laundry room adds even more function with a utility sink and plenty of storage. Step out to the screened in lanai that feels like a private oasis. The heated pool was resurfaced in 2017 and features beautiful travertine tile surround. Relax and enjoy the picturesque golf course views with thoughtfully placed landscaping that provides both beauty and privacy. Calusa Lakes is a desirable gated community offering low HOA fees, no CDD fees, and an environmentally conscious setting nestled among 460 acres of mature pines and oaks. Residents enjoy access to 28 lakes, a semiprivate 18 hole golf course with optional membership, Har Tru tennis courts, a clubhouse with dining, and more. Located in Nokomis between Sarasota and Venice, this community offers easy access to I 75, shopping, dining, boating, the Legacy Trail, and the stunning white sands of Nokomis Beach. Schedule your showing today and experience the lifestyle this beautiful home provides.
Financial Considerations
Price:
$699,000
HOA Fee:
327
Tax Amount:
$6243
Price per SqFt:
$289.68
Tax Legal Description:
LOT 22 BLK F CALUSA LAKES UNIT 1
Exterior Features
Lot Size:
12123
Lot Features:
On Golf Course
Waterfront:
No
Parking Spaces:
N/A
Parking:
Driveway
Roof:
Tile
Pool:
Yes
Pool Features:
Heated, In Ground, Screen Enclosure
Interior Features
Bedrooms:
4
Bathrooms:
2
Heating:
Central
Cooling:
Central Air
Appliances:
Built-In Oven, Cooktop, Dishwasher, Microwave, Refrigerator
Furnished:
Yes
Floor:
Carpet, Tile
Levels:
One
Additional Features
Property Sub Type:
Single Family Residence
Style:
N/A
Year Built:
1992
Construction Type:
Stucco
Garage Spaces:
Yes
Covered Spaces:
N/A
Direction Faces:
South
Pets Allowed:
Yes
Special Condition:
None
Additional Features:
Private Mailbox, Sliding Doors
Additional Features 2:
Buyer to verify with HOA. Please review all docs.
Map
  • Address
    1987 WHITE FEATHER LN
Contact a Professional
Why Choose Us?
  • Communication and Transparency
  • Skilled Negotiation
  • Robust Professional Network
  • After-Sale Support
Featured Properties

Related Properties

avt
Daniel Dourado
$ 395,000
avt
Daniel Dourado
$ 814,900
avt
Daniel Dourado
$ 270,000
avt
Daniel Dourado
$ 575,000
avt
Daniel Dourado
$ 335,000
avt
Daniel Dourado
$ 595,000
avt
Daniel Dourado
$ 395,000
avt
Daniel Dourado
$ 450,000
avt
Daniel Dourado
$ 484,900
avt
Daniel Dourado
$ 249,500