Sold

$440,000

Features:
  • 2 Bedrooms
  • 2 Bathrooms
  • 1038 sq ft
Overview
  • ID: MFRNS1084052
  • Bedrooms: 2
  • Bathrooms: 2
  • Size: 1038 sq ft
Property Details
Remarks
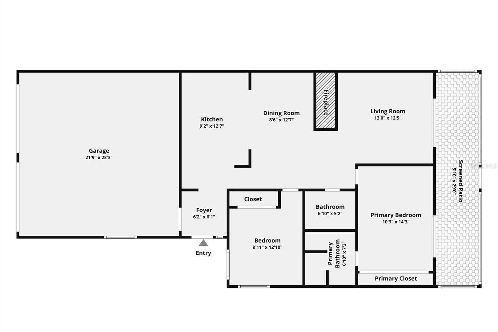
There is simply not a better value on Beachside right now for a home with this kind of garage space! Welcome to the Tranquil Seas. This “rarely offered” 2-bedroom, 2-bath, corner unit home features an oversized 2-car garage perfect for the New Smyrna Beach lifestyle. Store your golf cart, kayaks, cars and more in this tucked away hidden gem located in the south beach area. Tons of privacy with professional landscaping all around and both a front deck with pergola with beautiful morning sunlight and rear screen lanai for afternoon shade. Lanai has new epoxy flooring and there’s a garden shed for additional storage. Landscaping is hardscape with drip irrigation for low maintenance and perfect for part-time or full time residents. Inside features vaulted ceilings making it feel much larger, updated appliances, renovated bathrooms, kitchen pantry and a really cool double-sided fireplace. Move-in ready with most furnishings negotiable. This can be turn-key. Arrive and enjoy the beach. Great location only ?-mile to both the car free beach or public river access at Indian River Lagoon Park. Two miles to 3rd Avenue, 3-miles to Flagler Avenue, 4-miles to Canal Street and 5-miles to Canaveral National Seashore. This is a must see to appreciate!
Financial Considerations
Price:
$440,000
HOA Fee:
100
Tax Amount:
$4866
Price per SqFt:
$419.08
Tax Legal Description:
27 17 34 W 30 FT OF E 41.84 FT OF S 57.67 FT OF N 91.72 FT E OF RD OF W 198.4 FT ON N/L BEING 182.45 FT ON S/L & 139.36 FT ON E/L OF LOT 2 BLK 11 BROWNS SUB AKA PARCEL A-3 TRANQUIL SEAS PER OR 4028 PG 0406 PER OR 5383 PG 4256 PER D/C 5742 PG 3615 PER OR 6
Exterior Features
Lot Size:
1728
Lot Features:
Landscaped
Waterfront:
No
Parking Spaces:
N/A
Parking:
Garage Door Opener, Golf Cart Parking, Oversized
Roof:
Shingle
Pool:
No
Pool Features:
N/A
Interior Features
Bedrooms:
2
Bathrooms:
2
Heating:
Central
Cooling:
Central Air
Appliances:
Dishwasher, Disposal, Dryer, Microwave, Range, Refrigerator, Washer
Furnished:
Yes
Floor:
Carpet, Laminate, Tile
Levels:
One
Additional Features
Property Sub Type:
Single Family Residence
Style:
N/A
Year Built:
1981
Construction Type:
Block, Concrete, Stucco
Garage Spaces:
Yes
Covered Spaces:
N/A
Direction Faces:
South
Pets Allowed:
Yes
Special Condition:
None
Additional Features:
Outdoor Grill, Sidewalk, Sliding Doors, Storage
Additional Features 2:
Buyer responsible for verifying all leasing restrictions important to buyer.
Map
  • Address
    4035 SAXON DR #A3
Contact a Professional
Why Choose Us?
  • Communication and Transparency
  • Skilled Negotiation
  • Robust Professional Network
  • After-Sale Support
Featured Properties

Related Properties

avt
Daniel Dourado
$ 5,200,000
avt
Daniel Dourado
$ 719,000
avt
Daniel Dourado
$ 710,000
avt
Daniel Dourado
$ 375,000
avt
Daniel Dourado
$ 995,000
avt
Daniel Dourado
$ 660,000
avt
Daniel Dourado
$ 750,000
avt
Daniel Dourado
$ 479,900
avt
Daniel Dourado
$ 315,000
avt
Daniel Dourado
$ 330,000
avt
Daniel Dourado
$ 499,000