Active

$1,375,000

Features:
  • 6 Bedrooms
  • 6 Bathrooms
  • 4404 sq ft
Overview
  • ID: MFRNS1082608
  • Bedrooms: 6
  • Bathrooms: 6
  • Size: 4404 sq ft
Property Details
Remarks
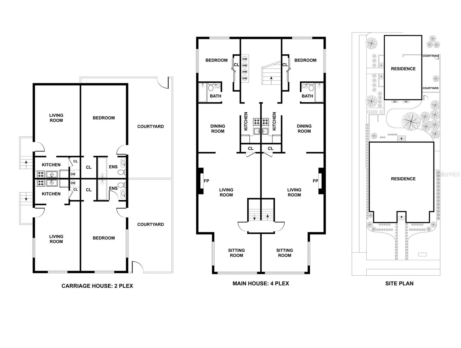
A+ LOCATION *Beautiful Designer Rental* Operating 6-plex fully rented in downtown New Smyrna Beach. Located just one block of Canal Street, and two blocks from the Intracoastal, this remodeled building in the heart of downtown is ready to go! Tenants enjoy a beautiful, private living space with access to the shared courtyard, and onsite laundry facilities. Walk to all shopping and Dining, and the beach is only a 9 minute bike ride away. This unique location is AirBnB Legal, and allows for nightly, weekly, monthly, yearly rentals! Turn up the income by operating as an AirBnB!
Financial Considerations
Price:
$1,375,000
HOA Fee:
N/A
Tax Amount:
$9901
Price per SqFt:
$312.22
Tax Legal Description:
LOT 211 BLK 15 ANDREWS NEW SMYRNA PER OR 3068 PG 1082 PER OR 7276 PG 3178 PER OR 7302 PG 0347
Exterior Features
Lot Size:
15000
Lot Features:
Corner Lot, City Limits
Waterfront:
No
Parking Spaces:
N/A
Parking:
On Street
Roof:
Metal
Pool:
No
Pool Features:
Other
Interior Features
Bedrooms:
6
Bathrooms:
6
Heating:
Electric, Other, Wall Units / Window Unit
Cooling:
Ductless
Appliances:
Range, Refrigerator
Furnished:
Yes
Floor:
Tile, Wood
Levels:
N/A
Additional Features
Property Sub Type:
Multi Family
Style:
N/A
Year Built:
1922
Construction Type:
HardiPlank Type
Garage Spaces:
No
Covered Spaces:
N/A
Direction Faces:
N/A
Pets Allowed:
No
Special Condition:
None
Additional Features:
Irrigation System, Private Mailbox, Sidewalk
Additional Features 2:
N/A
Map
  • Address
    201 PALMETTO ST
Contact a Professional
Why Choose Us?
  • Communication and Transparency
  • Skilled Negotiation
  • Robust Professional Network
  • After-Sale Support
Featured Properties

Related Properties

avt
Daniel Dourado
$ 950,000
avt
Daniel Dourado
$ 2,800,000
avt
Daniel Dourado
$ 2,500,000
avt
Daniel Dourado
$ 399,900
avt
Daniel Dourado
$ 749,000
avt
Daniel Dourado
$ 3,800,000
avt
Daniel Dourado
$ 1,050,000
avt
Daniel Dourado
$ 1,350,000
avt
Daniel Dourado
$ 2,100,000
avt
Daniel Dourado
$ 219,000
avt
Daniel Dourado
$ 629,000
avt
Daniel Dourado
$ 8,900,000