Active

$260,000

Features:
  • 3 Bedrooms
  • 2 Bathrooms
  • 1128 sq ft
Overview
  • ID: MFRTB8389769
  • Bedrooms: 3
  • Bathrooms: 2
  • Size: 1128 sq ft
Property Details
Remarks
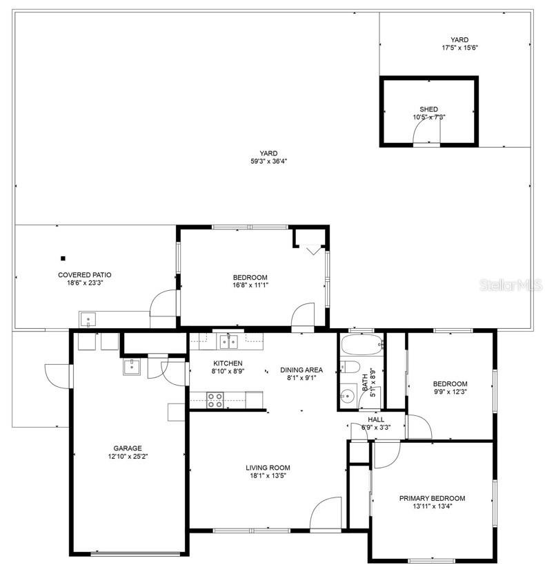
One or more photo(s) has been virtually staged. In mint condition and with a new roof from 2025, this 3/2 block house with attached garage in a NO flood zone is the perfect combination of functionality, charm and peace of mind. The inviting front porch offers 120 sq ft of shaded, screened in area to peacefully sip your coffee in the mornings. The spacious living room seamlessly continues into the dinning area located in front of the kitchen. Fully equipped, the kitchen features granite countertops and plenty of cabinet space. With 2 bedrooms on one side of the house, and the 3rd bedroom at the back, the layout is not only functional, it also provides convenience and privacy! The laundry room is located in the attached garage, just off the kitchen, and it includes a newer set of full size front-load washer and dryer. The second bathroom with shower is also in the spacious garage. The fenced-in backyard is accessible through the garage or through the back bedroom, and it has a 18x23 covered patio featuring counterspace and a deep utility sink. A well-maintained shed (10'5"x7'3") to store all your yard tools and equipment completes this perfect home. Ample parking space in the paved driveway and garage. Situated just minutes from U.S. Highway 19, Colonial Hills provides convenient access to shopping centers, dining options, and Gulf Coast beaches. Nature enthusiasts will appreciate the close proximity to Eagle Point Park, a 17-acre coastal preserve featuring trails, fishing piers, and kayak launches. Peaceful, family-friendly atmosphere, affordable homeownership, NO HOA fees and NO flood zone are just some of the compelling benefits of this home. Ask about special financing options that may make this home more affordable—programs available for qualified buyers. Consult your lender for eligibility and payment estimates or contact us to get connected with a trusted lender.
Financial Considerations
Price:
$260,000
HOA Fee:
N/A
Tax Amount:
$3092
Price per SqFt:
$230.5
Tax Legal Description:
COLONIAL HILLS UNIT 4 PB 9 PGS 100 & 101 LOT 428
Exterior Features
Lot Size:
5333
Lot Features:
N/A
Waterfront:
No
Parking Spaces:
N/A
Parking:
N/A
Roof:
Shingle
Pool:
No
Pool Features:
N/A
Interior Features
Bedrooms:
3
Bathrooms:
2
Heating:
Central
Cooling:
Central Air
Appliances:
Dishwasher, Disposal, Dryer, Microwave, Range, Refrigerator, Washer
Furnished:
No
Floor:
Laminate, Tile
Levels:
One
Additional Features
Property Sub Type:
Single Family Residence
Style:
N/A
Year Built:
1970
Construction Type:
Block
Garage Spaces:
Yes
Covered Spaces:
N/A
Direction Faces:
South
Pets Allowed:
No
Special Condition:
None
Additional Features:
Storage
Additional Features 2:
N/A
Map
  • Address
    5027 OVERTON DR
Contact a Professional
Why Choose Us?
  • Communication and Transparency
  • Skilled Negotiation
  • Robust Professional Network
  • After-Sale Support
Featured Properties

Related Properties

avt
Daniel Dourado
$ 390,000
avt
Daniel Dourado
$ 512,150
avt
Daniel Dourado
$ 391,109
avt
Daniel Dourado
$ 460,000
avt
Daniel Dourado
$ 325,000
avt
Daniel Dourado
$ 250,000
avt
Daniel Dourado
$ 3,490,000
avt
Daniel Dourado
$ 379,870
avt
Daniel Dourado
$ 339,000
avt
Daniel Dourado
$ 540,000