Active

$379,900

Features:
  • 3 Bedrooms
  • 2 Bathrooms
  • 1709 sq ft
Overview
  • ID: MFRTB8322918
  • Bedrooms: 3
  • Bathrooms: 2
  • Size: 1709 sq ft
Property Details
Remarks
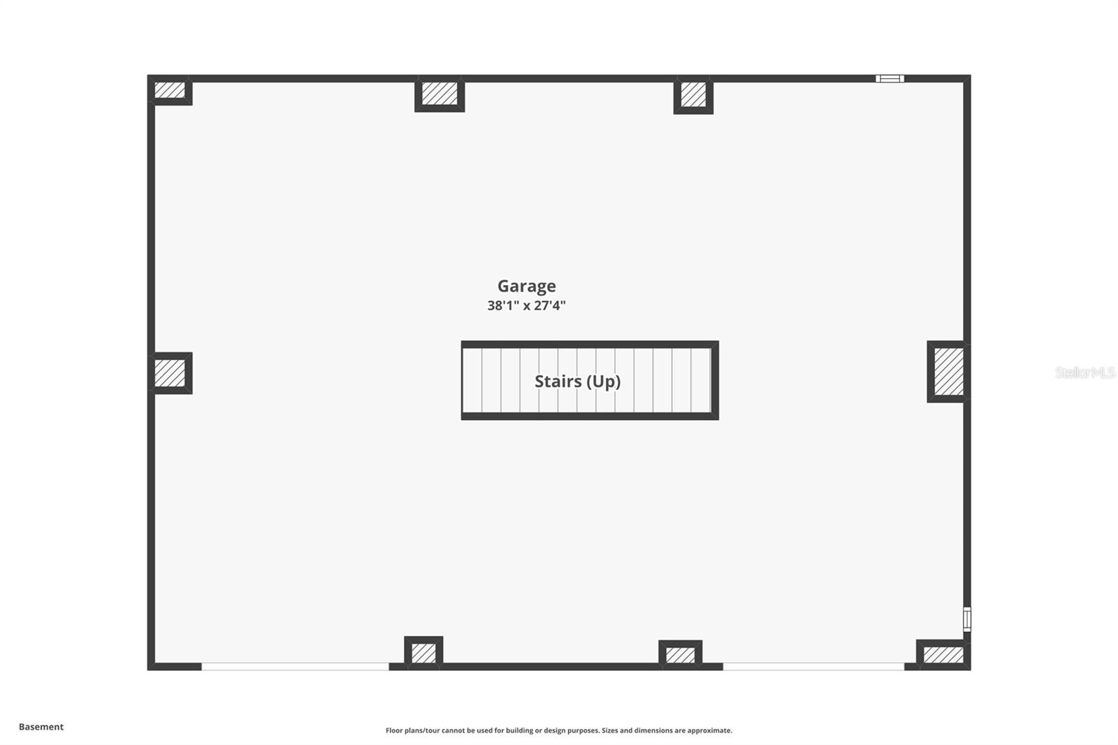
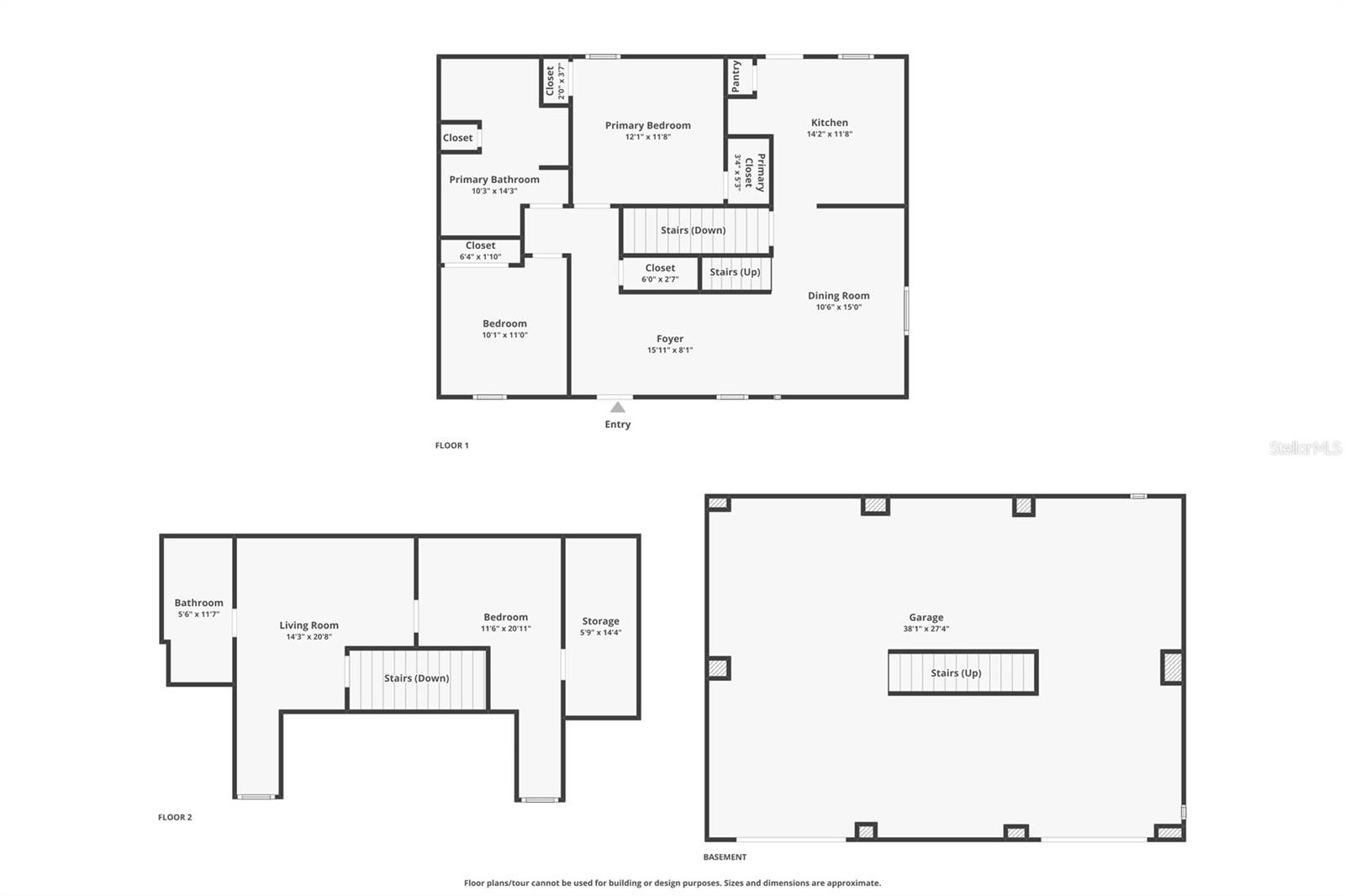
**Motivated Seller!** Gulf Harbors – *No flood insurance required.* This elevated coastal home is built with concrete to the roofline for exceptional hurricane protection and peace of mind. Enjoy stunning ocean views from this 3-bedroom, 2-bath home featuring an oversized garage and fresh coastal breezes from the upper levels. The spacious 3-level layout includes a large ground-floor garage with abundant storage and an extended driveway for additional parking. A **NEW ROOF** adds long-term durability, and the top floor offers breathtaking water views perfect for relaxing after a day at the beach. Optional membership to the Gulf Harbors Civic Association and Beach Club provides access to tennis courts, parks, boat ramps, a private beach, and golf cart–friendly community living. Whether you're seeking a full-time coastal lifestyle or the perfect vacation escape, this home delivers safety, convenience, and beautiful ocean-side living—all just steps from the water. **Don’t miss this coastal gem—Motivated Seller!**
Financial Considerations
Price:
$379,900
HOA Fee:
10
Tax Amount:
$5083.91
Price per SqFt:
$222.29
Tax Legal Description:
FLORAMAR SECTION 18-B PB 11 PG 112 BLOCK 2 LOT 67
Exterior Features
Lot Size:
5967
Lot Features:
N/A
Waterfront:
No
Parking Spaces:
N/A
Parking:
N/A
Roof:
Shingle
Pool:
No
Pool Features:
N/A
Interior Features
Bedrooms:
3
Bathrooms:
2
Heating:
Central
Cooling:
Central Air
Appliances:
Convection Oven, Dishwasher, Dryer, Electric Water Heater, Refrigerator, Washer
Furnished:
No
Floor:
Carpet, Ceramic Tile, Laminate
Levels:
Multi/Split
Additional Features
Property Sub Type:
Single Family Residence
Style:
N/A
Year Built:
2013
Construction Type:
Block
Garage Spaces:
Yes
Covered Spaces:
N/A
Direction Faces:
North
Pets Allowed:
No
Special Condition:
None
Additional Features:
Balcony
Additional Features 2:
N/A
Map
  • Address
    4148 RUDDER WAY
Contact a Professional
Why Choose Us?
  • Communication and Transparency
  • Skilled Negotiation
  • Robust Professional Network
  • After-Sale Support
Featured Properties

Related Properties

avt
Daniel Dourado
$ 346,400
avt
Daniel Dourado
$ 220,000
avt
Daniel Dourado
$ 384,410
avt
Daniel Dourado
$ 505,990
avt
Daniel Dourado
$ 355,000
avt
Daniel Dourado
$ 1,640,000
avt
Daniel Dourado
$ 549,900
avt
Daniel Dourado
$ 390,000
avt
Daniel Dourado
$ 1,794,000