Active

$2,999,990

Features:
  • 5 Bedrooms
  • 6 Bathrooms
  • 4548 sq ft
Overview
  • ID: MFRTB8492892
  • Bedrooms: 5
  • Bathrooms: 6
  • Size: 4548 sq ft
Property Details
Remarks
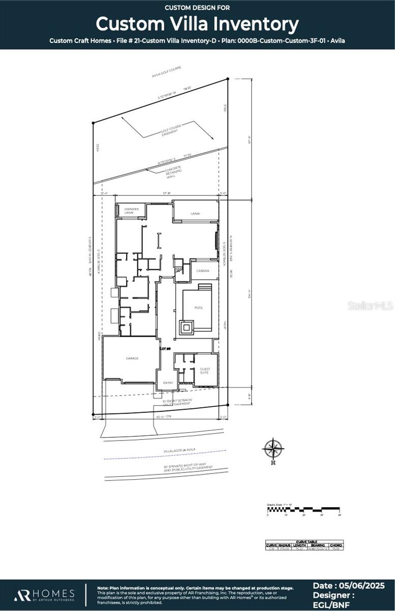
Pre-Construction. To be built. Private Collection Custom Spanish-Mission Style Luxury Villa by AR Homes (Arthur Rutenberg) on the Golf Course in Avila - Wake up to sweeping golf course and water views as you build your custom dream home in Avila, one of Tampa Bay’s most sought-after guard-gated communities. Perfectly positioned along the 2nd tee box, this custom-designed villa offers a rare blend of privacy, scenery, and timeless design. At the heart of the home, a private interior courtyard creates a true resort-like setting, featuring a pool, spa, and outdoor kitchen designed for year-round Florida living. Inside, a well-designed layout includes a luxurious owner’s retreat, private guest suite/casita, expansive great room, and second-floor bonus space, offering flexibility for family and guests. This home is part of AR Homes’ Private Collection, representing their highest level of design, finishes, and craftsmanship—featuring a chef’s kitchen with Wolf and Sub-Zero appliances, a dedicated wine storage feature, and a curated selection of high-end materials throughout. Permit has been approved, allowing a faster path to construction. There is still time for a buyer to personalize selections and tailor the home to their individual style. This is a unique opportunity to own a custom home on the golf course in Avila—combining location, design, and personalization in a way that is rarely available. Contact the listing agent for full specifications, design options, and timeline details.
Financial Considerations
Price:
$2,999,990
HOA Fee:
8422
Tax Amount:
$5393.93
Price per SqFt:
$659.63
Tax Legal Description:
AVILA UNIT NO 11G LOT 8 BLOCK 1
Exterior Features
Lot Size:
13068
Lot Features:
N/A
Waterfront:
No
Parking Spaces:
N/A
Parking:
N/A
Roof:
Tile
Pool:
Yes
Pool Features:
In Ground
Interior Features
Bedrooms:
5
Bathrooms:
6
Heating:
Electric
Cooling:
Central Air
Appliances:
Dishwasher, Disposal, Range, Range Hood, Refrigerator, Wine Refrigerator
Furnished:
Yes
Floor:
Hardwood
Levels:
Two
Additional Features
Property Sub Type:
Villa
Style:
N/A
Year Built:
2026
Construction Type:
Block
Garage Spaces:
Yes
Covered Spaces:
N/A
Direction Faces:
North
Pets Allowed:
Yes
Special Condition:
None
Additional Features:
Balcony, Courtyard, Private Entrance
Additional Features 2:
https://avilaproperty.org/wp-content/uploads/2023/04/Rules-and-Regulations-Approved-at-annual-meeting-03242022.pdf
Map
  • Address
    16912 VILLALAGOS DE AVILA
Contact a Professional
Why Choose Us?
  • Communication and Transparency
  • Skilled Negotiation
  • Robust Professional Network
  • After-Sale Support
Featured Properties

Related Properties

avt
Daniel Dourado
$ 399,990
img
  • Featured
  • Active
Villa

5514 MAGGIORE BLVD

  • 3
  • 2
  • 125 m²
avt
Daniel Dourado
$ 260,000
img
  • Featured
  • Active
Villa

1720 NE 38 AVE

  • 3
  • 2
  • 143 m²
avt
Daniel Dourado
$ 219,000
img
  • Featured
  • Active
Villa

2126 PARROT FISH DR

  • 3
  • 4
  • 161 m²
avt
Daniel Dourado
$ 353,999
img
  • Featured
  • Active
Villa

2130 BANCROFT PL #E

  • 2
  • 2
  • 95 m²
avt
Daniel Dourado
$ 235,000
img
  • Featured
  • Active
Villa

5721 HERONPARK PL

  • 3
  • 2
  • 159 m²
avt
Daniel Dourado
$ 398,000
img
  • Featured
  • Active
Villa

2376 BRANCHVILLE TER

  • 2
  • 2
  • 107 m²
avt
Daniel Dourado
$ 259,000
img
  • Featured
  • Active
Villa

4530 ATWOOD CAY CIR #13

  • 3
  • 2
  • 167 m²
avt
Daniel Dourado
$ 299,000
img
  • Featured
  • Active
Villa

7160 FAIRWAY BEND CIR

  • 2
  • 2
  • 163 m²
avt
Daniel Dourado
$ 339,000
avt
Daniel Dourado
$ 350,000
img
  • Featured
  • Active
Villa

6600 100TH WAY N #24B

  • 3
  • 2
  • 155 m²
avt
Daniel Dourado
$ 395,000
img
  • Featured
  • Active
Villa

17431 SE 93RD RETFORD TER

  • 2
  • 2
  • 107 m²
avt
Daniel Dourado
$ 274,000