Active

$349,900

Features:
  • 3 Bedrooms
  • 2 Bathrooms
  • 1601 sq ft
Overview
  • ID: MFRO6378396
  • Bedrooms: 3
  • Bathrooms: 2
  • Size: 1601 sq ft
Property Details
Remarks
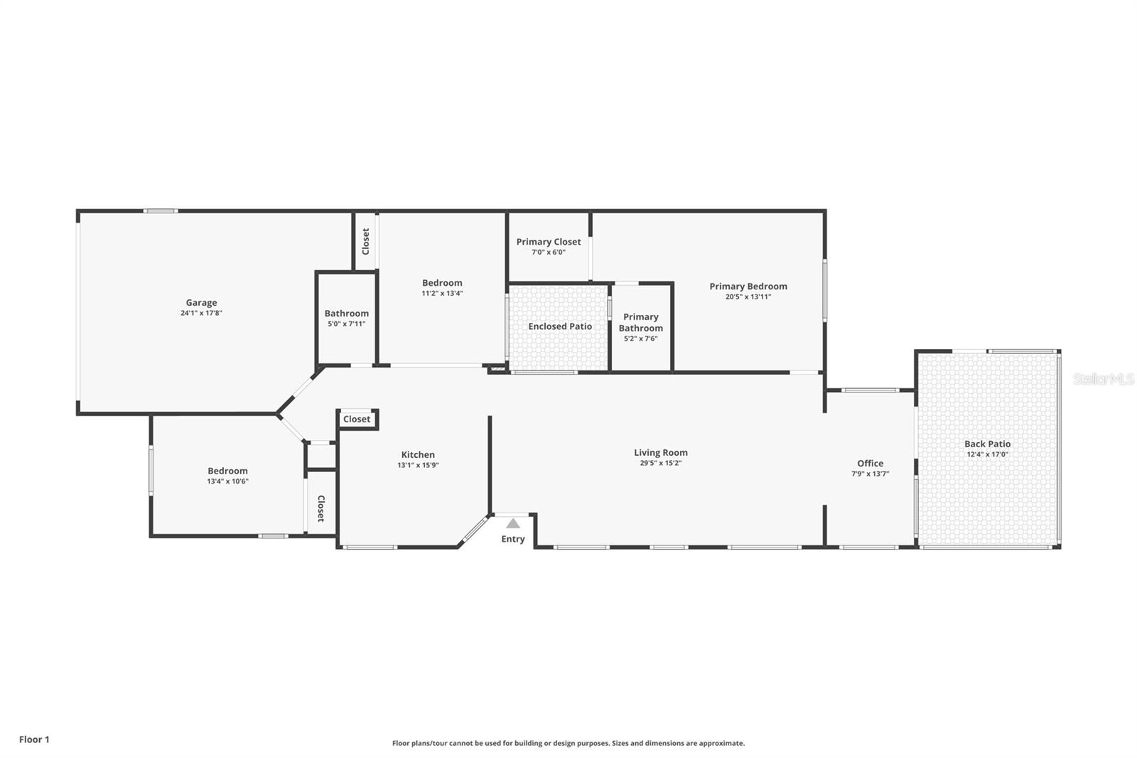
One or more photo(s) has been virtually staged. Low-maintenance living awaits in Longwood’s charming Danbury Mill community, where this meticulously maintained and truly move-in-ready townhome offers the rare convenience of a TWO-CAR GARAGE, a private SCREENED LANAI, and a FULLY FENCED BACKYARD—perfect for relaxing or entertaining; inside, you’ll be welcomed by a bright, functional floor plan with soaring vaulted ceilings and a stunning atrium that floods the home with natural light, while porcelain tile floors throughout the living areas provide both durability and easy maintenance. The well-appointed kitchen is designed to impress, featuring timeless cabinetry, ample granite counter space, stainless steel appliances, and a large eat-at island ideal for gathering with family and guests. The spacious primary suite offers a peaceful retreat with abundant natural light, a walk-in closet, and a beautifully appointed en-suite bath. Residents of Danbury Mill enjoy a low HOA and access to community amenities including a pool, tennis and pickleball courts, all within a quiet and friendly neighborhood setting. Located in a premier area known for its A-rated Seminole County Public School district, Woodlands Elementary, Markham Middle and Lake Mary High makes this home a fantastic find for families. Perfectly positioned between Lake Mary and Longwood SunRail Station for effortless commuting, the Historic Longwood District and Farmers Market, as well as abundant shopping and dining options, this home also offers quick access to I-4, SR 434, and HWY 17/92 for easy travel throughout Central Florida and is zoned for top-rated Seminole County schools, making it the perfect blend of comfort, convenience, and lifestyle.
Financial Considerations
Price:
$349,900
HOA Fee:
208.79
Tax Amount:
$696.83
Price per SqFt:
$218.55
Tax Legal Description:
LOT 120 DANBURY MILL UNIT 3A PB 35 PGS 30 & 31
Exterior Features
Lot Size:
5956
Lot Features:
N/A
Waterfront:
No
Parking Spaces:
N/A
Parking:
N/A
Roof:
Shingle
Pool:
No
Pool Features:
N/A
Interior Features
Bedrooms:
3
Bathrooms:
2
Heating:
Central, Electric
Cooling:
Central Air
Appliances:
Dishwasher, Disposal, Microwave, Range, Refrigerator
Furnished:
Yes
Floor:
Carpet, Tile
Levels:
One
Additional Features
Property Sub Type:
Townhouse
Style:
N/A
Year Built:
1987
Construction Type:
Frame
Garage Spaces:
Yes
Covered Spaces:
N/A
Direction Faces:
South
Pets Allowed:
Yes
Special Condition:
None
Additional Features:
Sliding Doors
Additional Features 2:
Lease restrictions are to the best knowledge of homeowner and listing agent. Buyers are responsible to confirm by referencing the HOA CCR, contacting the HOA management company and/or municipality.
Map
  • Address
    971 MALDEN CT
Contact a Professional
Why Choose Us?
  • Communication and Transparency
  • Skilled Negotiation
  • Robust Professional Network
  • After-Sale Support
Featured Properties

Related Properties

img
  • Featured
  • Active
Townhouse

20424 NEEDLETREE DR

  • 3
  • 3
  • 130 m²
avt
Daniel Dourado
$ 279,000
avt
Daniel Dourado
$ 388,000
img
  • Featured
  • Active
Townhouse

8809 CASABLANCA WAY

  • 2
  • 3
  • 127 m²
avt
Daniel Dourado
$ 342,000
avt
Daniel Dourado
$ 399,000
avt
Daniel Dourado
$ 310,000
avt
Daniel Dourado
$ 419,000
img
  • Featured
  • Active
Townhouse

17340 CHATEAU PINE WAY

  • 2
  • 2
  • 117 m²
avt
Daniel Dourado
$ 279,900
img
  • Featured
  • Active
Townhouse

1758 KENDALL POINTE PL

  • 3
  • 3
  • 155 m²
avt
Daniel Dourado
$ 299,990
img
  • Featured
  • Active
Townhouse

1788 KENDALL POINTE PL

  • 3
  • 3
  • 155 m²
avt
Daniel Dourado
$ 299,990
avt
Daniel Dourado
$ 465,000
img
  • Featured
  • Active
Townhouse

2445 MAGNOLIA RESERVE RD

  • 3
  • 3
  • 162 m²
avt
Daniel Dourado
$ 377,990
img
  • Featured
  • Active
Townhouse

1685 GREENLEAF WOODS CV

  • 3
  • 3
  • 142 m²
avt
Daniel Dourado
$ 399,990