Active

$450,000

Features:
  • Bedrooms
  • 0 Bathrooms
  • 1242 sq ft
Overview
  • ID: MFRG5092943
  • Bedrooms:
  • Bathrooms: 0
  • Size: 1242 sq ft
Property Details
Remarks
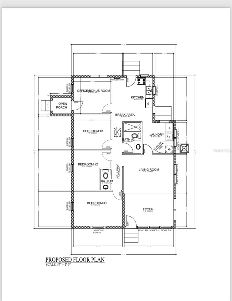
Under Construction. ARE YOU LOOKING A PLACE TO BUILD YOUR BUSINESS WITH HIGHWAY FRONTAGE AND GREAT PARKING!! LOOK AT THIS OPPORTUNITY! YOU CAN MAKE THIS ONE JUST THE WAY, YOU WANT IT!! This versatile 1,242 sq. ft. commercial building on a .27-acre lot offers a rare opportunity to create your ideal business space in a prime location just off Highway 441, with additional access from Old Tavares Road. Perfect for a range of uses including professional offices, medical practices, AC retail, contractor storage yard, warehouse, or other multi-use businesses. The interior layout includes four private offices, two restrooms, a welcoming lobby, and a break room. Plumbing and electrical have already been completed, and the space is ready for you to bring your vision to life. With ample parking, excellent visibility, and flexible potential, this property is ready for you to make it your own and customize it to suit your unique needs.
Financial Considerations
Price:
$450,000
HOA Fee:
N/A
Tax Amount:
$2003.69
Price per SqFt:
$362.32
Tax Legal Description:
FROM SE COR OF SEC RUN N 0-10-0 E LONG E LINE OF SEC A DIST OF 830.60 FT N 89-54-40 W 750 FT FOR POB RUN N 0-10-0 E TO A POINT ON S'LY R/W LINE OF US HWY 441 & PT A BEGIN AGAIN AT POB RUN N 89-54-40 W 75 FT N 0-10-0 E TO S'LY R/W LINE OF US HWY 441 E'LY ALONG SAID R/W LINE TO PT A--LESS RD R/W ON SOUTH SIDE THEREOF-- ORB 2305 PG 316
Exterior Features
Lot Size:
11761
Lot Features:
N/A
Waterfront:
No
Parking Spaces:
N/A
Parking:
Parking Spaces - 1 to 5
Roof:
N/A
Pool:
No
Pool Features:
N/A
Interior Features
Bedrooms:
Bathrooms:
0
Heating:
Central
Cooling:
Central Air
Appliances:
N/A
Furnished:
No
Floor:
Other
Levels:
N/A
Additional Features
Property Sub Type:
Mixed Use
Style:
N/A
Year Built:
1950
Construction Type:
Block, Stucco
Garage Spaces:
No
Covered Spaces:
N/A
Direction Faces:
N/A
Pets Allowed:
No
Special Condition:
None
Additional Features:
N/A
Additional Features 2:
N/A
Map
  • Address
    1821 US HIGHWAY 441
Contact a Professional
Why Choose Us?
  • Communication and Transparency
  • Skilled Negotiation
  • Robust Professional Network
  • After-Sale Support
Featured Properties

Related Properties

avt
Daniel Dourado
$ 2,400,000
avt
Daniel Dourado
$ 450,000
avt
Daniel Dourado
$ 450,000
avt
Daniel Dourado
$ 1,400,000
avt
Daniel Dourado
$ 3,500,000
img
  • Featured
  • Active
Mixed Use

PR 181 Km 4.8 BO. LAS CUEVAS

  • 0
  • 0 m²
avt
Daniel Dourado
$ 1,400,000
avt
Daniel Dourado
$ 1,070,000
img
  • Featured
  • Active
Mixed Use

689 DR MARTIN LUTHER KING JR ST N

  • 0
  • 585 m²
avt
Daniel Dourado
$ 2,050,000
avt
Daniel Dourado
$ 899,999
avt
Daniel Dourado
$ 485,000
avt
Daniel Dourado
$ 325,000
avt
Daniel Dourado
$ 450,000