Active

$799,900

Features:
  • 5 Bedrooms
  • 5 Bathrooms
  • 4221 sq ft
Overview
  • ID: MFRTB8469025
  • Bedrooms: 5
  • Bathrooms: 5
  • Size: 4221 sq ft
Property Details
Remarks
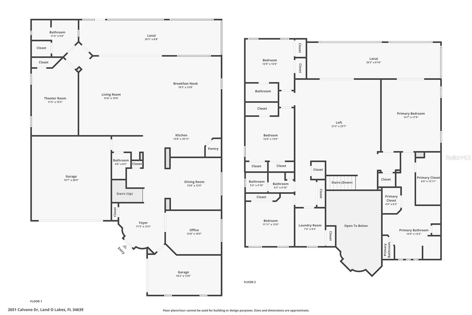
This impressive five-bedroom, five-bath executive residence offers a rare combination of architectural presence, thoughtful design, and everyday livability in the sought-after Enclave at Terra Bella. From the moment you enter, soaring ceilings, a sweeping staircase, and abundant natural light create a sense of scale and sophistication. Designed for both productivity and relaxation, the home features a private office, formal dining space, and expansive open-concept living areas ideal for entertaining. The gourmet kitchen anchors the home with an oversized center island, walk-in pantry, and carefully selected finishes that blend style with function. A dedicated theater room provides a true cinematic escape, while generously sized bedrooms and flexible living spaces accommodate a variety of lifestyles. Enjoy seamless indoor-outdoor living with a covered main-level lanai and a second-story lanai, offering multiple spaces to unwind or host guests. Located in a quiet, amenity-rich community with a resort-style pool and clubhouse, and just minutes from Tampa Premium Outlets, Wiregrass Mall, dining, entertainment, and major commuter routes, this home delivers comfort, convenience, and elevated living.
Financial Considerations
Price:
$799,900
HOA Fee:
60
Tax Amount:
$9221
Price per SqFt:
$189.5
Tax Legal Description:
ENCLAVE AT TERRA BELLA PHASES 2 3 AND 4 PB 67 PG 019 LOT 75 OR 9012 PG 1031
Exterior Features
Lot Size:
7784
Lot Features:
N/A
Waterfront:
No
Parking Spaces:
N/A
Parking:
Garage
Roof:
Concrete
Pool:
No
Pool Features:
N/A
Interior Features
Bedrooms:
5
Bathrooms:
5
Heating:
Central, Natural Gas
Cooling:
Central Air
Appliances:
Dishwasher, Refrigerator
Furnished:
Yes
Floor:
Carpet, Tile, Wood
Levels:
Two
Additional Features
Property Sub Type:
Single Family Residence
Style:
N/A
Year Built:
2014
Construction Type:
Stucco
Garage Spaces:
Yes
Covered Spaces:
N/A
Direction Faces:
East
Pets Allowed:
Yes
Special Condition:
None
Additional Features:
None
Additional Features 2:
Please contact HOA for Leasing Restrictions/Requirements. Buyer to confirm with HOA ,Bylaws & Restrictions.
Map
  • Address
    2651 CALVANO DR
Contact a Professional
Why Choose Us?
  • Communication and Transparency
  • Skilled Negotiation
  • Robust Professional Network
  • After-Sale Support
Featured Properties

Related Properties

avt
Daniel Dourado
$ 985,000
avt
Daniel Dourado
$ 375,000
avt
Daniel Dourado
$ 375,000
avt
Daniel Dourado
$ 350,000
avt
Daniel Dourado
$ 364,900
avt
Daniel Dourado
$ 300,000
avt
Daniel Dourado
$ 225,000
avt
Daniel Dourado
$ 525,000