Active

$312,990

Features:
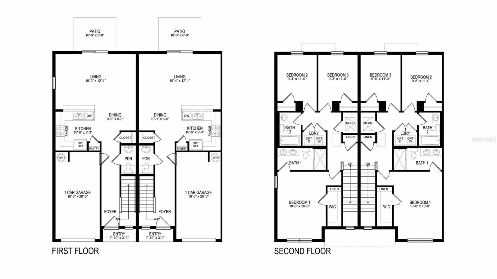
  • 3 Bedrooms
  • 3 Bathrooms
  • 1463 sq ft
Overview
  • ID: MFRTB8467588
  • Bedrooms: 3
  • Bathrooms: 3
  • Size: 1463 sq ft
Property Details
Remarks
Under Construction. The builder is offering buyers up to $25,000 towards closing costs with the use of a preferred lender and title company. Located off Tower Rd, Westwood brings new homes to Land O’ Lakes and is just minutes from the Suncoast parkway. The community, located in a very desirable area, offers a pool, cabana, playground, dog park, passive park, and paved trails. Homeowners will have access to a multitude of excellent conveniences, including close proximity to State Road 54, shopping, restaurants, and of course, the Suncoast Parkway. The Tampa airport and downtown Tampa are both just a short 30-minute drive away. The zoned schools are all excellently rated and not far from the community. Westwood will feature our Express series townhomes. Each home is constructed with all concrete block construction on 1st and 2nd stories and Home is Connected; D.R. Horton’s Smart Home System. Pictures, photographs, colors, features, and sizes are for illustration purposes only and will vary from the homes as built. Home and community information, including pricing, included features, terms, availability, and amenities, are subject to change and prior sale at any time without notice or obligation. Materials may vary based on availability. D.R. Horton Reserves all Rights.
Financial Considerations
Price:
$312,990
HOA Fee:
58
Tax Amount:
$0
Price per SqFt:
$213.94
Tax Legal Description:
SALEM TOWNHOMES PB 91 PG 121 LOT 309
Exterior Features
Lot Size:
0
Lot Features:
N/A
Waterfront:
No
Parking Spaces:
N/A
Parking:
Parking Pad
Roof:
Shingle
Pool:
No
Pool Features:
N/A
Interior Features
Bedrooms:
3
Bathrooms:
3
Heating:
Central, Heat Pump
Cooling:
Central Air
Appliances:
Dishwasher, Electric Water Heater, Microwave, Refrigerator, Washer
Furnished:
Yes
Floor:
Carpet, Luxury Vinyl
Levels:
Two
Additional Features
Property Sub Type:
Townhouse
Style:
N/A
Year Built:
2026
Construction Type:
Block, Stucco
Garage Spaces:
Yes
Covered Spaces:
N/A
Direction Faces:
Northwest
Pets Allowed:
Yes
Special Condition:
None
Additional Features:
N/A
Additional Features 2:
Per HOA Guidelines
Map
  • Address
    17502 SPANISH OAK LOOP
Contact a Professional
Why Choose Us?
  • Communication and Transparency
  • Skilled Negotiation
  • Robust Professional Network
  • After-Sale Support
Featured Properties

Related Properties

img
  • Featured
  • Active
Townhouse

6701 MAGNOLIA POINTE CIR

  • 3
  • 2
  • 96 m²
avt
Daniel Dourado
$ 215,000
avt
Daniel Dourado
$ 295,000
avt
Daniel Dourado
$ 362,990
avt
Daniel Dourado
$ 435,000
img
  • Featured
  • Active
Townhouse

2810 W BARCELONA ST

  • 3
  • 5
  • 335 m²
avt
Daniel Dourado
$ 2,049,900
avt
Daniel Dourado
$ 1,150,000
avt
Daniel Dourado
$ 249,990
avt
Daniel Dourado
$ 363,990
avt
Daniel Dourado
$ 355,000
avt
Daniel Dourado
$ 336,990
avt
Daniel Dourado
$ 312,990
avt
Daniel Dourado
$ 279,990