Active

$439,950

Features:
  • 3 Bedrooms
  • 2 Bathrooms
  • 1629 sq ft
Overview
  • ID: MFRL4959814
  • Bedrooms: 3
  • Bathrooms: 2
  • Size: 1629 sq ft
Property Details
Remarks
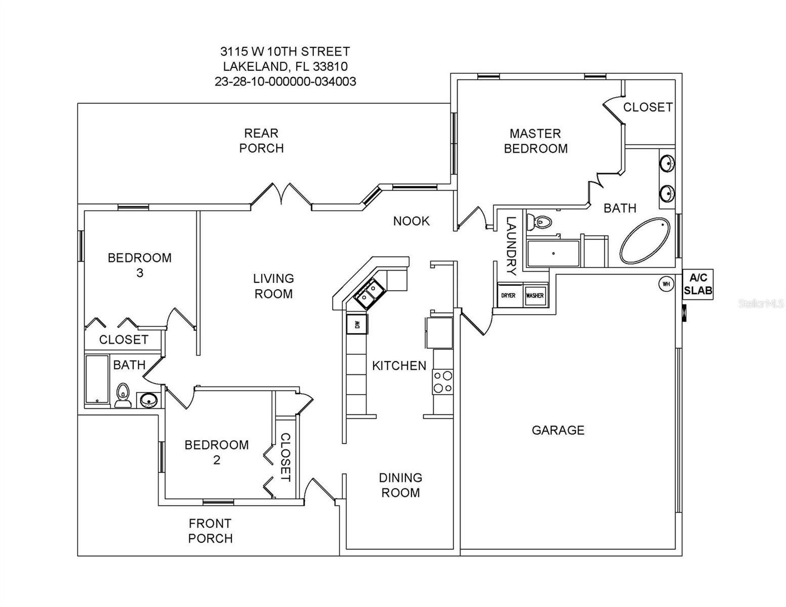
Enjoy the perfect blend of modern updates and peaceful country living in this newly renovated home situated on 1.4 fenced acres in North Lakeland - with NO HOA! Inside, the home shines with thoughtful upgrades throughout. The brand-new kitchen features stainless steel appliances, quartz countertops, and all-new cabinetry, creating a fresh and functional heart of the home. Living areas showcase new luxury vinyl plank flooring, while bedrooms offer comfortable new carpet and the updated bathrooms feature new floor and shower tile. The spacious primary suite is filled with natural light from large windows and includes a beautifully updated ensuite bathroom with a relaxing garden tub, dual-sink vanity, and abundant storage space. Outdoor living is just as impressive, with a large covered front porch, side porch, and an expansive covered back porch - perfect for entertaining or enjoying quiet evenings. French doors from the living room provide seamless access to the back porch. Additional conveniences include an interior laundry room and a side-entry garage. The property offers exceptional flexibility, featuring a large detached metal pole barn ideal for a RV carport (RV hookups available), workshop, storage, or hobby space. The property line extends approximately 70 feet beyond the chain link fence at the back of the property and has been cleared while preserving the beauty and shade of mature trees. With space, upgrades, and versatility, this property offers a rare opportunity to enjoy modern comfort on a generous piece of land! USDA FINANCING AVAILABLE FOR ELIGIBLE BUYERS, WITH NO MONEY DOWN. CALL TODAY FOR MORE DETAILS.
Financial Considerations
Price:
$439,950
HOA Fee:
N/A
Tax Amount:
$1389
Price per SqFt:
$270.07
Tax Legal Description:
S1/2 OF E 3 ACRES OF SW1/4 OF SW1/4 OF NW1/4 LESS R/W FOR S-542A
Exterior Features
Lot Size:
61128
Lot Features:
N/A
Waterfront:
No
Parking Spaces:
N/A
Parking:
Garage Faces Side
Roof:
Shingle
Pool:
No
Pool Features:
N/A
Interior Features
Bedrooms:
3
Bathrooms:
2
Heating:
Central
Cooling:
Central Air
Appliances:
Dishwasher, Electric Water Heater, Microwave, Range, Refrigerator
Furnished:
Yes
Floor:
Carpet, Luxury Vinyl, Tile
Levels:
One
Additional Features
Property Sub Type:
Single Family Residence
Style:
N/A
Year Built:
1993
Construction Type:
Block
Garage Spaces:
Yes
Covered Spaces:
N/A
Direction Faces:
South
Pets Allowed:
No
Special Condition:
None
Additional Features:
Other, Storage
Additional Features 2:
N/A
Map
  • Address
    3115 W 10TH ST
Contact a Professional
Why Choose Us?
  • Communication and Transparency
  • Skilled Negotiation
  • Robust Professional Network
  • After-Sale Support
Featured Properties

Related Properties

avt
Daniel Dourado
$ 835,000
avt
Daniel Dourado
$ 299,900
avt
Daniel Dourado
$ 406,990
avt
Daniel Dourado
$ 249,900
avt
Daniel Dourado
$ 320,000
avt
Daniel Dourado
$ 335,000
avt
Daniel Dourado
$ 1,079,000
avt
Daniel Dourado
$ 784,990
avt
Daniel Dourado
$ 299,000
avt
Daniel Dourado
$ 668,175