Active

$449,900

Features:
  • 2 Bedrooms
  • 2 Bathrooms
  • 1503 sq ft
Overview
  • ID: MFRS5107112
  • Bedrooms: 2
  • Bathrooms: 2
  • Size: 1503 sq ft
Property Details
Remarks
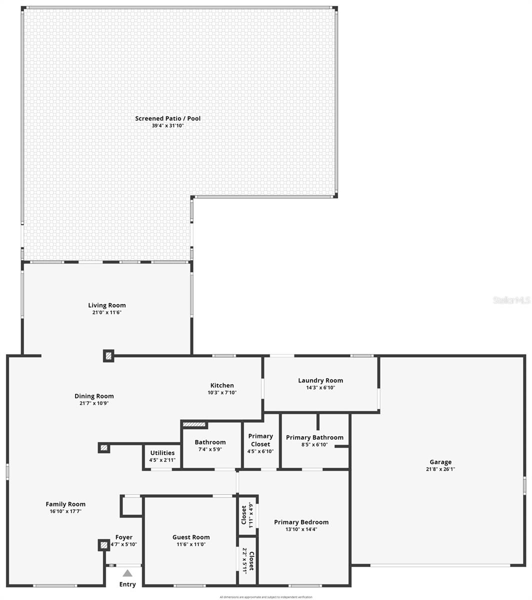
NOW IS THE TIME - THIS PROPERTY HAS BEEN WAITING FOR YOU! CYPRESS SHORES - WATERFRONT HOME with a neighborhood PRIVATE BOAT RAMP on LAKE TOHO - CYPRESS SHORES Embrace waterfront living at its finest in this exquisite canal-front residence! This single-story gem boasts 2 large bedrooms, 2 bathrooms, and a screened pool with a relaxing lanai overlooking the tranquil waters. Situated on an oversized lot(0.47 Acres) in a peaceful neighborhood without HOA restrictions, this home offers direct access to Lake Toho and the Kissimmee Chain of Lakes for endless aquatic excursions. With plentiful parking space and a 2-car garage, convenience is key. Enjoy the best of both worlds with close proximity to Kissimmee and St. Cloud, as well as easy access to the Turnpike for seamless commuting. Inside, revel in the elegance of Brazilian Cherry wood flooring, crown molding, neutral paint colors and ceiling fans in every room, enhancing the ambiance of this serene abode. Unwind in the spacious living room or family room, and savor the stunning views and sunsets from the outdoor patio. With modern amenities like an inside laundry/utility room, this home offers a perfect blend of comfort and sophistication for your waterfront oasis. Situated in an established neighborhood, this home is conveniently located close to restaurants, shopping, popular travel routes, area attractions, beaches, NEO City and the Orlando International Airport. Don’t miss the opportunity to own a piece of paradise where every detail is designed for your utmost comfort and convenience. All measurements are approximate and to be independently verified by buyer ROOF(2014) - WATER KINETICO WATER SYSTEM - WATER HEATER(ORIGINAL) - PRIVATE ROAD - VOLUNTARY CANAL MAINTENANCE($350/YEAR) - POOL RESURFACED, RETILED & REPAINTED (2020) - MAKE SURE YOU TAKE TIME TO VIEW THE FLOOR PLANS, 3D WALK THROUGH & VIDEOS.
Financial Considerations
Price:
$449,900
HOA Fee:
N/A
Tax Amount:
$1440
Price per SqFt:
$299.33
Tax Legal Description:
CYPRESS SHORES REP PB 1 PG 387 LOT 29
Exterior Features
Lot Size:
20386
Lot Features:
Cul-De-Sac, In County, Landscaped, Level, Near Marina, Near Public Transit, Oversized Lot, Private, Paved
Waterfront:
Yes
Parking Spaces:
N/A
Parking:
Driveway, Garage Door Opener, Parking Pad
Roof:
Shingle
Pool:
Yes
Pool Features:
Gunite, In Ground, Lighting, Pool Sweep, Screen Enclosure
Interior Features
Bedrooms:
2
Bathrooms:
2
Heating:
Central, Electric
Cooling:
Central Air
Appliances:
Dishwasher, Disposal, Electric Water Heater, Microwave, Range, Refrigerator
Furnished:
Yes
Floor:
Carpet, Ceramic Tile, Wood
Levels:
One
Additional Features
Property Sub Type:
Single Family Residence
Style:
N/A
Year Built:
1975
Construction Type:
Block, Concrete, Stone, Stucco
Garage Spaces:
Yes
Covered Spaces:
N/A
Direction Faces:
Northeast
Pets Allowed:
Yes
Special Condition:
None
Additional Features:
French Doors, Private Mailbox
Additional Features 2:
PLEASE REFER TO COUNTY ZONING
Map
  • Address
    720 SHORE DRIVE
Contact a Professional
Why Choose Us?
  • Communication and Transparency
  • Skilled Negotiation
  • Robust Professional Network
  • After-Sale Support
Featured Properties

Related Properties

avt
Daniel Dourado
$ 649,900
avt
Daniel Dourado
$ 335,000
avt
Daniel Dourado
$ 250,000
avt
Daniel Dourado
$ 425,000
avt
Daniel Dourado
$ 420,000
avt
Daniel Dourado
$ 424,900
avt
Daniel Dourado
$ 499,000
avt
Daniel Dourado
$ 345,000